Neubau eines Geschäftshauses mit Vollsortimenter und Hotel · Erfurt
13 Projektbilder
-
Südwestansicht, Bild: Brillux, Christian Eblenkamp -
Südostansicht, Bild: Brillux, Christian Eblenkamp -
Fassadendetail Nordwestansicht, Bild: Brillux, Christian Eblenkamp -
Fassadendetail Nordwestansicht, Bild: Brillux, Christian Eblenkamp -
Blick vom der Neuwerkstraße, Bild: Brillux, Christian Eblenkamp -
Blick vom Hirschgarten, Bild: Brillux, Christian Eblenkamp -
Nordwestansicht, Bild: Brillux, Christian Eblenkamp -
Fassadendetail, Bild: Brillux, Christian Eblenkamp -
Fassadendetail, Bild: Brillux, Christian Eblenkamp -
Fassadendetail, Bild: Brillux, Christian Eblenkamp -
Ansicht vom Hirschgarten, Bild: Brillux, Christian Eblenkamp -
Lageplan, Bild: Stadermann Architekten PartG mbB -
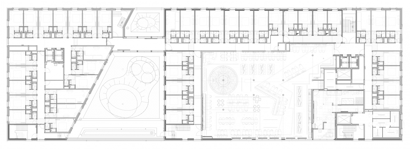
Grundriss 1. Obergeschoss E1, Bild: Stadermann Architekten PartG mbB
Tag der Architektur 2026
Samstag, 27.06.2026 – geöffnet 13:00-17:00, Führungen 13:00-15.00 (Treffpunkt: Haupteingang)
Sonntag, 28.06.2026 – geöffnet 13:00-17:00, Führungen 13:00-15.00 (Treffpunkt: Haupteingang)
Projektbeschreibung
Gebäudeorganisation und -struktur
Der Hirschgarten erhält durch die Stellung des neuen Gebäudes an der Süd-Westecke der Freianlage, mit der sich sanft in den Platz schiebenden Gebäudeecke neuen Halt und gleichzeitig ein ganz neues, prägendes Gesicht. Hier ist, dem öffentlichen Stadtraum zugewandt, der Zugang des Hotelbereichs vorgesehen. Die Orientierung der Lobby zum Platz erzeugt im halböffentlichen Innenbereich des Hotels wie auch im öffentlichen Außenraum sich gegenseitig befruchtende, hohe kommunikative Qualitäten. Der Platz wird auf dieser bisher von dem Zwölfgeschosser dominierten undefinierten Ecke zum Leben erweckt. Der gesamte Hotelbereich mit ca. 170 bis 180 Zimmern ist barrierefrei erschließbar. Die hellen lichtdurchfluteten Hotelzimmer sind ab dem 1. bis zum 4. Obergeschoss zweihüftig im U-förmig um den begrünten Innenhof organisierten Gebäudeteil angeordnet. Die bewusst gewählte Form dieses Gebäudeteils ermöglicht die natürliche Belichtung und Belüftung aller Wohn- und Aufenthaltsräume und schafft gegenüber der benachbarten hochgeschossigen Wohnbebauung Distanz und Freiräume im angemessenen Maßstab. Der Loungebereich im
1. Obergeschoss orientiert sich wiederum auf der Nord-Ostecke dialogerzeugend zum öffentlichen Platz. Südlich davon schließt sich auf dieser Ebene die Personal- und Mitarbeiterzone an. Die vertikale Erschließung ist sinnfällig an den Innenecken des Baukörpers in den schlechter belichteten Zonen angeordnet.
Den zentral im Erdgeschoss des Gebäudes angeordneten Nahversorger mit 1.600 m² Verkaufsfläche erschließt man ebenerdig einerseits von der Ecke Neuwerkstraße/Eichenstraße und andererseits von der Seite des Parkhauses, direkt gegenüber. Er nimmt fast die gesamte Fläche dieser Ebene ein. Die Fassaden des Gebäudes sind auf Straßenniveau in Richtung Neuwerkstraße und Löberstraße durchgängig transparent und offen gehalten um die notwendige Kommunikation mit dem innerstädtischen Umfeld herzustellen. Auf der rückwärtigen Seite zur Gartenstraße befinden sich die Anlieferungs- und Lagerbereiche. Die Anlieferung ist abgeschlossen und innenliegend an der Ecke Neuwerkstraße/Gartenstraße organisiert. Somit sind störende Schall- und Schadstoffemissionen auf ein Mindestmaß reduziert und kurze Wege gesichert.
An der Nordwestecke des Gebäudes befindet sich ebenfalls der Zu- und Aufgang für bis zu
24 barrierefreie Wohnungen, welche auf der Seite zur Gartenstraße vom 1. bis 4. Obergeschoss in einem eigenständigen Baukörper organisiert sind. Jede Etage stellt sechs helle, wohnliche, modern und gut strukturierte barrierefreie Wohnungen bereit. Jede Einheit hat eine sonnig-geschützte Balkon-/Loggiafläche mit kommunikativen Sichtbeziehungen in die Innenstadt oder mit einem beruhigenden Blick auf den herrlichen Dachgarten zum Hotel. Die intensiv begrünten Dachflächen des 1. Obergeschosses schaffen ein einmalig angenehmes Wohnklima im Grünen und somit ein besonderes Erlebnis mitten in der Stadt. Ein idealer Platz zum Ausruhen und Träumen mitten im pulsierenden urbanen Leben entsteht. Die Ausrichtung der Wohnungen nach Osten und nach Westen lenkt automatisch elegant den Focus von der hochgeschossigen benachbarten 12-geschossigen Zeilenbebauung auf das sonstige gemäßigte städtebauliche Umfeld. Das Gebäude ist im Untergeschoss gegenüber dem ausgewiesenen Baufeld auf der Platzseite Hirschgarten wegen nicht verschiebbarer vorhandener Versorgungsleitungsführung um 3 m eingekürzt.
Im allseitig umschlossenen Untergeschoss sind 53 Stellplätze mit mehr als 2,50 m Breite, die Technik- und Abstell- sowie Lagerbereiche für das Gebäude vorgehalten. Die verkehrstechnische Anbindung dieser Ebene erfolgt direkt unterirdisch vom Juri-Gagarin-Ring über das benachbarte, neu zu errichtende Parkhaus.
Gestaltung
Aufgrund der exponierten Lage als neuer Altstadteingang besteht ein hoher gestalterischer Anspruch an die Gebäude. Die Baukörpersprache der Neubauten vermittelt zwischen der großen kompakten 12-geschossigen DDR-Bebauung auf der einen und den kleinteiligen Gründerzeithäusern auf der anderen Seite. Die Fassadengestaltung der neuen Wohn- und Geschäftshausbebauung orientiert sich hingegen nur an den Strukturen der kleinteiligen gewachsenen Häuser. Sie nimmt dessen Höhenbezüge, Maßstäblichkeiten und die Formate der Öffnungen auf und interpretiert sie in moderner Sprache neu ohne zu kopieren. Das leicht nach innen versetzte Staffelgeschoss reagiert entsprechend auf die verschiedenen Dachformen der umliegenden Bebauung. Die gerade Linienführung der Oberflächenstrukturen und deren Materialität setzen, eine eigene Identität erzeugend das Neue vom Bestand in moderner Sprache ab. Durch die bewusst eingesetzte Variation der Interpretation und somit der gestalterischen Ausdrucksform entstehen kleinere bis größere Nuancen im Spiel der unterschiedlichen Fassaden- und Lochöffnungen untereinander, wodurch der Eindruck einzelner Häuser im Straßenraum erzeugt wird, deren Größe sich an den umliegenden Bestandshäusern orientiert. Durch die unterstützende, leicht variierende Farbgebung der einzelnen Fassadenabschnitte, wird dieser Eindruck nochmals katalysiert.
Der Einsatz von Farben aus einem Farbklang heraus verbindet dabei die Fassaden wiederum zu einem großen Ganzen. Somit entsteht eine eigene Quartiersidentität. Die so erzeugte architektonische Spannung soll den Brückenschlag der neuen Bebauung zwischen den unterschiedlichen Dimensionen der umgehenden Bebauung unterstützen, wirkt das Gebäudeensemble doch einerseits groß und kompakt aber andererseits auch kleinteilig und feinlinig. Der Sockel des Gebäudes aus großformatigen Kunst- und Natursteinelementen endet am Gesims zum 1. Obergeschoss. Von hier aus bis zum 3. Obergeschoss dominiert eine WDVS-Putzfassade mit eingelegten verschiedenförmigen Kunst- oder Natursteineinfassungen der Fenster. Das zurückgesetzte 4. Obergeschoss charakterisiert eine gedämmte und hinterlüftete Metallfassadenverkleidung, deren Strukturen an die umliegenden Bestandsdachformen angepasst sind.
Projektdaten
Adresse
Neuwerkstraße 23
99084 Erfurt
Planungsbüro
Stadermann Architekten PartG mbB, Niederorschel
Bauherr
Projektentwicklung Neuwerkstraße 17 GmbH & Co. KG
Fertigstellung
September 2024
Nutzfläche
7510 m2
An dieser Stelle wird eine Google-Maps-Karte angezeigt, wenn Sie das Speichern der entsprechenden Cookies erlaubt haben. Dies können Sie über die Privatsphäre-Einstellungen jederzeit tun.
Zugeordnete Schlagworte und Sammlungen
Weitere Projekte des gleichen Büros (4)
-
Neubau Parkhaus Am Hirschgarten
Erfurt
Juri-Gagarin-Ring 11, 99084 Erfurt
Stadermann Architekten PartG mbB, Niederorschel
Tag der Architektur 2026
Samstag, 27.06.2026 – geöffnet 13:00-17:00, Führungen 13:00-15.00 (Treffpunkt: Haupteingang)
Sonntag, 28.06.2026 – geöffnet 13:00-17:00, Führungen 13:00-15.00 (Treffpunkt: Haupteingang)
-
Caritas Hospiz Zentrum Mutter Teresa
Heilbad Heiligenstadt
Tilman-Riemenschneider-Straße 4b, 37308 Heilbad Heiligenstadt
Stadermann Architekten PartG mbB, Niederorschel
-
Mehrfamilienwohnhäuser Mühlhäuser Chaussee
Leinefelde-Worbis
Mühlhäuser Chaussee 28, 37327 Leinefelde-Worbis
Stadermann Architekten PartG mbB, Niederorschel
-
Neubau Produktion und Verwaltungsgebäude TOBOL
Leinefelde-Worbis
Am Kahrenweg 8, 37327 Leinefelde-Worbis
Stadermann Architekten PartG mbB, Niederorschel
Letzte Aktualisierung dieser Seite am: 07.05.2026. Alle Angaben auf dieser Seite werden durch das Büro Stadermann Architekten PartG mbB, Niederorschel auf freiwilliger Basis verwaltet. Das Büro ist für den Inhalt dieser Seite selbst verantwortlich. Die Angaben werden von der Architektenkammer Thüringen nicht geprüft.