Neubau eines Kindergartens für 72 Kinder · Ohrdruf
12 Projektbilder
-
Ansicht Südost, Bild: Erdmann-Johannes Steffani -
Krippenbereich, Bild: Erdmann-Johannes Steffani -
Galerie, Bild: Erdmann-Johannes Steffani -
Gruppenraum, Bild: Erdmann-Johannes Steffani -
Kletterwand mit Mehrzweckraum, Bild: Erdmann-Johannes Steffani -
Nord-West Ansicht, Bild: Erdmann-Johannes Steffani -
Bücherregal mit Blick ins Atrium, Bild: Erdmann-Johannes Steffani -
Kindergarten Gräfenhain Haupteingang, Bild: Erdmann-Johannes Steffani -
Atrium mit Blick auf Haupteingang und Bibliothek, Bild: Erdmann-Johannes Steffani -
Kinderbibliothek, Bild: Erdmann-Johannes Steffani -
Kletterwand, Bild: Erdmann-Johannes Steffani -
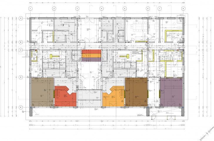
Grundriss Erdgeschoss, Bild: Erdmann-Johannes Steffani
Projektbeschreibung
Der in natürlichen Farben gehaltene Kindergarten Gräfenhain ist äußerlich unterteilt in zwei Teile, den Kindergarten- und den Krippenbereich. Besonderheit ist ein zentrales Atrium mit Mehrzweckraum, über zwei Etagen, welches die Haupteingangsachse bildet. Vom Atrium aus befinden sich zu jeweils beiden Seiten Gruppenräume, die einen direkten Zugang in den Außenbereich bieten. Der Grundriss gliedert sich in drei Achsen. In Gruppenräume, Sanitärtrakte und Nebenräume. Die Gruppenräume können tlw. direkt miteinander verbunden werden, so dass eine Gruppenbeziehung untereinander gewährleistet ist. Über dem Haupteingang befindet sich eine Bibliothek, als Herzstück, welche Blicke in das Atrium ermöglicht sowie auch der Außenbereich durch ein großzügiges Panoramafenster wieder mit einbezogen wird.
Projektdaten
Adresse
Wiesenstraße 3a
99887 Ohrdruf OT Gräfenhain
Planungsbüros
Architekturbüro Steffani, Ilmenau
Büro für Landschaftsarchitektur Frank Feistel, Erfurt
Bauherr
Stadt Ohrdruf
Fertigstellung
März 2024
Nutzfläche
825 m2
An dieser Stelle wird eine Google-Maps-Karte angezeigt, wenn Sie das Speichern der entsprechenden Cookies erlaubt haben. Dies können Sie über die Privatsphäre-Einstellungen jederzeit tun.
Zugeordnete Schlagworte und Sammlungen
Weitere Projekte des gleichen Büros (5)
-
Das schräge Technikhaus
Ilmenau
Schäferei 4a, 98693 Ilmenau OT Langewiesen
Architekturbüro Steffani, Ilmenau
-
Um- und Anbau an das Gemeindehaus der EFG "Güldene Pforte" in Ilmenau
Ilmenau
Güldene Pforte 1, 98693 Ilmenau
Architekturbüro Steffani, Ilmenau
-
Neubau Kindergarten in Holzhausen
Amt Wachsenburg
Am Lämmerberg, 99334 Amt Wachsenburg OT Holzhausen
Architekturbüro Steffani, Ilmenau
Büro für Landschaftsarchitektur Frank Feistel, Erfurt -
Solarhaus in Rudolstadt
Rudolstadt
Am Schaalbach 11, 07407 Rudolstadt OT Schaala
Architekturbüro Steffani, Ilmenau
-
Sophienhütte - Wohnanlage mit 38 WE und zwei Wohngruppen für betreutes Wohnen
Ilmenau
Richard-Bock-Straße 1, 98693 Ilmenau
Architekturbüro Steffani, Ilmenau
Letzte Aktualisierung dieser Seite am: 21.05.2024. Alle Angaben auf dieser Seite werden durch das Büro Architekturbüro Steffani, Ilmenau auf freiwilliger Basis verwaltet. Das Büro ist für den Inhalt dieser Seite selbst verantwortlich. Die Angaben werden von der Architektenkammer Thüringen nicht geprüft.