Sophienhütte - Wohnanlage mit 38 WE und zwei Wohngruppen für betreutes Wohnen · Ilmenau
7 Projektbilder
-
Innenhof mit Quellstein, Bild: Erdmann-Johannes Steffani -
Ansichten, Bild: Erdmann-Johannes Steffani -
Ansicht Nordflügel, Bild: Erdmann-Johannes Steffani -
Eingangsbereich, Bild: Erdmann-Johannes Steffani -
Innenhof mit Solarthermieanlage, Bild: Erdmann-Johannes Steffani -
Südfassade, Bild: Erdmann-Johannes Steffani -
Außenanlagen, Bild: Erdmann-Johannes Steffani
Projektbeschreibung
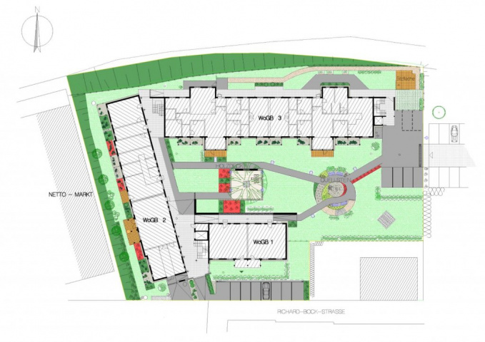
Die Wohnanlage wurde auf einem ehemaligen Industriegelände in der Nähe der Altstadt Ilmenaus errichtet. Sie besteht aus drei Gebäuden mit drei bis vier Geschossen, die U-förmig um einen gestalteten Innenhof angeordnet sind. Die Verbindung und Erschließung dieser Gebäude erfolgt durch außen liegende Treppen und offene Laubengänge. Im Erdgeschoss sind ein Begegnungszentrum, Büroräume für die Diakonie-Pflegestation, eine physiotherapeutische Praxis und zwei Wohngruppen für betreutes Wohnen untergebracht. Die Wohngruppen besitzen je acht Zimmer mit eigener Dusche und einem gemeinsamen Aufenthaltsbereich mit Küche und Terrasse. In den Obergeschossen liegen insgesamt 36 altengerechte Wohnungen mit zwei bis drei Zimmern. Alle Wohnungen besitzen natürlich belichtete Küchen und Bäder, bodengleiche Duschen und einen barrierefreien Balkon. Die Beheizung und Warmwasserbereitung erfolgt durch eine solarthermische Anlage auf der nach Süden gerichteten Dachfläche in Verbindung mit Biomasse-Fernwärme.
Weitere beteiligte Architektur-/ Stadtplanungsbüros:
AIG Ilmenau Esefeld/Heym, Ilmenau
Projektdaten
Adresse
Richard-Bock-Straße 1
98693 Ilmenau
Planungsbüro
Architekturbüro Steffani, Ilmenau
Bauherr
WBG Ilmenau/Thüringen e.G.
Fertigstellung
2009
An dieser Stelle wird eine Google-Maps-Karte angezeigt, wenn Sie das Speichern der entsprechenden Cookies erlaubt haben. Dies können Sie über die Privatsphäre-Einstellungen jederzeit tun.
Zugeordnete Schlagworte und Sammlungen
Weitere Projekte des gleichen Büros (5)
-
Das schräge Technikhaus
Ilmenau
Schäferei 4a, 98693 Ilmenau OT Langewiesen
Architekturbüro Steffani, Ilmenau
-
Neubau eines Kindergartens für 72 Kinder
Ohrdruf
Wiesenstraße 3a, 99887 Ohrdruf OT Gräfenhain
Architekturbüro Steffani, Ilmenau
Büro für Landschaftsarchitektur Frank Feistel, Erfurt
-
Um- und Anbau an das Gemeindehaus der EFG "Güldene Pforte" in Ilmenau
Ilmenau
Güldene Pforte 1, 98693 Ilmenau
Architekturbüro Steffani, Ilmenau
-
Neubau Kindergarten in Holzhausen
Amt Wachsenburg
Am Lämmerberg, 99334 Amt Wachsenburg OT Holzhausen
Architekturbüro Steffani, Ilmenau
Büro für Landschaftsarchitektur Frank Feistel, Erfurt
-
Solarhaus in Rudolstadt
Rudolstadt
Am Schaalbach 11, 07407 Rudolstadt OT Schaala
Architekturbüro Steffani, Ilmenau
Letzte Aktualisierung dieser Seite am: 25.09.2010. Alle Angaben auf dieser Seite werden durch das Büro Architekturbüro Steffani, Ilmenau auf freiwilliger Basis verwaltet. Das Büro ist für den Inhalt dieser Seite selbst verantwortlich. Die Angaben werden von der Architektenkammer Thüringen nicht geprüft.