Neubau eines städtischen Wohnhauses in Leinefelde-Worbis
7 Projektbilder
-
Schwarzplan (Entwurfsstudie), Bild: Jan Fitzner -
Lageplan (Entwurfsstudie), Bild: Jan Fitzner -
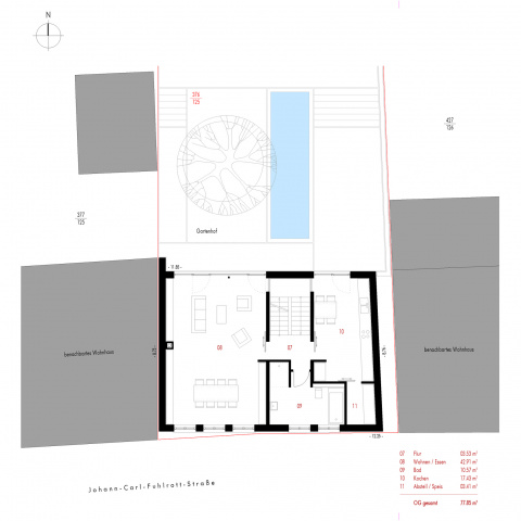
Grundriss Obergeschoss (Entwurfsstudie, Bild: Jan Fitzner -
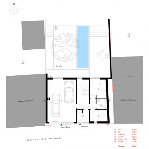
Grundriss Erdgeschoss (Entwurfsstudie), Bild: Jan Fitzner -
Ansicht Straße (Entwurfsstudie), Bild: Jan Fitzner -
Ansicht Straße (Planung), Bild: Jan Fitzner -
Ansicht Norden (Planung), Bild: Jan Fitzner
Projektdaten
Adresse
37327 Leinefelde-Worbis
Planungsbüro
Jan Fitzner Dipl.-Ing. (FH) Freier Architekt, Bad Tennstedt
Bauherr
privat
An dieser Stelle wird eine Google-Maps-Karte angezeigt, wenn Sie das Speichern der entsprechenden Cookies erlaubt haben. Dies können Sie über die Privatsphäre-Einstellungen jederzeit tun.
Zugeordnete Schlagworte und Sammlungen
Weitere Projekte des gleichen Büros (16)
-
Entwicklung einer vorhandenen Liegenschaft in der Görmarstraße, Mühlhausen
Mühlhausen
Görmarstraße 21, 99974 Mühlhausen
Jan Fitzner Dipl.-Ing. (FH) Freier Architekt, Bad Tennstedt
-
Umbau und Umnutzung eines bestehenden Nebengelasses zu einem Schulungs- und Begegnungszentrum
Sonneborn
Herrenstraße 42, 99869 Sonneborn OT Eberstädt
Jan Fitzner Dipl.-Ing. (FH) Freier Architekt, Bad Tennstedt
Tino Rabold Dipl.-Ing. (FH) Freier Architekt, Erfurt
-
Neubau eines Einfamilienwohnhauses
Erfurt
99090 Erfurt OT Salomonsborn
Jan Fitzner Dipl.-Ing. (FH) Freier Architekt, Bad Tennstedt
Tino Rabold Dipl.-Ing. (FH) Freier Architekt, Erfurt
-
Neubau eines Einfamilienwohnhauses in Holzbauweise
Bad Langensalza
Thamsbrücker Landstraße 2a, 99947 Bad Langensalza
Jan Fitzner Dipl.-Ing. (FH) Freier Architekt, Bad Tennstedt
Tino Rabold Dipl.-Ing. (FH) Freier Architekt, Erfurt
-
Umbau und Umnutzung ehemaliges Polytechnisches Zentrum in einen städtischen Bauhof
Bad Tennstedt
Bahnhofstraße 66a, 99955 Bad Tennstedt
Jan Fitzner Dipl.-Ing. (FH) Freier Architekt, Bad Tennstedt
Tino Rabold Dipl.-Ing. (FH) Freier Architekt, Erfurt
-
Rittergut Lützensömmern - Neubau Mehrzweckgebäude Kinder- und Jugendakademie
Kutzleben
Rittergut 99, 99955 Kutzleben OT Lützensömmern
Jan Fitzner Dipl.-Ing. (FH) Freier Architekt, Bad Tennstedt
Tino Rabold Dipl.-Ing. (FH) Freier Architekt, Erfurt
-
Neubau eines Hofhauses
Herbsleben
99955 Herbsleben
Jan Fitzner Dipl.-Ing. (FH) Freier Architekt, Bad Tennstedt
-
Umbau / Erweiterung Sportlerheim TSV 1861 Bad Tennstedt e.V.
Bad Tennstedt
Zum Stadion 11, 99955 Bad Tennstedt
Jan Fitzner Dipl.-Ing. (FH) Freier Architekt, Bad Tennstedt
-
Erweiterung eines Wohnhauses in Bad Tennstedt
Bad Tennstedt
99955 Bad Tennstedt
Jan Fitzner Dipl.-Ing. (FH) Freier Architekt, Bad Tennstedt
-
Neubau eines Einfamilienwohnhauses in Klettstedt
Klettstedt
99955 Klettstedt
Jan Fitzner Dipl.-Ing. (FH) Freier Architekt, Bad Tennstedt
-
Neubau eines Einfamilienwohnhauses in Bruchstedt
Bruchstedt
Beim Bahnhof, 99955 Bruchstedt
Jan Fitzner Dipl.-Ing. (FH) Freier Architekt, Bad Tennstedt
-
Neubau eines Einfamilienwohnhauses mit Nebengebäude in Bruchstedt
Bruchstedt
Beim Bahnhof, 99955 Bruchstedt
Jan Fitzner Dipl.-Ing. (FH) Freier Architekt, Bad Tennstedt
-
Umbau / Umnutzung eines ehemaligen Ladens in Bad Tennstedt
Bad Tennstedt
Steinweg 11, 99955 Bad Tennstedt
Jan Fitzner Dipl.-Ing. (FH) Freier Architekt, Bad Tennstedt
-
Haus am Hang
Bad Tennstedt
99955 Bad Tennstedt
Jan Fitzner Dipl.-Ing. (FH) Freier Architekt, Bad Tennstedt
-
Markt 3 in Bad Tennstedt
Bad Tennstedt
Markt 3, 99955 Bad Tennstedt
Jan Fitzner Dipl.-Ing. (FH) Freier Architekt, Bad Tennstedt
Letzte Aktualisierung dieser Seite am: 03.07.2015. Alle Angaben auf dieser Seite werden durch das Büro Jan Fitzner Dipl.-Ing. (FH) Freier Architekt, Bad Tennstedt auf freiwilliger Basis verwaltet. Das Büro ist für den Inhalt dieser Seite selbst verantwortlich. Die Angaben werden von der Architektenkammer Thüringen nicht geprüft.