Neubau Stadthaus mit Büroräumen und Wohnungen in Nordhausen
4 Projektbilder
Projektbeschreibung
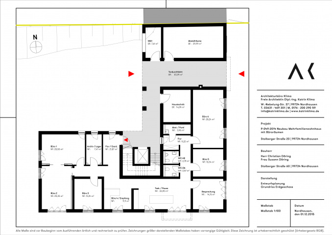
Das Baugrundstück liegt in der Nordhäuser Oberstadt, sehr zentral und gut angebunden an das Stadtzentrum und den öffentlichen Nahverkehr. Es handelte sich um eine der letzten großen Baulücken an der Stolberger Straße. Im Norden schließt eine geschlossene Bebauung an. Im Süden befindet sich eine große Spielfläche einer Kindertagesstätte mit viel Baumbestand. Ziel des Entwurfes war es einen städtebaulichen Abschluss für die geschlossene Bebauung Richtung Norden zu finden und gleichzeitig das Grundstück optimal auszunutzen. Entstanden ist ein winkelförmiger Baukörper, dessen Etagen über einen offenen Laubengang auf der Hofseite erschlossen werden. Im Erdgeschoss befinden sich Büroräume. In den oberen Etagen gibt es insgesamt 8 Wohnungen - jeweils mit eigenem Balkon, Loggia oder Dachterrasse.
Projektdaten
Adresse
Stolberger Straße 20
99734 Nordhausen
Planungsbüro
Architekturbüro Katrin Klima, Nordhausen
Bauherr
privat
Fertigstellung
Dezember 2015
An dieser Stelle wird eine Google-Maps-Karte angezeigt, wenn Sie das Speichern der entsprechenden Cookies erlaubt haben. Dies können Sie über die Privatsphäre-Einstellungen jederzeit tun.
Zugeordnete Schlagworte und Sammlungen
Weitere Projekte des gleichen Büros (5)
-
Neubau Wohnanlage mit 11 Wohnungen, Café und Akademie
Ellrich
Johann-Sebastian-Bach-Straße 1, 99755 Ellrich
Architekturbüro Katrin Klima, Nordhausen
-
Neubau Wohnhaus mit 5 Wohnungen und Arztpraxis
Nordhausen
Köllingstraße 3, 99734 Nordhausen
Architekturbüro Katrin Klima, Nordhausen
-
Neubau Wohnhaus mit 12 Wohnungen und Tiefgarage in der Nordhäuser Altstadt
Nordhausen
Pfaffengasse 5-8, 99734 Nordhausen
Architekturbüro Katrin Klima, Nordhausen
-
Neubau Einfamilienwohnhaus in Ellrich
Ellrich
Zum Harzblick 13, 99755 Ellrich
Architekturbüro Katrin Klima, Nordhausen
-
Hochschule Nordhausen, Neubau Institut für Sozialmedizin, Rehabilitationswissenschaften und Versorgungsforschung
Nordhausen
Weinberghof 4, 99734 Nordhausen
Architekturbüro Katrin Klima, Nordhausen
ORTSBiLD Architektur- und Ingenieurbüro GmbH, Nordhausen
Letzte Aktualisierung dieser Seite am: 05.06.2018. Alle Angaben auf dieser Seite werden durch das Büro Architekturbüro Katrin Klima, Nordhausen auf freiwilliger Basis verwaltet. Das Büro ist für den Inhalt dieser Seite selbst verantwortlich. Die Angaben werden von der Architektenkammer Thüringen nicht geprüft.