Neubau Wohnhaus mit 12 Wohnungen und Tiefgarage in der Nordhäuser Altstadt · Nordhausen
16 Projektbilder
-
Bild: Markus Veit -
Ansicht, Bild: Markus Veit -
Ansicht, Bild: Markus Veit -
Ansicht, Bild: Markus Veit -
Ansicht, Bild: Markus Veit -
Ansicht, Bild: Markus Veit -
Ansicht, Bild: Markus Veit -
Ansicht, Bild: Markus Veit -
Visualisierung, Bild: Katrin Klima -
Straßenansicht Pfaffengasse, Bild: Markus Veit -
Straßenansicht Pfaffengasse, Bild: Markus Veit -
Straßenansicht Pfaffengasse, Bild: Markus Veit -
Visualisierung, Bild: Katrin Klima -
Ansichtszeichnung, Bild: Katrin Klima -
Grundriss Erdgeschoss, Bild: Katrin Klima -
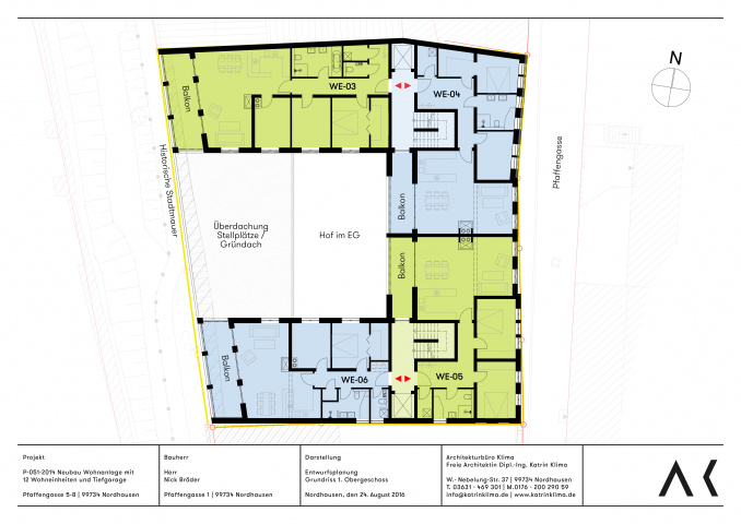
Grundriss Obergeschoss, Bild: Katrin Klima
Projektbeschreibung
Im Herzen der Nordhäuser Altstadt befanden sich vier schmale Grundstücke direkt an der Stadtmauer mit sehr guter Aussicht über die Unterstadt. Ziel des Entwurfes war es auf den insgesamt knapp 800qm Grundfläche möglichst viele Wohneinheiten mit Blick nach Westen über die historische Stadtmauer konzipieren. Entstanden ist eine U-Förmige Anlage mit 12 Wohnungen, zentraler Einfahrt, Innenhof und Tiefgarage.
10 von 12 Wohnungen sind nach Westen ausgerichtet und haben freien Blick über die Stadtmauer. Sie sind ausgestattet mit großen Wohnküchen, 2-3 Schlafzimmern und Loggien bzw. Dachterrassen. Daneben entstanden noch zwei kleine Wohnungen im Erdgeschoss mit Ausrichtung in die Pfaffengasse. Parkmöglichkeiten werden im Innenhof und in der Tiefgarage vollständig auf dem Grundstück vorgehalten. Die Parkplätze im Untergeschoss erreicht man über einen PKW-Lift.
Straßenseitig wurde die Fassade dreigeteilt - so dass sich der Neubau optisch in das klein-gliedrige Altstadtbild einfügt. Das rechte Gebäude wurde dem historischen Vorgängerbau nachempfunden. Die zeitgenössische Architektursprache der mittleren Fassade zieht sich durch die Toreinfahrt über die gesamte Hof- und Westseite der Wohnanlage. Über der Stadtmauer kragt das Gebäude frei aus.
Projektdaten
Adresse
Pfaffengasse 5-8
99734 Nordhausen
Planungsbüro
Architekturbüro Katrin Klima, Nordhausen
Bauherr
privat
Fertigstellung
Oktober 2018
An dieser Stelle wird eine Google-Maps-Karte angezeigt, wenn Sie das Speichern der entsprechenden Cookies erlaubt haben. Dies können Sie über die Privatsphäre-Einstellungen jederzeit tun.
Zugeordnete Schlagworte und Sammlungen
Weitere Projekte des gleichen Büros (5)
-
Neubau Wohnanlage mit 11 Wohnungen, Café und Akademie
Ellrich
Johann-Sebastian-Bach-Straße 1, 99755 Ellrich
Architekturbüro Katrin Klima, Nordhausen
-
Neubau Wohnhaus mit 5 Wohnungen und Arztpraxis
Nordhausen
Köllingstraße 3, 99734 Nordhausen
Architekturbüro Katrin Klima, Nordhausen
-
Neubau Einfamilienwohnhaus in Ellrich
Ellrich
Zum Harzblick 13, 99755 Ellrich
Architekturbüro Katrin Klima, Nordhausen
-
Hochschule Nordhausen, Neubau Institut für Sozialmedizin, Rehabilitationswissenschaften und Versorgungsforschung
Nordhausen
Weinberghof 4, 99734 Nordhausen
Architekturbüro Katrin Klima, Nordhausen
ORTSBiLD Architektur- und Ingenieurbüro GmbH, Nordhausen -
Neubau Stadthaus mit Büroräumen und Wohnungen in Nordhausen
Nordhausen
Stolberger Straße 20, 99734 Nordhausen
Architekturbüro Katrin Klima, Nordhausen
Letzte Aktualisierung dieser Seite am: 10.04.2019. Alle Angaben auf dieser Seite werden durch das Büro Architekturbüro Katrin Klima, Nordhausen auf freiwilliger Basis verwaltet. Das Büro ist für den Inhalt dieser Seite selbst verantwortlich. Die Angaben werden von der Architektenkammer Thüringen nicht geprüft.