Pfarrhaus Thörey · Amt Wachsenburg
8 Projektbilder
-
Hausansicht, Bild: Carsten Eichholz -
Hauseingang, Bild: Carsten Eichholz -
Detail Fassade, Bild: Carsten Eichholz -
Detail Fenster, Bild: Carsten Eichholz -
Detail Treppe, Bild: Carsten Eichholz -
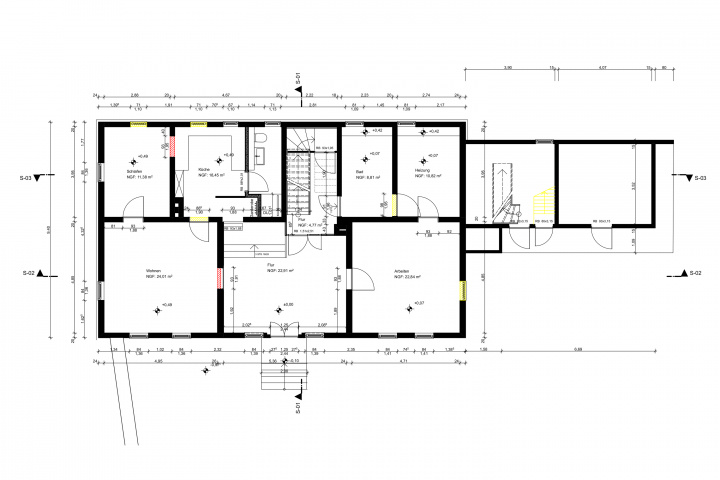
Grundriss Erdgeschoss, Bild: Carsten Eichholz -
Ansichten, Bild: Carsten Eichholz -
Fassadenschnitt, Bild: Carsten Eichholz
Projektbeschreibung
Das Pfarrhaus in der Ortslage von Thörey wurde zu Beginn des 19.Jhd errichtet. Der ursprüngliche 3- Seitenhof lässt sich trotz einiger Umbauten noch an den Wirtschaftsgebäuden und der Natursteinmauer erkennen. Die jetzigen Eigentümer haben den Hof 2021 erworben. Bei der Umgestaltung war es den Bauherrn wichtig auf nachhaltige Materialien zu achten. So wurde der Hof als KFW Effizienzhaus Denkmal saniert und mit ökologischen Baustoffen ausgebaut.
Projektdaten
Adresse
Kleine Pfarrgasse 4
99334 Amt Wachsenburg OT Thörey
Planungsbüros
Carsten Eichholz architektur + energie, Erfurt
Dipl.-Ing. Tanja Ernst-Adams - Freie Architektin, Erfurt
Bauherr
Uta und Andreas Berger
Fertigstellung
Januar 2024
Nutzfläche
185 m2
An dieser Stelle wird eine Google-Maps-Karte angezeigt, wenn Sie das Speichern der entsprechenden Cookies erlaubt haben. Dies können Sie über die Privatsphäre-Einstellungen jederzeit tun.
Zugeordnete Schlagworte und Sammlungen
Weitere Projekte des gleichen Büros (2)
-
Wohngut Neudietendorf
Neudietendorf
Zinzendorfstraße 16, 99192 Neudietendorf
Carsten Eichholz architektur + energie, Erfurt
ARCHITEKT MAURICE FIEDLER, Erfurt -
Viertseitenhof und Café
Neudietendorf
Zinzendorfstraße 12, 99192 Neudietendorf
Carsten Eichholz architektur + energie, Erfurt
Letzte Aktualisierung dieser Seite am: 21.05.2024. Alle Angaben auf dieser Seite werden durch das Büro Carsten Eichholz architektur + energie, Erfurt auf freiwilliger Basis verwaltet. Das Büro ist für den Inhalt dieser Seite selbst verantwortlich. Die Angaben werden von der Architektenkammer Thüringen nicht geprüft.