Viertseitenhof und Café · Neudietendorf
11 Projektbilder
-
Straßenansicht, Bild: Carsten Eichholz -
Vierseitenhof und Cafe - Innenansicht, Bild: Carsten Eichholz -
Vierseitenhof und Cafe - Innenansicht, Bild: Carsten Eichholz -
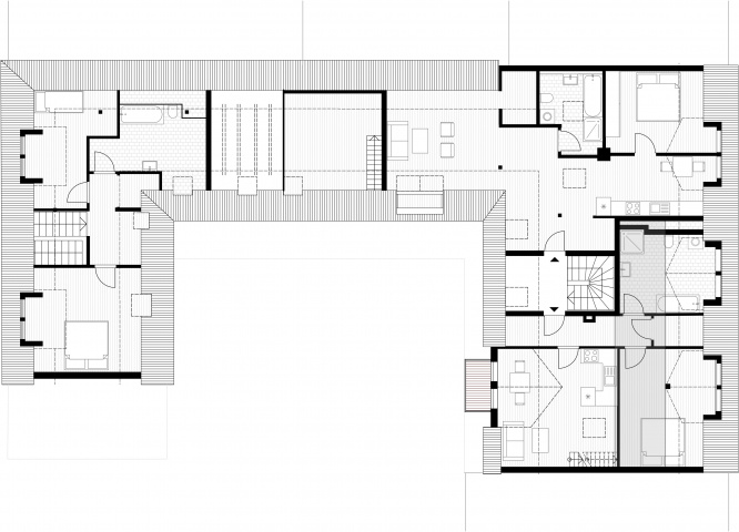
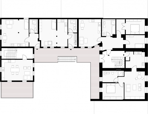
Grundriss OG, Bild: Carsten Eichholz -
Grundriss EG, Bild: Carsten Eichholz -
Grundriss DG, Bild: Carsten Eichholz -
Ansicht Straße, Bild: Carsten Eichholz -
Ansicht Hof, Bild: Carsten Eichholz -
Ansicht Hinterhaus, Bild: Carsten Eichholz -
Hof, Bild: Carsten Eichholz -
Hof, Bild: Carsten Eichholz
Projektbeschreibung
Der Vierseitenhof in der Ortslage von Neudietendorf stammt aus dem 18. JH. Seither erfolgten viel Umbauten. Die jetzige Eigentümerin hat den Hof 2020 erworben und komplett umgestaltet. Nach Abschluss der Arbeiten finden darin 8 Wohnungen sowie ein Eiscafe Platz. Bei der Umgestaltung war es der Bauherrin wichtig auf ökologische und nachhaltige Materialien zu achten. So wurde der Hof als KFW Effizienzhaus Denkmal saniert und mit ökologsichen Baustoffen ausgebaut. Auch ging es bei dem Denkmalensemble darum, die historischen Baustoffe zu erhalten.
Projektdaten
Adresse
Zinzendorfstraße 12
99192 Neudietendorf
Planungsbüro
Carsten Eichholz architektur + energie, Erfurt
Bauherr
Heike Janetzko
Fertigstellung
März 2022
Nutzfläche
760 m2
Preise/Auszeichnungen
Leader-Förderprogramm für ländliche Entwicklung
An dieser Stelle wird eine Google-Maps-Karte angezeigt, wenn Sie das Speichern der entsprechenden Cookies erlaubt haben. Dies können Sie über die Privatsphäre-Einstellungen jederzeit tun.
Zugeordnete Schlagworte und Sammlungen
Weitere Projekte des gleichen Büros (2)
-
Pfarrhaus Thörey
Amt Wachsenburg
Kleine Pfarrgasse 4, 99334 Amt Wachsenburg OT Thörey
Carsten Eichholz architektur + energie, Erfurt
Dipl.-Ing. Tanja Ernst-Adams - Freie Architektin, Erfurt -
Wohngut Neudietendorf
Neudietendorf
Zinzendorfstraße 16, 99192 Neudietendorf
Carsten Eichholz architektur + energie, Erfurt
ARCHITEKT MAURICE FIEDLER, Erfurt
Letzte Aktualisierung dieser Seite am: 09.05.2022. Alle Angaben auf dieser Seite werden durch das Büro Carsten Eichholz architektur + energie, Erfurt auf freiwilliger Basis verwaltet. Das Büro ist für den Inhalt dieser Seite selbst verantwortlich. Die Angaben werden von der Architektenkammer Thüringen nicht geprüft.