"Grüne Mitte Sömmerda" Neubau von 4 Mietswohnhäusern mit je 6 Wohnungen · Sömmerda
7 Projektbilder
Projektbeschreibung
Bei dem Plangebiet handelte es sich um eine innerstädtische Brachfläche der Stadt Sömmerda, die einer geordneten städtebaulichen Entwicklung zugeführt werden sollte. Für das Areal des einstigen Sportplatzes zwischen Rannstedter Straße und Pestalozzistraße wurde eine Neubebauung unter folgendem Ansatz geplant:
• Schaffung eines architektonisch und energetisch innovativen, modernen Wohnquar-tiers unter Beachtung städtebaulicher Vorgaben
• Schaffung einer attraktiven Wohnbaufläche zur Deckung des Wohnbedarfs
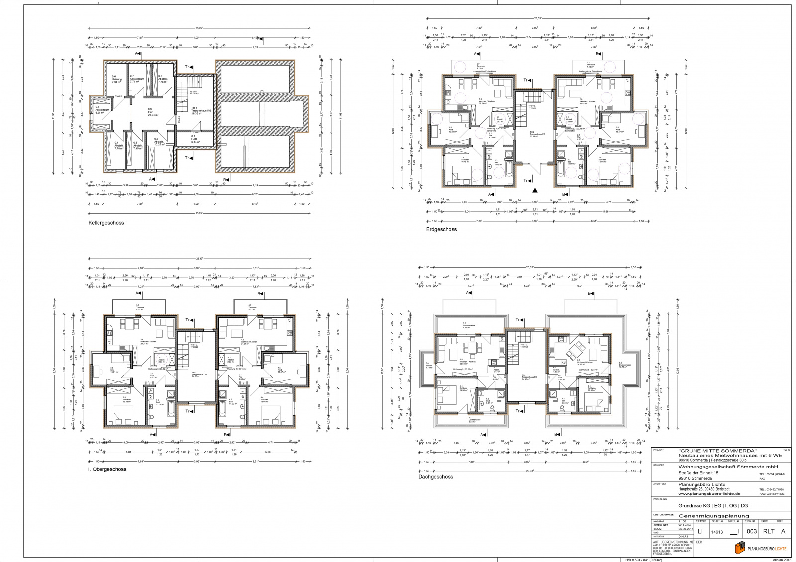
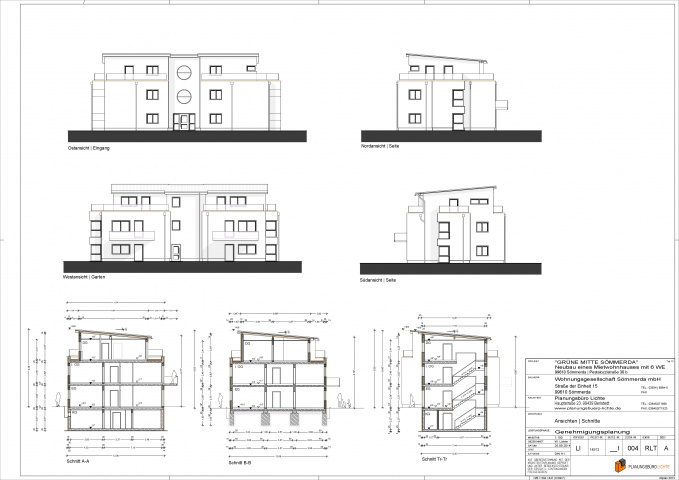
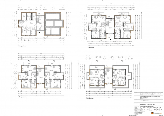
Die vier Wohngebäude in der Pestalozzistraße 30a - 30d wurden dreigeschossig errichtet und verfügen über 24 Wohnung. Die Dachgeschosswohnungen erhielten einen Versatz zu den unterliegenden Geschossen, um großzügige Dachterrassen zu realisieren. Zusätzlich zu den Dachterrassen verfügen alle Wohnungen über Terrassenbereiche in den Erdgeschossen sowie vorgesetzte Balkonflächen in den Ober- und Dachgeschossen. Alle Wohnungen im Erdgeschoss sind barrierefrei nutzbar.
Als Hauptbaustoffe kamen Kalksandsteinwände in verschiedenen Abmessungen zum Einsatz. Die Geschossdecken sowie die Treppenanlagen wurden aus Stahlbeton errichtet. Die Fassadenflächen wurden mit Wärmedämmverbundsystemen versehen.
Die Pultdächer wurden in Holzbauweise errichtet. Die Dachdämmung erfolgte als Aufsparrendämmung mit einer zweilagigen bituminösen Abdichtung.
Es wurden realisiert:
• 2-Raumwohnungen | 6 Stück | 65,00 - 84,00 m² WF
• 3-Raumwohnungen | 16 Stück | 66,00 - 91,00 m² WF
• 4-Raumwohnungen | 2 Stück | je 100,00 m² WF
Projektdaten
Adresse
Pestalozzistraße 30a, 30b, 30c, 30d
99610 Sömmerda
Planungsbüro
Planungsbüro Lichte, Am Ettersberg
Bauherr
WGS Wohnungsgesellschaft Sömmerda mbH
Fertigstellung
August 2016
Nutzfläche
1907 m2
An dieser Stelle wird eine Google-Maps-Karte angezeigt, wenn Sie das Speichern der entsprechenden Cookies erlaubt haben. Dies können Sie über die Privatsphäre-Einstellungen jederzeit tun.
Zugeordnete Schlagworte und Sammlungen
Weitere Projekte des gleichen Büros (5)
-
Neubau Wohn- und Geschäftshäuser in Berlstedt
Am Ettersberg
Schwerstedter Straße 5 + 6, 99439 Am Ettersberg OT Berlstedt
Planungsbüro Lichte, Am Ettersberg
-
Neubau einer Trauerhalle
Vogelsberg
An der Kirche, 99610 Vogelsberg
Planungsbüro Lichte, Am Ettersberg
-
Neubau Bürgerhaus in Vogelsberg
Vogelsberg
Diebsgasse, 99610 Vogelsberg
Planungsbüro Lichte, Am Ettersberg
-
Sanierung Bürgerhaus Waltersdorf
Weißensee
Dorfstraße, 99631 Weißensee OT Waltersdorf
Planungsbüro Lichte, Am Ettersberg
Letzte Aktualisierung dieser Seite am: 07.03.2019. Alle Angaben auf dieser Seite werden durch das Büro Planungsbüro Lichte, Am Ettersberg auf freiwilliger Basis verwaltet. Das Büro ist für den Inhalt dieser Seite selbst verantwortlich. Die Angaben werden von der Architektenkammer Thüringen nicht geprüft.