Sammlungszentrum Henneberger Land · Kloster Veßra
Spangenberg Reinke Braun Architekten Partnerschaft mbB, Erfurt
5 Projektbilder
-
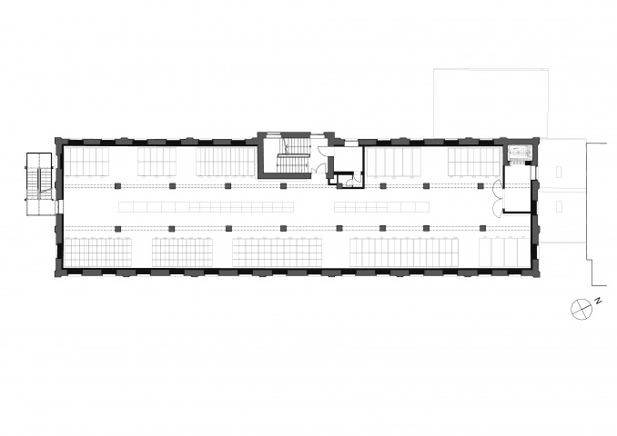
Depot Kloster Veßra_Grundriss exemplarisches Geschoss_SRB Architekten, Bild: Anne Ursula Reinke -
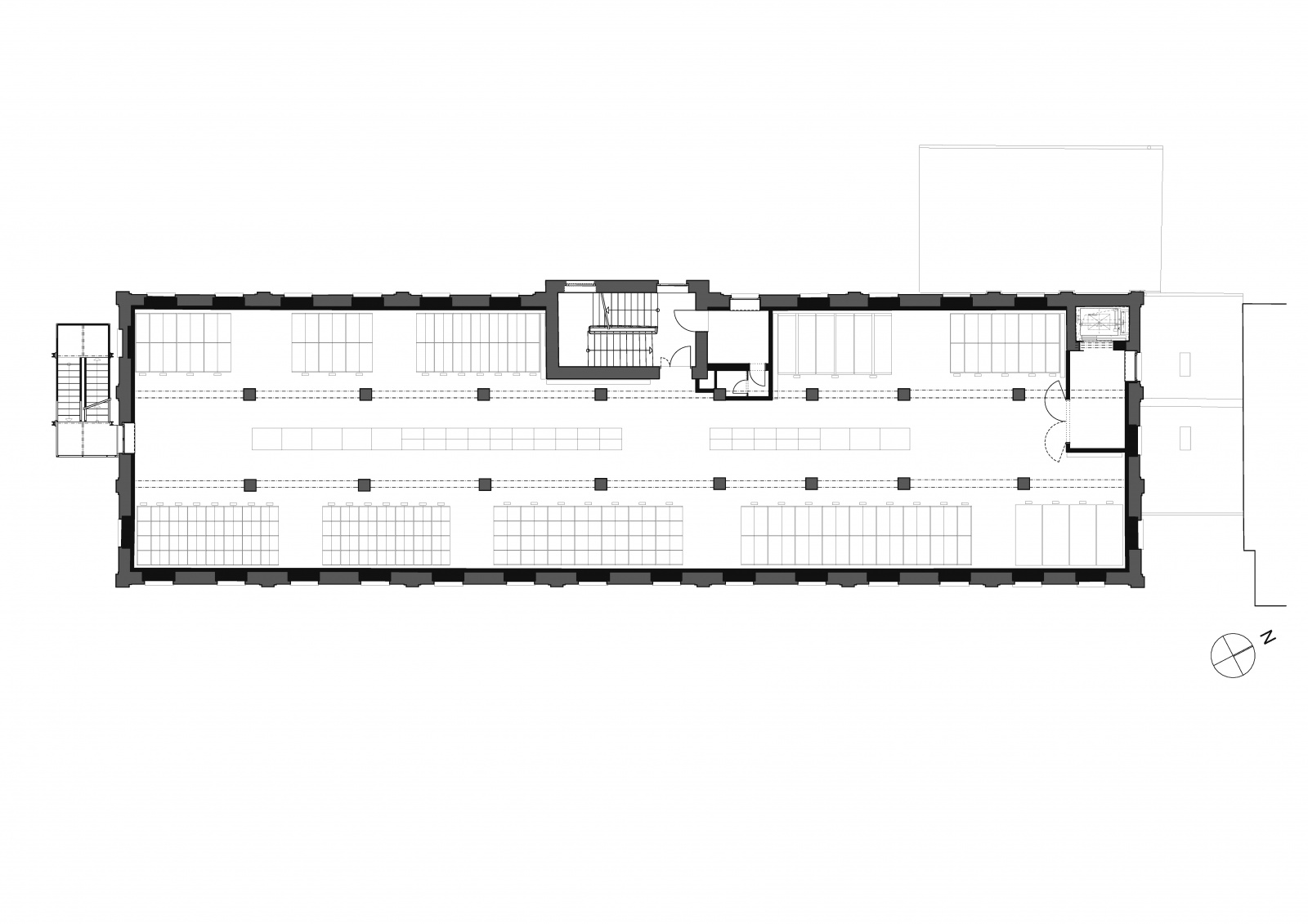
Depot Kloster Veßra_Transformation Porzellanfabrik zu Sammlungszentrum_StevenNeukirch, Bild: Steven Neukirch -
Depot Kloster Veßra_Fokus auf Bestandswerte - Beschränkung auf Notwendiges_StevenNeukirch, Bild: Steven Neukirch -
Depot Kloster Veßra_2.400 m² geben Sammlungen Raum_StevenNeukirch, Bild: Steven Neukirch -
Depot Kloster Veßra_Kooperative Nutzung der Infrastruktur_StevenNeukirch, Bild: Steven Neukirch
Projektbeschreibung
In Nachbarschaft zum Museum Kloster Veßra ist durch Umnutzung einer ehemaligen Porzellanfabrik im Auftrag der Stiftung Thüringer Schlösser und Gärten ein Pilotprojekt entstanden. Mehrere Museen nutzen im Gemeinschaftsdepot kooperativ die zur Sammlungsarbeit notwendige Infrastruktur aus Lagerflächen, Arbeits- und Quarantäneräumen. Im Fokus des Projekts stand ein effizienter Umgang mit der Grauen Energie des Bestands, Reduzierung des Aufwands für Ertüchtigung und Betrieb und damit der Finanzmittel. Der Verschluss der Fenster verhindert den Zutritt schädlicher Einflüsse und ermöglicht eine Wandflächenheizung. Die notwendige Erneuerung der Bodenplatte bietet zugleich einen robusten Industrieboden. Geplant wurde mit Augenmaß, für rund 4 Millionen Euro wurden 2.400 m² Depotfläche geschaffen.
Projektdaten
Adresse
Farbikstraße 24
98660 Kloster Veßra
Planungsbüro
Spangenberg Reinke Braun Architekten Partnerschaft mbB, Erfurt
Bauherr
Stiftung Thüringer Schlösser und Gärten
Fertigstellung
Oktober 2025
Nutzfläche
2400 m2
An dieser Stelle wird eine Google-Maps-Karte angezeigt, wenn Sie das Speichern der entsprechenden Cookies erlaubt haben. Dies können Sie über die Privatsphäre-Einstellungen jederzeit tun.
Zugeordnete Schlagworte und Sammlungen
Weitere Projekte des gleichen Büros (12)
-
Thüringer Aufbaubank, Umbau Benary-Verwaltungsgebäude
Erfurt
Gorkistraße 9, 99084 Erfurt
Spangenberg Reinke Braun Architekten Partnerschaft mbB, Erfurt
-
Rathaus Weißensee / Thür.
Weißensee
Marktplatz 26, 99631 Weißensee
Spangenberg Reinke Braun Architekten Partnerschaft mbB, Erfurt
-
Bürgerzentrum „Bertha von Suttner“
Sömmerda
Straße der Einheit 27, 99610 Sömmerda
Spangenberg Reinke Braun Architekten Partnerschaft mbB, Erfurt
-
Kreissparkasse Sömmerda, Umbau und Erweiterung Hauptstelle
Sömmerda
Bahnhofstraße 33-35, 99610 Sömmerda
Spangenberg Reinke Braun Architekten Partnerschaft mbB, Erfurt
-
Wohnhaus U., Sömmerda
Sömmerda
Pfarrstr.7, Sömmerda
Spangenberg Reinke Braun Architekten Partnerschaft mbB, Erfurt
-
Umbau und Sanierung Rundpavillon egapark Erfurt
Erfurt
Gothaer Straße 38, 99094 Erfurt OT Hochheim
Spangenberg Reinke Braun Architekten Partnerschaft mbB, Erfurt
Alkewitz Landschaftsarchitekten, Erfurt / Kathrin Meisel Innenarchitektur, Gera -
Allerheiligenkirche Erfurt, Sanierung und Einbau Kolumbarium
Erfurt
Allerheiligenstraße / Marktstraße, 99084 Erfurt
Spangenberg Reinke Braun Architekten Partnerschaft mbB, Erfurt
-
Brandschadensanierung Gildehaus Erfurt
Erfurt
Fischmarkt 13-16, 99084 Erfurt
Spangenberg Reinke Braun Architekten Partnerschaft mbB, Erfurt
-
Sanierung kath.Pfarrkirche St.Severi Erfurt
Erfurt
Severihof 2, 99084 Erfurt
Spangenberg Reinke Braun Architekten Partnerschaft mbB, Erfurt
-
Kirche Herbsleben, Sanierung und Umbau
Herbsleben
Kirchplatz 1, 99955 Herbsleben
Spangenberg Reinke Braun Architekten Partnerschaft mbB, Erfurt
-
Sparkasse Fischmarkt Erfurt
Erfurt
Fischmarkt 1, 99084 Erfurt
Spangenberg Reinke Braun Architekten Partnerschaft mbB, Erfurt
-
Neubau Geschäftsstelle Sparkasse Elxleben/Gera
Elxleben
Erfurter Straße 32, 99189 Elxleben
Spangenberg Reinke Braun Architekten Partnerschaft mbB, Erfurt
Letzte Aktualisierung dieser Seite am: 31.03.2026. Alle Angaben auf dieser Seite werden durch das Büro Spangenberg Reinke Braun Architekten Partnerschaft mbB, Erfurt auf freiwilliger Basis verwaltet. Das Büro ist für den Inhalt dieser Seite selbst verantwortlich. Die Angaben werden von der Architektenkammer Thüringen nicht geprüft.