Sanierung und Anbau Atelierhaus Prof. Peter Keler · Bad Berka
17 Projektbilder
-
Bild: Marcel Krummrich -
Küche mit Blick zum Wohnzimmer, Bild: Marcel Krummrich -
Zentraler Luftraum, Bild: Marcel Krummrich -
Wiege, Bild: Marcel Krummrich -
Ansicht Nacht, Bild: Marcel Krummrich -
Teilansicht Anbau, Bild: Marcel Krummrich -
Wendeltreppe im Atelierhaus, Bild: Marcel Krummrich -
Wohnzimmer, Bild: Marcel Krummrich -
Atelier, Bild: Marcel Krummrich -
Bad Neubau, Bild: Marcel Krummrich -
Bad Altbau, Bild: Marcel Krummrich -
Teilansicht Atelierhaus, Bild: Marcel Krummrich -
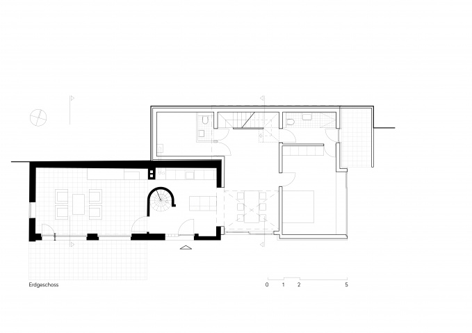
Grundriss Erdgeschoss, Bild: Thomas Schmidt -
Grundriss Obergeschoss, Bild: Thomas Schmidt -
Schnitt Altbau, Bild: Thomas Schmidt -
Schnitt Neubau, Bild: Thomas Schmidt -
Ansicht Garten, Bild: Thomas Schmidt
Projektbeschreibung
Mit ikonischen Designs wie der Wiege erschuf Peter Keler zeitlose Klassiker des Bauhauses. Sein denkmalgeschütztes, minimalistisches Atelierhaus wurde 1958 oberhalb eines alten Steinbruches erbaut und nun für eine Familie um einen Anbau ergänzt.
Dieser orientiert sich in seiner Kubatur und Lage an dem historischen Modell Kelers. Er nimmt neben der neuen Eingangssituation das Esszimmer und die Individualräume auf. Die Funktionen „Eingang“ und „Essen“ bilden, zweigeschossig über einen Luftraum verbunden, die kommunikative Fuge zwischen Alt und Neu.
Der als Holzbau errichtete Anbau entwickelt sich über gestaffelte, dunkle Fassadenflächen kleinteilig und öffnet sich über große Fenster zum umliegenden Garten.
Das Bauhaus-Denkmal wurde behutsam in seinen ursprünglichen Zustand versetzt, die Veränderungen der Fassadenstruktur rückgängig gemacht und die fließenden, großzügigen Innenräume wiederhergestellt.
Projektdaten
Adresse
99438 Bad Berka
Planungsbüro
herrschmidt architekten PartGmbB, Erfurt
Bauherr
privat
Fertigstellung
Dezember 2019
Nutzfläche
196,5 m2
An dieser Stelle wird eine Google-Maps-Karte angezeigt, wenn Sie das Speichern der entsprechenden Cookies erlaubt haben. Dies können Sie über die Privatsphäre-Einstellungen jederzeit tun.
Zugeordnete Schlagworte und Sammlungen
Weitere Projekte des gleichen Büros (12)
-
Psychologische Tagesklinik
Erfurt
Anger 21, 99084 Erfurt
herrschmidt architekten PartGmbB, Erfurt
Tag der Architektur 2026
Samstag, 27.06.2026 – geöffnet 14:00-16:00, Führungen 14:00, 15:00 (Treffpunkt: Eingang Anger 21)
-
Praxis für Kardiologie Dr. Löser
Weimar
Ludwig-Feuerbach-Straße 7a, 99425 Weimar
herrschmidt architekten PartGmbB, Erfurt
-
Revitalisierung des KONTOR-Gebäudes zu einem Zentrum der Kreativwirtschaft
Erfurt
Hugo-John-Straße 8, 99086 Erfurt OT Ilversgehofen
herrschmidt architekten PartGmbB, Erfurt
-
Praxis Dr. Göttinger
Erfurt
Tschaikowskistraße 24, 99094 Erfurt
herrschmidt architekten PartGmbB, Erfurt
-
Auf der Mauer - Wohnhauserweiterung in Erfurt
Erfurt
Am Holzberg, 99094 Erfurt OT Hochheim
herrschmidt architekten PartGmbB, Erfurt
-
Praxis für Orthopädie und Sportmedizin Erfurt
Erfurt
Tschaikowskistraße 24, 99096 Erfurt
herrschmidt architekten PartGmbB, Erfurt
-
Turmhaus am Wenigemarkt in Erfurt
Erfurt
Wenigemarkt 21, 99084 Erfurt
herrschmidt architekten PartGmbB, Erfurt
ADOBE Architekten + Ingenieure GmbH, Erfurt
-
Sanierung und Umbau Friseur Rundhairum
Erfurt
Barfüsserstraße 3, 99084 Erfurt OT Altstadt
herrschmidt architekten PartGmbB, Erfurt
-
openbook-der öffentliche Bücherschrank
Erfurt
Magdeburger Allee 116, 99089 Erfurt
herrschmidt architekten PartGmbB, Erfurt
Letzte Aktualisierung dieser Seite am: 23.03.2022. Alle Angaben auf dieser Seite werden durch das Büro herrschmidt architekten PartGmbB, Erfurt auf freiwilliger Basis verwaltet. Das Büro ist für den Inhalt dieser Seite selbst verantwortlich. Die Angaben werden von der Architektenkammer Thüringen nicht geprüft.