Umbau ehem. DHL Gebäude zum Verwaltungssitz der Wohnungsbau GmbH d. Stadt Schmalkalden
16 Projektbilder
-
Büroflur Obergeschoss, Bild: Jürgen Ballasus -
Treppenhaus Obergeschoss, Bild: Jürgen Ballasus -
Treppenhaus mit Hauptpodest im Erdgeschoss, Bild: Jürgen Ballasus -
Treppenauge Blick nach oben, Bild: Jürgen Ballasus -
Treppenauge Blick nach unten, Bild: Jürgen Ballasus -
Treppenauge Blick nach unten, Bild: Jürgen Ballasus -
Gebäudehauptfassade, Bild: Jürgen Ballasus -
Gebäudeschnitt, Bild: Jürgen Ballasus -
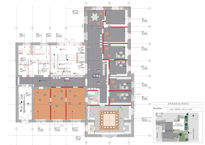
Grundriss Erdgeschoss, Bild: Jürgen Ballasus -
Eingang EG bei Beleuchtung, Bild: Stefan Barwinek -
Treppe bei Beleuchtung, Bild: Stefan Barwinek -
Gebäudeansicht Süd, Bild: Marius Ballasus -
Haupteingang Treppenhaus, Bild: Marius Ballasus -
Treppenauge neues Treppenhaus, Blick nach oben, Bild: Marius Ballasus -
Gebäudeansicht Westen, Bild: Marius Ballasus -
Gebäudeansicht Ost- Haupteingang, Bild: Marius Ballasus
Projektbeschreibung
Das ehemalige DHL Gebäude wurde in den Verwaltungssizt der Wohnungsbau GmbH d. Stadt Schmalkalden mit 3 Wohnungen im Dachgeschoss umgebaut.
Dabei wurde die bestehende Baukonstruktion im Bestand belassen. Als prägnante Umbaumaßnahme präsentiert sich das neue, zusätzlich geschaffene Treppenhaus mit Aufzug im Bereich ehemaliger Büro- u. Sortieräume. Ohne das Bauwerk im Dach und Fassade zu öffnen, wurde eine monolithische Treppenskulptur in das Bauwerk integriert. Ein nach oben sich verjüngendes Treppenauge und gegeneinander versetzt angeordnete Treppenläufe öffnen das vom Dachgeschoss belichtete Treppenhaus für Tageslicht. Im Erdgeschoss wurden neue Büroräume geschaffen.
Projektdaten
Adresse
Hinter der Stadt 4
98574 Schmalkalden
Planungsbüro
Architekturbüro Ballasus, Weimar
Bauherr
Wohnungsbau GmbH der Stadt Schmalkalden
Fertigstellung
März 2024
Nutzfläche
1750 m2
An dieser Stelle wird eine Google-Maps-Karte angezeigt, wenn Sie das Speichern der entsprechenden Cookies erlaubt haben. Dies können Sie über die Privatsphäre-Einstellungen jederzeit tun.
Zugeordnete Schlagworte und Sammlungen
Weitere Projekte des gleichen Büros (14)
-
Neubau Zeil 107 Frankfurt
Frankfurt am Main
Zeil 107, 60313 Frankfurt am Main
Architekturbüro Ballasus, Weimar
-
Erweiterung Lager Werk 3, Joop GmbH, Bad Neustadt
Bad Neustadt
Gartenstraße 14, 97616 Bad Neustadt
Architekturbüro Ballasus, Weimar
-
Umbau Geschäftshaus Wiesbaden, Kirchgasse 62
Wiesbaden
Kirchgasse 62, 55246 Wiesbaden
Architekturbüro Ballasus, Weimar
-
Umbau Geschäftshaus Erfurt, Anger 24
Erfurt
Anger, 24, 99084 Erfurt
Architekturbüro Ballasus, Weimar
Letzte Aktualisierung dieser Seite am: 24.05.2024. Alle Angaben auf dieser Seite werden durch das Büro Architekturbüro Ballasus, Weimar auf freiwilliger Basis verwaltet. Das Büro ist für den Inhalt dieser Seite selbst verantwortlich. Die Angaben werden von der Architektenkammer Thüringen nicht geprüft.