Umbau Geschäftshaus Erfurt, Anger 24 · Erfurt
10 Projektbilder
-
Glasanbau, Bild: Jürgen Ballasus -
Bestandsfassade innen, Bild: Jürgen Ballasus -
neuer Treppenaufgang, Bild: Jürgen Ballasus -
Ladenzone Erdgeschoss, Bild: Jürgen Ballasus -
Gebäudeansicht Anger, Bild: Jürgen Ballasus -
Aufgang, Bild: Jürgen Ballasus -
Glasanbau, Bild: Jürgen Ballasus -
Erweiterung und Innenausbau, Bild: Jürgen Ballasus -
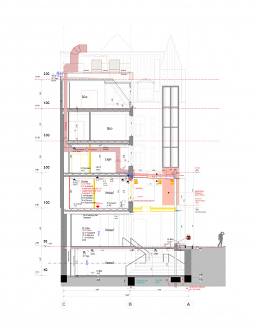
Schnitt Glasanbau, Bild: Jürgen Ballasus -
1. Obergeschoss | neue Ladennutzung, Bild: Jürgen Ballasus
Projektbeschreibung
Das Büro- u. Geschäftshaus Anger 24 wurde 1900 als Haus zur Goldenen Krone von den Gebrüdern Lamm errichtet. Ursprünglich wurde es als Textilgeschäft mit Textilfertigung genutzt. 1998 wurde das Gebäude an einen Investor verkauft und komplett saniert. Das heutige Geschäft sollte 2016 um weitere Verkaufsflächen vergrößert werden. Das 1.OG wurde der Ladennutzung zugefügt und der eingeschossige Wintergarten gegen einen großzügigen Glasanbau ersetzt. Dieser beherbergt die Erschließung zum Unter- u. Obergeschoss. Durch den Verzicht auf Decken im Glasanbau entstand ein imposanter Raum, welcher Sichtbeziehungen in alle Verkaufsebenen zulässt und großzügig wirkt. Die neue Glasfassade des Wintergartens bezieht die Keilhauergasse durch große ungeteilte Glasflächen in den Verkaufsraum mit ein.
Projektdaten
Adresse
Anger, 24
99084 Erfurt
Planungsbüro
Architekturbüro Ballasus, Weimar
Bauherr
gewerblich
Fertigstellung
November 2016
An dieser Stelle wird eine Google-Maps-Karte angezeigt, wenn Sie das Speichern der entsprechenden Cookies erlaubt haben. Dies können Sie über die Privatsphäre-Einstellungen jederzeit tun.
Zugeordnete Schlagworte und Sammlungen
Weitere Projekte des gleichen Büros (14)
-
Umbau ehem. DHL Gebäude zum Verwaltungssitz der Wohnungsbau GmbH d. Stadt Schmalkalden
Schmalkalden
Hinter der Stadt 4, 98574 Schmalkalden
Architekturbüro Ballasus, Weimar
-
Neubau Zeil 107 Frankfurt
Frankfurt am Main
Zeil 107, 60313 Frankfurt am Main
Architekturbüro Ballasus, Weimar
-
Erweiterung Lager Werk 3, Joop GmbH, Bad Neustadt
Bad Neustadt
Gartenstraße 14, 97616 Bad Neustadt
Architekturbüro Ballasus, Weimar
-
Umbau Geschäftshaus Wiesbaden, Kirchgasse 62
Wiesbaden
Kirchgasse 62, 55246 Wiesbaden
Architekturbüro Ballasus, Weimar
Letzte Aktualisierung dieser Seite am: 16.05.2017. Alle Angaben auf dieser Seite werden durch das Büro Architekturbüro Ballasus, Weimar auf freiwilliger Basis verwaltet. Das Büro ist für den Inhalt dieser Seite selbst verantwortlich. Die Angaben werden von der Architektenkammer Thüringen nicht geprüft.