Umbau, Modernisierung und Neugestaltung der Freianlagen der Wohngebäude Allendestraße 77 bis 83 im Wohngebiet Walperloh der Stadt Schmalkalden
WOHNSTADT Stadtentwicklungs- und Wohnungsbaugesellschaft Hessen mbH, Geschäftsstelle Weimar, Weimar
18 Projektbilder
-
Allendestraße 81/83 von Südosten, Bild: Claus Dieter Untermann -
Allendestraße 77 und 81/83 von Südwesten, Bild: Claus Dieter Untermann -
Westliche Giebelansicht der Allendestraße 81, Bild: Claus Dieter Untermann -
Ansicht der Wohnhäuser von Nordosten, Bild: Claus Dieter Untermann -
Allendestraße 83 aus südöstlicher Richtung, Bild: Claus Dieter Untermann -
Giebelansicht Allendestraße 83 aus südöstlicher Richtung, Bild: Claus Dieter Untermann -
Allendestraße 81/83 von Nordosten, Bild: Claus Dieter Untermann -
Gestaltplan der Freianlagen, Bild: Ines Klinke -
Übersichtslageplan mit Stellplätzen, Bild: Claus Dieter Untermann -
Neuer Freiraum zwischen den Häuser Allendestraße 77 und 81, Bild: Ines Klinke -
Der Wohnblock Allendestraße 77 - 83 zu Beginn des Teilrückbaus, Bild: Ines Klinke -
Der neue Freiraum im Blütenwandel, Bild: Ines Klinke -
Detailansicht Hauseingang Allendestraße 83, Bild: Ines Klinke -
3-Raum-Wohnung mit Hauswirtschaftsraum, Bild: Dr. Andrea Untermann -
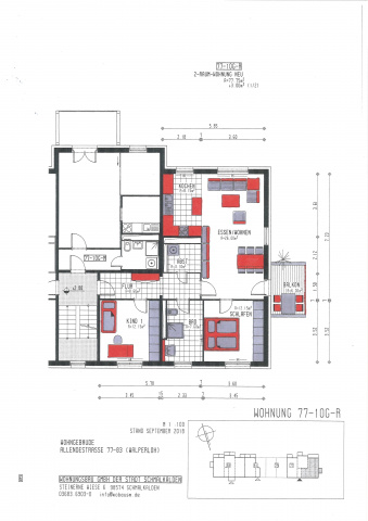
2-Raum-Wohnung mit Hauswirtschaftsraum, Bild: Dr. Andrea Untermann -
Beispiel einer 2-Raum-Wohnung, Bild: Dr. Andrea Untermann -
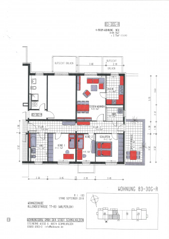
Beispiel einer 4-Raum-Wohnung mit Dachterrasse, Bild: Dr. Andrea Untermann -
Beispiel einer 2-Raum-Wohnung, Bild: Dr. Andrea Untermann
Projektbeschreibung
Die Stadt Schmalkalden hat begonnen, durch verschiedene Maßnahmen und Projekte dem Wohngebiet Walperloh zu einem neuen Image zu verhelfen. Für diesen Imagewandel leistet nach mehrjährigem Leerstand und Zwangsversteigerung der Umbau, die Sanierung und die Neugestaltung der Freianlagen der Wohngebäude Allendestraße 77 bis 83 einen wichtigen und deutlich sichtbaren Beitrag. In exponierter Lage am höchsten Punkt des Wohngebietes entstanden aus einem 6geschossigen Wohnblock mit 60 Wohnungen nach mit Mitteln des Stadtumbaus gefördertem Teilrückbau zwei moderne Wohnhäuser mit insgesamt 30 neu gestalteten Wohnungen mit großen Balkonen. Durch Einbau eines Aufzuges sind 18 Wohnungen barrierefrei erschlossen. Die technische und gärtnerische Neugestaltung der Freianlagen erfüllt alle Anforderungen des Wohnens.
Projektdaten
Adresse
Allendestraße 77 bis 83
98574 Schmalkalden OT Walperloh
Planungsbüros
WOHNSTADT Stadtentwicklungs- und Wohnungsbaugesellschaft Hessen mbH, Geschäftsstelle Weimar, Weimar
Architekturbüro Freie Architektin Dr. Andrea Untermann, Bad Berka
Ines Klinke Freie Stadtplanerin Büro für Stadtraum, Ortsentwicklung, Ortsgestaltung, Erfurt
Bauherr
Wohnungsbau GmbH Stadt Schmalkalden
Fertigstellung
Juli 2019
Nutzfläche
1926 m2
An dieser Stelle wird eine Google-Maps-Karte angezeigt, wenn Sie das Speichern der entsprechenden Cookies erlaubt haben. Dies können Sie über die Privatsphäre-Einstellungen jederzeit tun.
Zugeordnete Schlagworte und Sammlungen
Weitere Projekte des gleichen Büros (5)
-
Modernisierung und Umnutzung des Gebäudes B2 des ehemaligen Nadelwerkes in Ichtershausen
Amt Wachsenburg
Erfurter Straße 42, 99334 Amt Wachsenburg OT Ichtershausen
WOHNSTADT Stadtentwicklungs- und Wohnungsbaugesellschaft Hessen mbH, Geschäftsstelle Weimar, Weimar
Architekturbüro Freie Architektin Dr. Andrea Untermann, Bad Berka -
Umbau und Modernisierung Wohnanlage Fritzelsgasse 8-26 in Gotha
Gotha
Fritzelsgasse 8 bis 26, 99867 Gotha
WOHNSTADT Stadtentwicklungs- und Wohnungsbaugesellschaft Hessen mbH, Geschäftsstelle Weimar, Weimar
-
Sozialer Wohungsbau Am Ringelberg
Erfurt
Joseph-Albers-Straße 1/ Lyonel-Feininger-Straße 4-6, Erfurt OT Vieselbach
WOHNSTADT Stadtentwicklungs- und Wohnungsbaugesellschaft Hessen mbH, Geschäftsstelle Weimar, Weimar
-
Umbau und Modernisierung der Wohngebäude Stumpfelsgasse 1 bis 5 und Braugasse 1 in 98574 Schmalkalden
Schmalkalden
Stumpfelsgasse 1 bis 5 und Braugasse 1, 98574 Schmalkalden
WOHNSTADT Stadtentwicklungs- und Wohnungsbaugesellschaft Hessen mbH, Geschäftsstelle Weimar, Weimar
Architekturbüro Dr. Andrea Untermann, Bad Berka -
Denkmalgerechte Sanierung Gartenstadtsiedlung "Am Schmalen Rain"
Gotha
Friedrich-Ebert-Straße 26 - 34, 99867 Gotha
WOHNSTADT Stadtentwicklungs- und Wohnungsbaugesellschaft Hessen mbH, Geschäftsstelle Weimar, Weimar
Heinisch Landschaftsarchitekten, Weimar
Letzte Aktualisierung dieser Seite am: 20.05.2021. Alle Angaben auf dieser Seite werden durch das Büro WOHNSTADT Stadtentwicklungs- und Wohnungsbaugesellschaft Hessen mbH, Geschäftsstelle Weimar, Weimar auf freiwilliger Basis verwaltet. Das Büro ist für den Inhalt dieser Seite selbst verantwortlich. Die Angaben werden von der Architektenkammer Thüringen nicht geprüft.