Umbau und Neugestaltung Kurmittelhaus Bad Klosterlausnitz
Innenarchitekt Dipl.-Ing. (FH) Christian Poppitz, Zeulenroda-Triebes
15 Projektbilder
-
KMH_Bad Klosterlausnitz_Touristinfo_Tresendialog_mit EDV Verkl_EG, Bild: Christian Poppitz -
KMH_Bad Klosterlausnitz_Touristinfo_EDV-Serververkl_Sitznische_EG, Bild: Christian Poppitz -
KMH_Bad Klosterlausnitz_Touristinfo_Tresen mit Prospektwand_EG, Bild: Christian Poppitz -
Wandelhalle im Erdgeschoss, Bild: Christian Poppitz -
KMH_Bad Klosterlausnitz_Wandelhalle_Deckensegel_EG, Bild: Christian Poppitz -
KMH_Bad Klosterlausnitz_Touristinfo_Detail_Prospektwand_EG, Bild: Christian Poppitz -
KMH_Bad Klosterlausnitz_Wandelhalle_Blick auf Wandbrunnen_EG, Bild: Christian Poppitz -
KMH_Bad Klosterlausnitz_Wandelhalle_Vitrinenelemente_EG, Bild: Christian Poppitz -
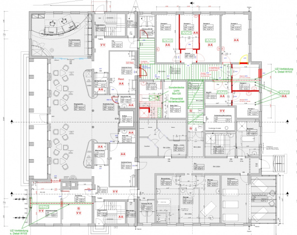
05_Grund EG_Planung Unterdecken_TB_Maler 2BA_Index B__23_02_2023, Bild: Christian Poppitz -
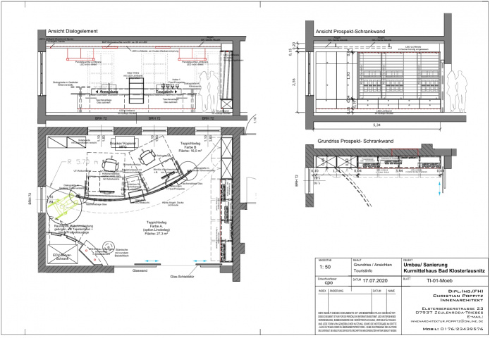
Ent_KMH_KLS_DIN A3 Q_Touristinfo_Grundr_Ansi_EG_M_1_50_cpo_17.07.2020, Bild: Christian Poppitz -
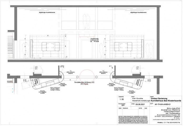
AF-TI-WH-ANSI-01_GR_Ansi _Automatenverkleidung_09.08.2021, Bild: Christian Poppitz -
AF-TI-03_Prospekt-SW_Ansi GR_Schnitt_09.08.2021, Bild: Christian Poppitz -
KMH_Bad Klosterlausnitz_Touristinfo_EDV-Serververkl_EG, Bild: Christian Poppitz -
KMH_Bad Klosterlausnitz_Wandelhalle_Vitrinen_Automatenverkl_EG, Bild: Christian Poppitz -
KMH_Bad Klosterlausnitz_Kurmittelhaus Außenfoto, Bild: Christian Poppitz
Projektbeschreibung
Umbau und Neugestaltung Kurmittelhaus Bad Klosterlausnitz
Die innenarchitektonische Neugestaltung umfasste die Wandel-Eingangshalle und die angrenzende Touristinformation. In einzelnen Behandlungs-/Massage-und Ruheräumen wurde zudem die Möblierung und die Farbgestaltung, inkl. Decken-Lichtgestaltung neu geplant.
Ausgangssituation:
Eine in die Jahre gekommene, nicht mehr zeitgemäße Einrichtung und eine zusammenhangslose, nüchtern wirkende Orientierungs- Ausstellungsanordnung in der Wandelhalle, die sich den Besuchern und Behandlungspatienten über zwei Etagen erstreckend als nicht einladend und akustisch problematisch darstellte. Angrenzend kaum wahrnehmbar, befand sich in der Ecke der Wandelhalle der Zugang zur Touristinfo mit einer ebenfalls räumlich sehr beengten Raumsituation für die Informationsbroschüren und der für die MitarbeiterInnen problematischen Arbeitsplatzsituation.
Zielstellung:
Herstellung eines räumlich und optisch schnell erfassbaren Bezugs zwischen Wandelhalle und der offen, einladend, neu zu gestaltenden Touristinfo, durch Vergrößerung des Durchgangs, durch Behindertengerechte Tresen-Dialogelemente mit dahinter zwei Frontdesk-Arbeitsplätzen, einer Besucher-Sitzmöglichkeit, sowie Stauraum und einem innovativen Informations-Präsentationsflächensystem für Flyer, Infomaterial und Verkaufssouvenirs in Vitrinen. Integration des EDV-Serverbereichs durch Verkleidung, sowie komplette akustisch wirksame Decken- und Lichtgestaltung in Einklang mit einer abgerundeten an den Kurmittelbetrieb angepassten Designsprache. Über die Auswahl der gerundeten Formensprache und der sich in die Wandelhalle erstreckenden Farb- und Formgebung der Möblierung in frischen gelbgrünen Farbakzenten wird die funktionale und optische Einheit hergestellt. In der Wandelhalle wurde die Sitzmöblierung mit handelsüblichen Herstellerkollektionen und zwei neuen symmetrisch angeordneten Einbauelementen mit Vitrinen- und Geräte-Einbauelementen zur Integration bestehender Getränkeautomaten neu gestaltet. Außerdem wurde in der Wandelhalle aus akustischen und Lichttechnischen Gründen die Decke als Akustikstreulochdecke mit darunter abgehängten LED- hinterleuchteten, farblich gestalteten Akustiksegeln neu gestaltet. Das Projekt wurde mit Fördermitteln des Freistaats Thüringen unterstützt.
Projektdaten
Adresse
Hermann-Sachse-Straße 44
07639 Bad Klosterlausnitz OT Bad Klosterlausnitz, Kurpark
Planungsbüro
Innenarchitekt Dipl.-Ing. (FH) Christian Poppitz, Zeulenroda-Triebes
Bauherr
Gemeinde Bad Klosterlausnitz, Bauamt
Fertigstellung
April 2022
Nutzfläche
261,96 m2
An dieser Stelle wird eine Google-Maps-Karte angezeigt, wenn Sie das Speichern der entsprechenden Cookies erlaubt haben. Dies können Sie über die Privatsphäre-Einstellungen jederzeit tun.
Zugeordnete Schlagworte und Sammlungen
Letzte Aktualisierung dieser Seite am: 05.06.2025. Alle Angaben auf dieser Seite werden durch das Büro Innenarchitekt Dipl.-Ing. (FH) Christian Poppitz, Zeulenroda-Triebes auf freiwilliger Basis verwaltet. Das Büro ist für den Inhalt dieser Seite selbst verantwortlich. Die Angaben werden von der Architektenkammer Thüringen nicht geprüft.