Umnutzung Verkaufsstätte zu Wohnungen für Menschen mit Behinderung · Nordhausen
8 Projektbilder
-
Straßenansicht, Bild: Matthias Wagner -
Hofansicht, Bild: Matthias Wagner -
Hof im Erdgeschoss, Bild: Matthias Wagner -
Treppenhaus, Bild: Matthias Wagner -
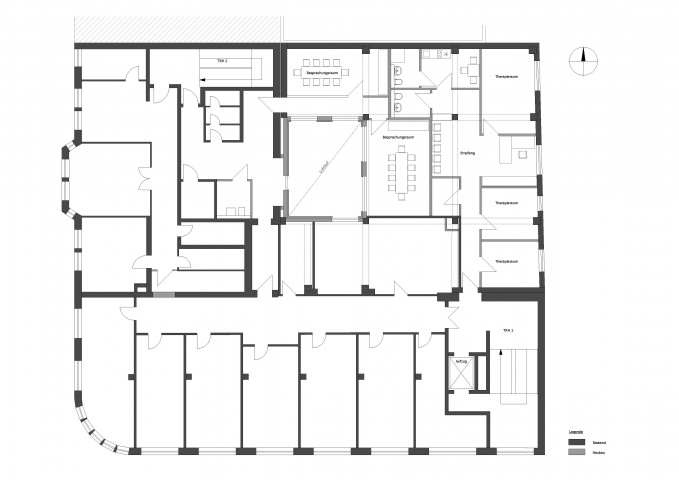
Erdgeschoss, Bild: Matthias Wagner -
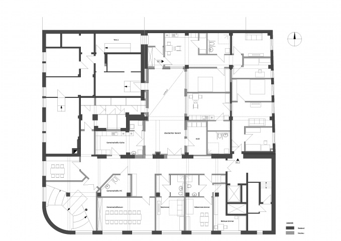
Erdgeschoss 2, Bild: Matthias Wagner -
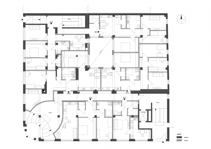
1. Obergeschoss, Bild: Matthias Wagner -
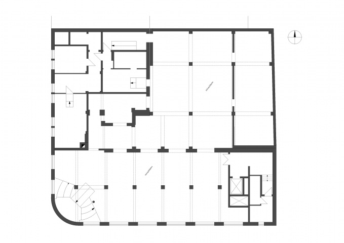
Erdgeschoss 1 vor dem Umbau, Bild: Matthias Wagner
Projektbeschreibung
Mitte der 1990er Jahre wurde der Hof des ehemaligen, traditionsreichen Kaufhauses „Magnet“, als Erweiterungsmaßnahme der Verkaufs-, Geschäfts-, und Lagerflächen, über 3 Vollgeschosse durch einen Stahlbetonskelettbau komplett bebaut. In der viergeschossigen (plus ausgebautem Dachgeschoss) historischen Eckbebauung waren und sind Büros sowie Praxen untergebracht. Die nicht belichteten Verkaufs- und Lagerflächen des Erweiterungsbaues standen über 10 Jahre leer. Der jetzige Eigentümer und der Hauptmieter, die Nordthüringer Lebenshilfe, suchten ein neues und tragfähiges Nutzungskonzept. Ziel war es, Familienwohnungen für Menschen mit Behinderung inkl. der dazugehörigen und erforderlichen Gemeinschafts- und Betreuungsräume, Besprechungs- und Praxisräume, sowie eine Wohngemeinschaft für Menschen mit Behinderung zu schaffen. Um den Erweiterungsbau für diese Anforderungen nutzbar zu machen, galt es, das Problem der Belichtung und Belüftung der neu entstehenden Wohnungen zu lösen.
Der hinzugefügte Stahlbetonskelettbau besteht aus 9 Feldern. Die einzige Möglichkeit Licht und Luft in diesen Gebäudeteil zu bekommen war, eines dieser Felder komplett vom Dach bis zur Erdgeschoßdecke herauszunehmen und so einen neuen Lichthof zu schaffen an dem sich ein Großteil der neuen Wohnungen und Besprechungsräume herum anordnet. Zusätzliche Fenster konnten auf der Ostseite des Erweiterungsbaues, durch vorhandene eingetragene Baulasten, gewährleitet werden. 90% der neu errichteten Wohnungen sind rollstuhlgerecht und über eine Liftanlage zu erreichen. Die entstandenen Drei- bis Vierraumwohnungen haben eine Größe von 80m2 bis 110 m2. Durch das beschriebene Projekt entsteht in Nordhausen erstmals bezahlbarer barrierefreier Wohnraum für Menschen mit Behinderung mitten in der Stadt. Damit soll erreicht werden, dass von Behinderung betroffene Menschen nicht an den Rand der Stadt gedrängt werden, sondern von der guten Infrastruktur der Innenstadt profitieren können und leichter Zugang zum Leben der Gemeinschaft finden. Die Diversität der Wohnsituation in der Stadt wird damit weiter gefördert. Insbesondere Menschen mit höherem Assistenzbedarf können in intensiv betreuten Wohngemeinschaften eine Alternative zum stationären Wohnen im Wohn- oder Pflegeheim finden.
Projektdaten
Adresse
Bahnhofstraße 20a
99734 Nordhausen
Planungsbüro
Architekturbüro Wagner, Nordhausen
Bauherr
privat
Fertigstellung
Dezember 2017
Nutzfläche
2262 m2
An dieser Stelle wird eine Google-Maps-Karte angezeigt, wenn Sie das Speichern der entsprechenden Cookies erlaubt haben. Dies können Sie über die Privatsphäre-Einstellungen jederzeit tun.
Zugeordnete Schlagworte und Sammlungen
Weitere Projekte des gleichen Büros (6)
-
Neubau eines Landmaschinenbetriebes
Nordhausen
Kleinwertherstraße 51, 99734 Nordhausen OT Hesserode
Architekturbüro Wagner, Nordhausen
-
Fassadengestaltung Bediengebäude
Nordhausen
Alexander-Puschkin-Straße 11-13, 99734 Nordhausen
Architekturbüro Wagner, Nordhausen
-
Neubau Geschosswohnungsbau
Nordhausen
Aueblick 20-22, 99734 Nordhausen
Architekturbüro Wagner, Nordhausen
-
Errichtung eines Wohnhauses mit 2 Wohneinheiten
Ellrich
Jüdenstraße 31/33, 99755 Ellrich
Architekturbüro Wagner, Nordhausen
-
Neubau eines Einfamilienhauses mit Werkstatt und Carport
Nordhausen
Strohmühlenweg 7a, 99734 Nordhausen
Architekturbüro Wagner, Nordhausen
-
Umbau, Sanierung und Dachgeschossausbau
Nordhausen
Altendorf 41, 99734 Nordhausen OT Altendorf
Architekturbüro Wagner, Nordhausen
Letzte Aktualisierung dieser Seite am: 07.03.2019. Alle Angaben auf dieser Seite werden durch das Büro Architekturbüro Wagner, Nordhausen auf freiwilliger Basis verwaltet. Das Büro ist für den Inhalt dieser Seite selbst verantwortlich. Die Angaben werden von der Architektenkammer Thüringen nicht geprüft.