Bootshaus Jenaer Ruder- und Seesportverein e.V. · Jena
ETB Bauprojekt Architektur- und Ingenieurbüro Jena GmbH, Jena
5 Projektbilder
Projektbeschreibung
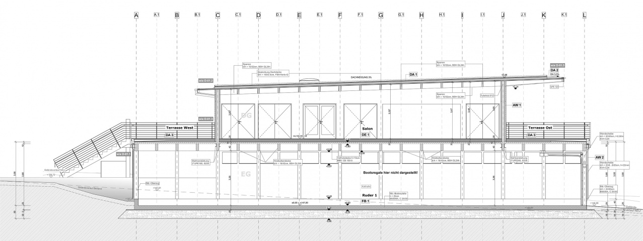
Für den Ruder- und Seesportverein hat die KIJ (Kommunale Immobilien Jena) ein neues Ruderbootshaus in Auftrag gegeben. Das Gebäude wurde auf einem massiven Sockel in Holzbauweise errichtet. Im Erdgeschoss befinden sich die Bootslagerhalle, die Reparaturwerkstatt sowie die Haustechnikräume. Ebenso wurde hier eine barrierefreie Sanitäreinheit untergebracht, die künftig auch Wasserwanderern zur Verfügung stehen soll. Im Obergeschoss sind die Vereinsräume angeordnet, ebenso die Umkleiden und Sanitärbereiche für die Sportler. Das weit auskragende Dach schützt große Teile der großzügigen Terrassen, die so wetterunabhängig eine vielfältige Nutzung in den Sommermonaten ermöglichen.
Projektdaten
Adresse
Burgauer Weg 7
07745 Jena
Planungsbüros
ETB Bauprojekt Architektur- und Ingenieurbüro Jena GmbH, Jena
RoosGrün, Weimar
Bauherr
KIJ Kommunale Immobilien Jena
Fertigstellung
März 2021
Nutzfläche
930 m2
Preise/Auszeichnungen
Jenaer Fassadenpreis 2021
An dieser Stelle wird eine Google-Maps-Karte angezeigt, wenn Sie das Speichern der entsprechenden Cookies erlaubt haben. Dies können Sie über die Privatsphäre-Einstellungen jederzeit tun.
Zugeordnete Schlagworte und Sammlungen
Weitere Projekte des gleichen Büros (9)
-
Veranstaltungszentrum KuBuS
Jena
Theobald-Renner-Straße 1a, 07747 Jena
ETB Bauprojekt Architektur- und Ingenieurbüro Jena GmbH, Jena
-
Einfamilienhaus und Gartengestaltung Fuchslöcher
Jena
Rothirschweg 37, 07749 Jena OT Wenigenjena
ETB Bauprojekt Architektur- und Ingenieurbüro Jena GmbH, Jena
-
Einfamilienhaus und Gartengestaltung Ammerbach
Jena
Ammerbacher Straße 107b, 07745 Jena OT Ammerbach
ETB Bauprojekt Architektur- und Ingenieurbüro Jena GmbH, Jena
-
TierGesundheitsZentrum Jena-West
Jena
Erfurter Straße 50, 07743 Jena OT Jena-West
ETB Bauprojekt Architektur- und Ingenieurbüro Jena GmbH, Jena
-
Innensanierung Nordschule Jena
Jena
Dornburger Straße 31, 07743 Jena
ETB Bauprojekt Architektur- und Ingenieurbüro Jena GmbH, Jena
Elke Dietrich, Freie Landschaftsarchitektin (FH), Jena -
Einfamilienhaus Kernberge
Jena
Obere Kernbergstraße 8, 07749 Jena
ETB Bauprojekt Architektur- und Ingenieurbüro Jena GmbH, Jena
-
EFH Südviertel
Jena
Eichendorffweg 17, 07745 Jena
ETB Bauprojekt Architektur- und Ingenieurbüro Jena GmbH, Jena
-
Einfamilienhaus Jena-Ilmnitz
Jena
In den halben Äckern 14a, 07751 Jena
ETB Bauprojekt Architektur- und Ingenieurbüro Jena GmbH, Jena
-
Firmensitz Optikmaschinenbau
Jena
Mälzerstraße 1, 07745 Jena
ETB Bauprojekt Architektur- und Ingenieurbüro Jena GmbH, Jena
Letzte Aktualisierung dieser Seite am: 09.05.2022. Alle Angaben auf dieser Seite werden durch das Büro ETB Bauprojekt Architektur- und Ingenieurbüro Jena GmbH, Jena auf freiwilliger Basis verwaltet. Das Büro ist für den Inhalt dieser Seite selbst verantwortlich. Die Angaben werden von der Architektenkammer Thüringen nicht geprüft.