EFH aus Holz und Lehm · Erfurt
11 Projektbilder
-
Straßenansicht, Bild: Cornelia Sell -
Ansicht Ost, Bild: Cornelia Sell -
Nordostecke mit Zugang, Bild: Cornelia Sell -
Zugang -
Ansicht Süd, Bild: Cornelia Sell -
Detail Überdachung, Bild: Cornelia Sell -
Detail Sonnenschutz, Bild: Cornelia Sell -
zentraler Wohnbereich, Bild: Cornelia Sell -
Pfeiler Nordwestecke, Bild: Cornelia Sell -
Detail Nordwestecke -
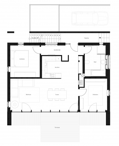
GR Erdgeschoss, Bild: Cornelia Sell
Tag der Architektur 2026
Samstag, 27.06.2026 – geöffnet 15:00-17:00
Sonntag, 28.06.2026 – geöffnet 10:00-17:00
Projektbeschreibung
Aus der Idee, sich nach dem Auszug der Kinder zu verkleinern, entstand ein eingeschossiges, ökologisches Haus aus Holz und Lehm, das sich nach Süden zum Garten hin öffnet. Die großzügige Glasfront wurde als tragende Holz-Pfosten-Riegel-Fassade errichtet, wobei die Überdachung als baulicher Sonnenschutz dient. Die Überhöhung im zentralen Bereich bringt zusätzliches Licht in den Kochbereich. Durch die offene Gestaltung des zentralen Koch-, Ess- und Wohnbereichs entsteht ein großzügiger Raumeindruck. Das Haus wurde als tragendes Holzfachwerk errichtet, mit Stampflehm ausgefacht, die Innenwände mit Lehm verputzt und die Außenwände mit Holzfaserdämmplatten sowie lasierten Lärchenleisten verkleidet. Die Massivholzdecken sind mit Schilfmatten bekleidet und ebenfalls mit Lehm verputzt worden.
Projektdaten
Adresse
Hauptstraße 57
99094 Erfurt OT Möbisburg
Planungsbüro
Bauherr
Holger und Cornelia Sell
Fertigstellung
September 2025
Nutzfläche
79 m2
An dieser Stelle wird eine Google-Maps-Karte angezeigt, wenn Sie das Speichern der entsprechenden Cookies erlaubt haben. Dies können Sie über die Privatsphäre-Einstellungen jederzeit tun.
Zugeordnete Schlagworte und Sammlungen
Weitere Projekte des gleichen Büros (6)
-
Feuerwehrgerätehaus Gutendorf
Bad Berka
Gutendorfer Str. 24, 99438 Bad Berka OT Gutendorf
Architekturbüro Sell, Erfurt
Gundula Linse freie Architektin KONTOR, ErfurtTag der Architektur 2026
Samstag, 27.06.2026 – geöffnet 10:00-16:00
-
-
-
Letzte Aktualisierung dieser Seite am: 05.05.2026. Alle Angaben auf dieser Seite werden durch das Büro Architekturbüro Sell, Erfurt auf freiwilliger Basis verwaltet. Das Büro ist für den Inhalt dieser Seite selbst verantwortlich. Die Angaben werden von der Architektenkammer Thüringen nicht geprüft.