Einfamilienhaus Gehlenberg · Friesoythe
7 Projektbilder
Projektbeschreibung
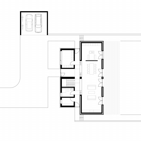
Neubau eines Einfamilienhauses in Gehlenberg. Das Gebäude ist durch eine Fuge zweigeteilt. Im kleineren Teil befinden sich die sogenannten dienenden Räume wie Bad, Diele, Gäste-WC und Hauswirtschaftraum. Im größeren Teil befindet sich im EG das große Wohnzimmer mit Küche und im OG die Kinderzimmer und das elterliche Schlafzimmer.
Auch von außen kann man die Teilung durch die Wahl unterschiedlicher Fassadenmaterialien, Putz bzw. Klinker, erkennen.
Projektdaten
Adresse
26169 Friesoythe OT Gehlenberg
Planungsbüro
ARCHITEKT MAURICE FIEDLER, Erfurt
Bauherr
privat
Fertigstellung
2005
An dieser Stelle wird eine Google-Maps-Karte angezeigt, wenn Sie das Speichern der entsprechenden Cookies erlaubt haben. Dies können Sie über die Privatsphäre-Einstellungen jederzeit tun.
Zugeordnete Schlagworte und Sammlungen
Weitere Projekte des gleichen Büros (19)
-
Multitalent Ossietzky Hof
Nordhausen
Dr.-Robert-Koch-Straße 4–18, Carl-von-Ossietzky-Straße 3–6, 99734 Nordhausen
ARCHITEKT MAURICE FIEDLER, Erfurt
plandrei Landschaftsarchitektur GmbH, Erfurt | Hütten & Paläste, Berlin | ZRS Architekten Ingenieure, Berlin -
Wettbewerb „Haus der Generationen“
Erfurt
Erfurt
ARCHITEKT MAURICE FIEDLER, Erfurt
Architekt Stephan Sittig, Jena -
Umnutzung eines denkmalgeschützten ehemaligen Großhandelskontors in Erfurt
Erfurt
Hugo-John-Strasse, 8, 99086 Erfurt
ARCHITEKT MAURICE FIEDLER, Erfurt
-
Generalsanierung Kindertagesstätte „Fuchs und Elster“ Erfurt
Erfurt
Eislebener Str. 8, 99086 Erfurt OT Johannesplatz
ARCHITEKT MAURICE FIEDLER, Erfurt
-
Denkmalgerechte Revitalisierung Rittergut „Alter Hof“ Neudietendorf
Neudietendorf
Zinzendorfstraße, 99192 Neudietendorf
ARCHITEKT MAURICE FIEDLER, Erfurt
Carsten Eichholz architektur + energie, Erfurt -
Creative-Lounge der AOK PLUS
Erfurt
Augustinerstraße 38, 99084 Erfurt
ARCHITEKT MAURICE FIEDLER, Erfurt
-
Umbau einer Geschäftsstelle der AOK PLUS
Erfurt
Samuel-Beck-Weg 4, 99097 Erfurt
ARCHITEKT MAURICE FIEDLER, Erfurt
-
Einfamilienhaus am Hang Erfurt
Erfurt
Roter Stein, 17, 99097 Erfurt OT Melchendorf
ARCHITEKT MAURICE FIEDLER, Erfurt
-
Schule Erfurt-Stotternheim
Erfurt
Gau-Algesheimer Straße, 2, 99095 Erfurt OT Stotternheim
ARCHITEKT MAURICE FIEDLER, Erfurt
-
Sanierung Doppelhaushälfte Erfurt
Erfurt
Kantstrasse 35, 99096 Erfurt
ARCHITEKT MAURICE FIEDLER, Erfurt
-
KEA Voliere im Thüringer Zoopark Erfurt
Erfurt
Am Zoopark 1, 99087 Erfurt
ARCHITEKT MAURICE FIEDLER, Erfurt
-
Einfamilienhaus Bernau
Bernau
Giselherstrasse, 23, 16321 Bernau OT Nibelungen
ARCHITEKT MAURICE FIEDLER, Erfurt
-
Bungalowanlage auf dem Possen
Sondershausen
Possen 1, 99706 Sondershausen
ARCHITEKT MAURICE FIEDLER, Erfurt
-
Ausbau einer Scheune zum Wohnhaus in Tüttleben
Tüttleben
Grabsleber Weg , 99869 Tüttleben
ARCHITEKT MAURICE FIEDLER, Erfurt
-
Erweiterung und Dachgeschossausbau Einfamilienhaus in Kornhochheim
Nesse-Apfelstädt
Im Schlufter, 5, 99192 Nesse-Apfelstädt
ARCHITEKT MAURICE FIEDLER, Erfurt
-
Sanierung Pavillon am Berliner Platz in Erfurt
Erfurt
Berliner Platz, 99091 Erfurt
ARCHITEKT MAURICE FIEDLER, Erfurt
-
5* Hotel The Westin Grand Berlin
Berlin
Friedrichstraße 158-164, 10117 Berlin Berlin
ARCHITEKT MAURICE FIEDLER, Erfurt
Letzte Aktualisierung dieser Seite am: 01.11.2017. Alle Angaben auf dieser Seite werden durch das Büro ARCHITEKT MAURICE FIEDLER, Erfurt auf freiwilliger Basis verwaltet. Das Büro ist für den Inhalt dieser Seite selbst verantwortlich. Die Angaben werden von der Architektenkammer Thüringen nicht geprüft.