Multitalent Ossietzky Hof · Nordhausen
15 Projektbilder
-
Luftbild, Bild: Thomas Müller -
OSSIETZKY HOF Luftbild, Bild: Thomas Müller -
LUDWIG Nordfassade, Bild: Thomas Müller -
LUDWIG Westfassade, Bild: Thomas Müller -
LUDWIG Südfassade, Bild: Thomas Müller -
LUDWIG Südfassade, Bild: Thomas Müller -
LUDWIG Balkondetail, Bild: Thomas Müller -
LUDWIG Balkondetail, Bild: Thomas Müller -
LUDWIG Balkondetail, Bild: Thomas Müller -
SOPHIA Balkondetail, Bild: Thomas Müller -
SOPHIA Balkondetail, Bild: Thomas Müller -
SOPHIA barrierereduzierte Badzelle, Bild: Thomas Müller -
OSSIETZKY HOF Freianlagen, Bild: Susanne Schedwill -
OSSIETZKY HOF Freianlagen, Bild: Susanne Schedwill -
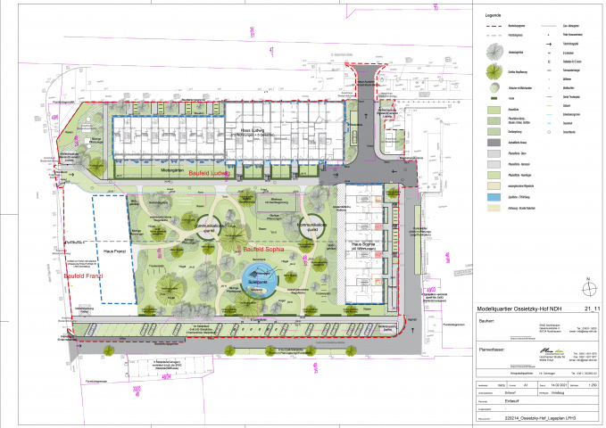
Freianlagenplan, Bild: plandrei Landschaftsarchitektur GmbH
Projektbeschreibung
Der Ossietzky-Hof der SWG Nordhausen wird zum Multitalent
Mit dem Ossietzky-Hof leistet die Städtische Wohnungsbaugesellschaft (SWG) im thüringischen Nordhausen Pionierarbeit im Rahmen der Internationalen Bauausstellung. In dem beliebten Wohnquartier zeigt das kommunale Unternehmen, wie ein teilsanierter DDR-Plattenbaustandort klimagerecht umgebaut werden kann und die Mieter davon profitieren: Neben dem höheren Wohnwert, beispielsweise durch wohnungsbreite und teilweise verglaste Balkone, Aufzüge, wenige Barrieren und einem grünen Wohnhof mit Spiel- und Ruhezonen, sind es vor allem die niedrigeren Nebenkosten.
Das Sanierungskonzept formulierte unterschiedliche Ansätze für den Umbau der zwei Platten des Typs WBS 70 zu neuen Identitäten „Ludwig“ und „Sophia“. „Ludwig” wurde energetisch auf KfW-Standard 100 saniert, „Sophia” sogar auf KfW-Standard 85. Parallel zur Sanierung musste das dritte Hofgebäude, ein leeres Schwesternwohnheim in Großblockbauweise, abgerissen werden. An seiner Stelle soll ab 2025 mit „Franzi“ ein nachhaltiger Ersatzneubau in serieller Bauweise entstehen.
Das Besondere an dem Wohnhof ist das gebäudeübergreifende Energiekonzept: Bis zu 44 Prozent der benötigten Energie für Heizung und Warmwasser sollen im Quartier erzeugt werden. Mit der Energie aus der Abluft der Bäder von „Ludwig“ und „Sophia“, die bisher verloren ging, wird über eine Wärmepumpe der gesamte Warmwasserbedarf aufbereitet. Dadurch wird Fernwärme bei „Ludwig“ nur noch in der Heizperiode und bei „Sophia“ nur noch zu Spitzenzeiten im Winter benötigt. Hier übernimmt eine Luftwärmepumpe, die die Fußbodenheizung in den 40 Wohnungen versorgt, die Wärmeversorgung.
Die drei Gebäude erhalten jeweils eine leistungsstarke Photovoltaikanlage, deren Strom für die technischen Hausanlagen sowie Ladestationen für Autos und Fahrräder genutzt wird. Damit sinken die Energiekosten für alle unter den Preis für fossile Energie.
Die gewonnene Energie fließt also nicht ins Netz, sondern wird im Quartier verbraucht. Das macht die Mieter unabhängiger vom Energiemarkt und spart langfristig bis zu 50 Prozent der Kosten für Fernwärme und Strom. Bereits mit der Fertigstellung von „Sophia” im Sommer 2024 kommt die SWG im Quartier den bundesweiten Klimaschutzzielen für 2045 sehr nahe.
Energiekonzept: eZeit Ingenieure GmbH, Berlin
Projektdaten
Adresse
Dr.-Robert-Koch-Straße 4–18, Carl-von-Ossietzky-Straße 3–6
99734 Nordhausen
Planungsbüros
ARCHITEKT MAURICE FIEDLER, Erfurt
plandrei Landschaftsarchitektur GmbH, Erfurt
Hütten & Paläste, Berlin
ZRS Architekten Ingenieure, Berlin
Bauherr
Städtische Wohnungsbaugesellschaft mbH
Fertigstellung
Januar 2025
An dieser Stelle wird eine Google-Maps-Karte angezeigt, wenn Sie das Speichern der entsprechenden Cookies erlaubt haben. Dies können Sie über die Privatsphäre-Einstellungen jederzeit tun.
Zugeordnete Schlagworte und Sammlungen
Weitere Projekte des gleichen Büros (19)
-
Wettbewerb „Haus der Generationen“
Erfurt
Erfurt
ARCHITEKT MAURICE FIEDLER, Erfurt
Architekt Stephan Sittig, Jena -
Umnutzung eines denkmalgeschützten ehemaligen Großhandelskontors in Erfurt
Erfurt
Hugo-John-Strasse, 8, 99086 Erfurt
ARCHITEKT MAURICE FIEDLER, Erfurt
-
Generalsanierung Kindertagesstätte „Fuchs und Elster“ Erfurt
Erfurt
Eislebener Str. 8, 99086 Erfurt OT Johannesplatz
ARCHITEKT MAURICE FIEDLER, Erfurt
-
Denkmalgerechte Revitalisierung Rittergut „Alter Hof“ Neudietendorf
Neudietendorf
Zinzendorfstraße, 99192 Neudietendorf
ARCHITEKT MAURICE FIEDLER, Erfurt
Carsten Eichholz architektur + energie, Erfurt -
Creative-Lounge der AOK PLUS
Erfurt
Augustinerstraße 38, 99084 Erfurt
ARCHITEKT MAURICE FIEDLER, Erfurt
-
Umbau einer Geschäftsstelle der AOK PLUS
Erfurt
Samuel-Beck-Weg 4, 99097 Erfurt
ARCHITEKT MAURICE FIEDLER, Erfurt
-
Einfamilienhaus am Hang Erfurt
Erfurt
Roter Stein, 17, 99097 Erfurt OT Melchendorf
ARCHITEKT MAURICE FIEDLER, Erfurt
-
Einfamilienhaus Gehlenberg
Friesoythe
26169 Friesoythe OT Gehlenberg
ARCHITEKT MAURICE FIEDLER, Erfurt
-
Schule Erfurt-Stotternheim
Erfurt
Gau-Algesheimer Straße, 2, 99095 Erfurt OT Stotternheim
ARCHITEKT MAURICE FIEDLER, Erfurt
-
Sanierung Doppelhaushälfte Erfurt
Erfurt
Kantstrasse 35, 99096 Erfurt
ARCHITEKT MAURICE FIEDLER, Erfurt
-
KEA Voliere im Thüringer Zoopark Erfurt
Erfurt
Am Zoopark 1, 99087 Erfurt
ARCHITEKT MAURICE FIEDLER, Erfurt
-
Einfamilienhaus Bernau
Bernau
Giselherstrasse, 23, 16321 Bernau OT Nibelungen
ARCHITEKT MAURICE FIEDLER, Erfurt
-
Bungalowanlage auf dem Possen
Sondershausen
Possen 1, 99706 Sondershausen
ARCHITEKT MAURICE FIEDLER, Erfurt
-
Ausbau einer Scheune zum Wohnhaus in Tüttleben
Tüttleben
Grabsleber Weg , 99869 Tüttleben
ARCHITEKT MAURICE FIEDLER, Erfurt
-
Erweiterung und Dachgeschossausbau Einfamilienhaus in Kornhochheim
Nesse-Apfelstädt
Im Schlufter, 5, 99192 Nesse-Apfelstädt
ARCHITEKT MAURICE FIEDLER, Erfurt
-
Sanierung Pavillon am Berliner Platz in Erfurt
Erfurt
Berliner Platz, 99091 Erfurt
ARCHITEKT MAURICE FIEDLER, Erfurt
-
5* Hotel The Westin Grand Berlin
Berlin
Friedrichstraße 158-164, 10117 Berlin Berlin
ARCHITEKT MAURICE FIEDLER, Erfurt
Letzte Aktualisierung dieser Seite am: 06.08.2025. Alle Angaben auf dieser Seite werden durch das Büro ARCHITEKT MAURICE FIEDLER, Erfurt auf freiwilliger Basis verwaltet. Das Büro ist für den Inhalt dieser Seite selbst verantwortlich. Die Angaben werden von der Architektenkammer Thüringen nicht geprüft.