Einfamilienhaus mit Versatz · Weimar
6 Projektbilder
Projektbeschreibung
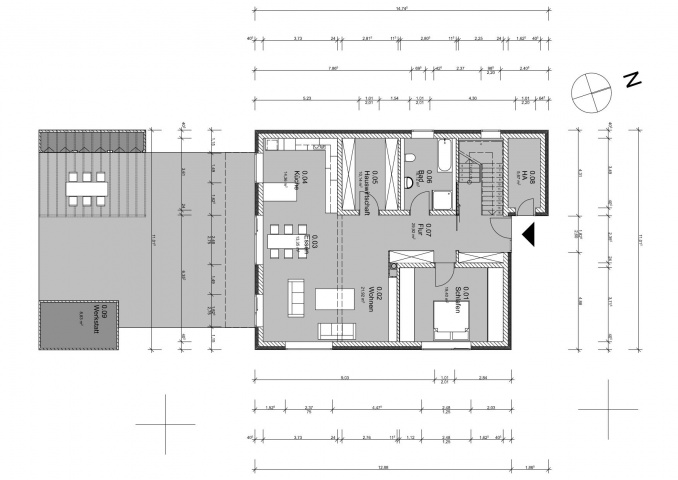
Eine Familie mit vier Personen und einer Katze wünschte sich ein eigenes Haus in Weimar. Auf dem existierenden Grundstück der Mutter wurde ein zweites Haus geplant. Das Gebäude besitzt ein offenes und großzügig angelegtes Erdgeschoss mit Wohnraum, Küche, Schlafzimmer und Bad. Über dem Erdgeschoss befindet sich ein Staffelgeschoss, welches zum Garten verschoben wurde, so dass hier eine Auskragung entstand. Das Gebäude ist ein Massivbau mit zusätzlicher Wärmedämmfassade und modernster Haustechnik.
Projektdaten
Adresse
Schwanseestraße 123a
99427 Weimar
Planungsbüro
Architekturbüro Weingart, Erfurt
Bauherr
privat
Fertigstellung
Juni 2017
Nutzfläche
220 m2
Preise/Auszeichnungen
super
An dieser Stelle wird eine Google-Maps-Karte angezeigt, wenn Sie das Speichern der entsprechenden Cookies erlaubt haben. Dies können Sie über die Privatsphäre-Einstellungen jederzeit tun.
Zugeordnete Schlagworte und Sammlungen
Weitere Projekte des gleichen Büros (14)
-
Hochschule für Musik Franz Liszt Weimar
Weimar
Platz der Demokratie 2, 99423 Weimar
Architekturbüro Weingart, Erfurt
-
Optiker Zacher
Erfurt
Lange Brücke 65, 99084 Erfurt
Architekturbüro Weingart, Erfurt
Architekturbüro Dr. Spindler, Erfurt -
Wohnraumerweiterung Gräfinau-Angstedt
Wolfsberg
Singerstraße 9, 98704 Wolfsberg OT Gräfinau-Angstedt
Architekturbüro Weingart, Erfurt
-
Realisierungswettbewerb Neubau Bürger- und Verwaltungszentrum in Trusetal
Trusetal
Liebensteiner Straße, 98596 Trusetal
Architekturbüro Weingart, Erfurt
-
Ideen- und Realisierungswettbewerb Marktquartierbebauung Stadtroda
Stadtroda
Markt / Herrenstraße, 07646 Stadtroda
Architekturbüro Weingart, Erfurt
-
Sanierung und Umnutzung des Prellerhauses
Ilmenau
Wenzelsberg 1, 98693 Ilmenau
Architekturbüro Weingart, Erfurt
-
Niedrigenergiehaus im Universitätsgarten
Erfurt
Justus Jonas Straße 6, 99092 Erfurt
Architekturbüro Weingart, Erfurt
-
Druckereimuseum und Schaudepot der Museen der Stadt Erfurt im Benary-Speicher des Sparkassen-Finanzzentrums
Erfurt
Brühler Straße 37, 99084 Erfurt
Architekturbüro Weingart, Erfurt
-
Sanierung "Haus zum Roten Turm"
Erfurt
Krämerbrücke 17, 99084 Erfurt
Architekturbüro Weingart, Erfurt
-
Realisierungswettbewerb "Wiederaufbau der historischen Bibliothek und der Waidhäuser" im Augustinerkloster zu Erfurt
Erfurt
Augustinerstraße, 99084 Erfurt
Architekturbüro Weingart, Erfurt
-
Architektonischer Realisierungswettbewerb TU Ilmenau - Neubau für die Fakultät Informatik und Automatisierung
Ilmenau
Hans Stamm Campus, oberer Ehrenberg, Ilmenau
Architekturbüro Weingart, Erfurt
Letzte Aktualisierung dieser Seite am: 31.01.2020. Alle Angaben auf dieser Seite werden durch das Büro Architekturbüro Weingart, Erfurt auf freiwilliger Basis verwaltet. Das Büro ist für den Inhalt dieser Seite selbst verantwortlich. Die Angaben werden von der Architektenkammer Thüringen nicht geprüft.