Feuerwehrgerätehaus Weida
9 Projektbilder
-
Ansicht, Bild: Miroslav Gigov -
Umkleide, Bild: Miroslav Gigov -
Funkzentrale, Bild: Miroslav Gigov -
Gesamtansicht, Bild: Miroslav Gigov -
Hofansicht, Bild: Miroslav Gigov -
Ansicht Süd, Bild: Miroslav Gigov -
Ansicht Hof 2, Bild: Miroslav Gigov -
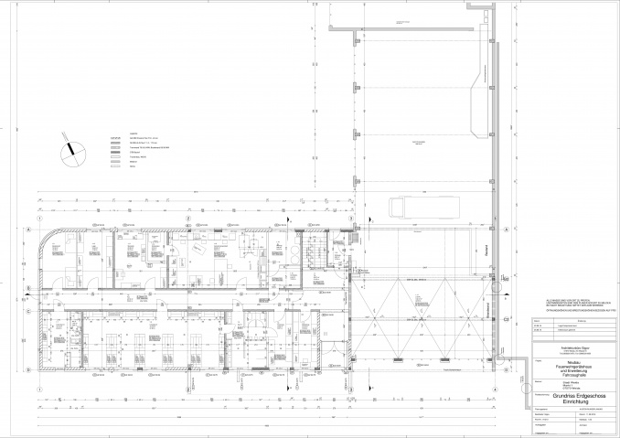
Grundriss Erdgeschoss, Bild: Miroslav Gigov -
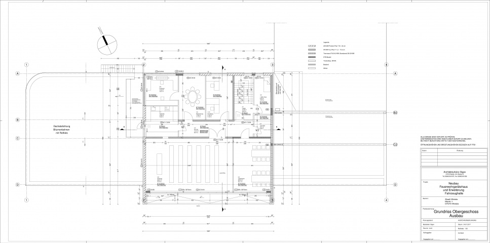
Obergeschoss, Bild: Miroslav Gigov
Projektbeschreibung
Der Neubau der Feuerwehr in Weida entstand an der Stelle des baufälligen Feuerwehrgerätehauses und wurde nach den Anforderungen der neuen DIN 14092 geplant. Im EG befinden die Umkleide-und Sanitärräume, Bereitschaftsraum, Bekleidungskammer, Trocknungsraum, Technikräume, sowie Werkstätten und Lager. Im OG befinden sich der Raum zur Lagebesprechung und die Funkzentrale, sowie Büro, Küche, Jugendraum und Seminarraum. Die bestehende Fahrzeughalle wurde erweitert. Die Lösung 2 neue und einen bestehenden Stellplatz mit Ausfahrt zur Straße auszurichten bestimmte das Konzept. Neben der modernen Ausstattung wurde auch energiesparende Haustechnik eingesetzt: Solarthermie, Lüftung mit Wärmerückgewinnung, Photovoltaik-Anlage, sowie Regenwassernutzung für die Schlauchwäsche.
Projektdaten
Adresse
Karl-Marx-Straße 13
07570 Weida
Planungsbüro
Architekturbüro Miroslav Gigov, Weida
Bauherr
Stadt Weida
Fertigstellung
November 2017
Nutzfläche
700 m2
An dieser Stelle wird eine Google-Maps-Karte angezeigt, wenn Sie das Speichern der entsprechenden Cookies erlaubt haben. Dies können Sie über die Privatsphäre-Einstellungen jederzeit tun.
Zugeordnete Schlagworte und Sammlungen
Weitere Projekte des gleichen Büros (12)
-
Rohbausanierung Fachwerkhaus, Markt 9
Weida
Markt 9, 07570 Weida
Architekturbüro Miroslav Gigov, Weida
-
Sanierung MFH 6 WE + 1 Gewerbeeinheit, Am Wasser 6
Weida
Am Wasser 6, 07570 Weida
Architekturbüro Miroslav Gigov, Weida
-
Mehrfamilienhaus 2, Leipzig
Leipzig
Bielastrasse 9, 04178 Leipzig OT Böhlitz-Ehrenberg
Architekturbüro Miroslav Gigov, Weida
-
Mehrfamilienhaus 1, Leipzig
Leipzig
Bielastr. 11, 04178 Leipzig OT Böhlitz-Ehrenberg
Architekturbüro Miroslav Gigov, Weida
-
Umbau und Sanierung Mehrfamilienhaus Platz der Freiheit
Weida
Platz der Freiheit 10 +11, 07570 Weida
Architekturbüro Miroslav Gigov, Weida
-
Einfamilienhaus HAUS 1, Gera
Gera
Leumnitzer Str. 46, 07546 Gera
Architekturbüro Miroslav Gigov, Weida
-
Modernisierung MFH Kirchplatz 1/2
Weida
Kirchlatz 1/2, 07570 Weida
Architekturbüro Miroslav Gigov, Weida
-
Letzte Aktualisierung dieser Seite am: 07.03.2019. Alle Angaben auf dieser Seite werden durch das Büro Architekturbüro Miroslav Gigov, Weida auf freiwilliger Basis verwaltet. Das Büro ist für den Inhalt dieser Seite selbst verantwortlich. Die Angaben werden von der Architektenkammer Thüringen nicht geprüft.