Gärtners Anbau · Gera
Architekturstudio Mitte Freier Architekt Thomas Laubert, Gera
7 Projektbilder
Projektbeschreibung
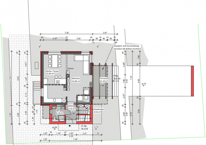
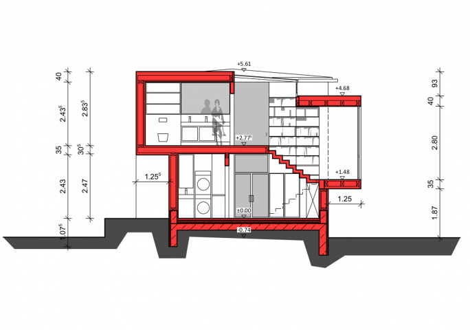
An Geras Südhang gelegen - präsentiert sich eingebettet in Streuobstwiesen das einst nach neuestem Bauhausprinzip errichtete Zweifamilienhaus. Der Raum eng und mit sparsamen Mitteln gebaut, war es das erste Haus am Ort. Nach einer energetischen Sanierung im Jahr 2022 zeigt es nun stolz seine neuste Errungenschaft. Als Tausch für Windfang und Badanbau - begrüßt nun ein extovertiertes, skulpturales Holzgebäude den Betrachter - welches Erschließung, WC, Bad und Foyer vereint. Die Wohnfunktionen befinden sich im Bestandshaus. Beide Gebäudeteile sind eigenständig, wirken aneinandergeschmiegt. Materialien Holz und Putz bilden Kontraste, lassen nachvollziehen. Im Holzbau gewähren definierte Ausblicke Einblicke. Besondere Momente - mit jedem Treppengang. Auch das Bad bietet ein Erleben wandloser Freiheiten...Ach, mehr Raum...muss es nicht sein.
Projektdaten
Adresse
An der Wendeltreppe 6
07546 Gera
Planungsbüro
Architekturstudio Mitte Freier Architekt Thomas Laubert, Gera
Bauherr
privat
Fertigstellung
Februar 2023
An dieser Stelle wird eine Google-Maps-Karte angezeigt, wenn Sie das Speichern der entsprechenden Cookies erlaubt haben. Dies können Sie über die Privatsphäre-Einstellungen jederzeit tun.
Zugeordnete Schlagworte und Sammlungen
Weitere Projekte des gleichen Büros (10)
-
Hofkammergebäude Schloss Osterstein Gera
Gera
Schloss Osterstein Nr. 5, 07546 Gera
Architekturstudio Mitte Freier Architekt Thomas Laubert, Gera
Tag der Architektur 2026
Samstag, 27.06.2026 – geöffnet 13:00-15:00, Führungen 13:00, 14:00, 15:00 (Treffpunkt: Innenhof unterer Schlosshof), Parken nicht im Schlossareal möglich - bitte öffentliche Parkplätze Hofwiesenparkplatz nutzen
-
Lavendelhof Pohlitz
Bad Köstritz
Dorfstraße 13, 07586 Bad Köstritz OT Pohlitz
Architekturstudio Mitte Freier Architekt Thomas Laubert, Gera
-
Mehrgenerationenwohnen
Gera
Eschenweg 2, 07545 Gera
Architekturstudio Mitte Freier Architekt Thomas Laubert, Gera
-
Einzeldenkmal Wohn- u. Geschäftshaus
Gera
Clara Zetkin Straße 20, 07545 Gera
Architekturstudio Mitte Freier Architekt Thomas Laubert, Gera
-
Kulturzentrum Häselburg
Gera
Florian-Geyer-Straße 17, 07545 Gera
Architekturstudio Mitte Freier Architekt Thomas Laubert, Gera
-
High Vision Gera, Markt 2
Gera
Markt 2, 07545 Gera
Architekturstudio Mitte Freier Architekt Thomas Laubert, Gera
-
Paitzdorf 63
Paitzdorf
Paitzdorf 63, 07580 Paitzdorf
Architekturstudio Mitte Freier Architekt Thomas Laubert, Gera
-
Wohnen am Sommerbad
Gera
Am Sommerbad 26-28, 07545 Gera
Architekturstudio Mitte Freier Architekt Thomas Laubert, Gera
-
Sanierung Wohnhaus Gries 7
Gera
Gries 7, 07548 Gera OT Gera-Untermhaus
Architekturstudio Mitte Freier Architekt Thomas Laubert, Gera
-
Restaurant „Comma“
Gera
Heinrichstraße 47, 07545 Gera
Architekturstudio Mitte Freier Architekt Thomas Laubert, Gera
Letzte Aktualisierung dieser Seite am: 25.05.2023. Alle Angaben auf dieser Seite werden durch das Büro Architekturstudio Mitte Freier Architekt Thomas Laubert, Gera auf freiwilliger Basis verwaltet. Das Büro ist für den Inhalt dieser Seite selbst verantwortlich. Die Angaben werden von der Architektenkammer Thüringen nicht geprüft.