Sanierung Wohnhaus Gries 7 · Gera
Architekturstudio Mitte Freier Architekt Thomas Laubert, Gera
6 Projektbilder
Projektbeschreibung
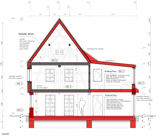
Zwei Familien - ein Haus. 316 Jahre alt, schlechte Bausubstanz, mehrfach ergänzter Hauptkörper, auf gotischen Gewändesteinen gebaut und mit Porzellan angeschüttet. Ein historischer Ort welcher erhalten werden wollte, aber die Sprache unserer Zeit spricht. Mit gerechneten Fundamenten, intaktem Holz, einer guten Energiebilanz, behaglichem Wohnklima, autentischen Materialien, guter Gestaltung und vor allem: guten Grundrissen. So präsentiert es sich nach zweijähriger Bauzeit nicht nur den Bewohnern - sondern auch den Besuchern. Die wie zufällig im Schutze der prominenten Nachbarn auf den letzen Teil des fast vergessenen Rundlingsdorfes Untermhaus stoßen und nun sich über ein Anwesen "unterm Haus" als zeitgemäßem Mix aus Vergangenem und Modernen freuen können.
Projektdaten
Adresse
Gries 7
07548 Gera OT Gera-Untermhaus
Planungsbüro
Architekturstudio Mitte Freier Architekt Thomas Laubert, Gera
Bauherr
Ilka und Kay Zimmermann; Nadine Beyer
Fertigstellung
Januar 2019
Nutzfläche
250 m2
An dieser Stelle wird eine Google-Maps-Karte angezeigt, wenn Sie das Speichern der entsprechenden Cookies erlaubt haben. Dies können Sie über die Privatsphäre-Einstellungen jederzeit tun.
Zugeordnete Schlagworte und Sammlungen
Weitere Projekte des gleichen Büros (10)
-
Hofkammergebäude Schloss Osterstein Gera
Gera
Schloss Osterstein Nr. 5, 07546 Gera
Architekturstudio Mitte Freier Architekt Thomas Laubert, Gera
Tag der Architektur 2026
Samstag, 27.06.2026 – geöffnet 13:00-15:00, Führungen 13:00, 14:00, 15:00 (Treffpunkt: Innenhof unterer Schlosshof), Parken nicht im Schlossareal möglich - bitte öffentliche Parkplätze Hofwiesenparkplatz nutzen
-
Lavendelhof Pohlitz
Bad Köstritz
Dorfstraße 13, 07586 Bad Köstritz OT Pohlitz
Architekturstudio Mitte Freier Architekt Thomas Laubert, Gera
-
Mehrgenerationenwohnen
Gera
Eschenweg 2, 07545 Gera
Architekturstudio Mitte Freier Architekt Thomas Laubert, Gera
-
Einzeldenkmal Wohn- u. Geschäftshaus
Gera
Clara Zetkin Straße 20, 07545 Gera
Architekturstudio Mitte Freier Architekt Thomas Laubert, Gera
-
Gärtners Anbau
Gera
An der Wendeltreppe 6, 07546 Gera
Architekturstudio Mitte Freier Architekt Thomas Laubert, Gera
-
Kulturzentrum Häselburg
Gera
Florian-Geyer-Straße 17, 07545 Gera
Architekturstudio Mitte Freier Architekt Thomas Laubert, Gera
-
High Vision Gera, Markt 2
Gera
Markt 2, 07545 Gera
Architekturstudio Mitte Freier Architekt Thomas Laubert, Gera
-
Paitzdorf 63
Paitzdorf
Paitzdorf 63, 07580 Paitzdorf
Architekturstudio Mitte Freier Architekt Thomas Laubert, Gera
-
Wohnen am Sommerbad
Gera
Am Sommerbad 26-28, 07545 Gera
Architekturstudio Mitte Freier Architekt Thomas Laubert, Gera
-
Restaurant „Comma“
Gera
Heinrichstraße 47, 07545 Gera
Architekturstudio Mitte Freier Architekt Thomas Laubert, Gera
Letzte Aktualisierung dieser Seite am: 24.04.2019. Alle Angaben auf dieser Seite werden durch das Büro Architekturstudio Mitte Freier Architekt Thomas Laubert, Gera auf freiwilliger Basis verwaltet. Das Büro ist für den Inhalt dieser Seite selbst verantwortlich. Die Angaben werden von der Architektenkammer Thüringen nicht geprüft.