Wohnen am Sommerbad · Gera
Architekturstudio Mitte Freier Architekt Thomas Laubert, Gera
6 Projektbilder
Projektbeschreibung
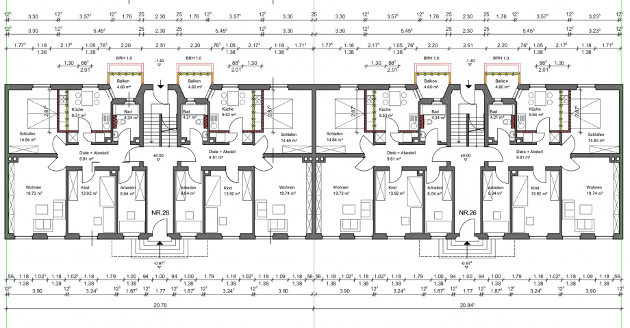
Sensibler Eingriff - großer Nutzen. Gewollt unverändert präsentiert sich das äußere Erscheinungsbild nach der Sanierung und fügt sich damit in das Gesamtensemble aus insgesamt sieben Mehrfamilienhäusern ein. Die in den 1920er Jahren errichtete und unter Denkmalschutz stehende Anlage weist einheitliche Gestaltungsmerkmale auf, welche bei der Umsetzung beachtet und abgestimmt wurden. So präsentiert sich der notwendige Balkonersatzneubau in Stahlbauweise als moderne Interpretation und nimmt dessen historische Formensprache auf. Auch der Treppenraum überrascht mit seiner Farbgebung, beeinflusst von der bauzeitlichen Raumfassung. Geringe Eingriffe mit geziehlter Grundrisskorrektur schufen zeitgemäßen Wohnraum. Technisch, energetisch ertüchtigt und Ressourcenschonend ausgeführt zeigen die Objekte ein gelungenes Beispiel für das Bauen im Bestand auf. Zudem beschäftigt sich das Projekt mit der Frage: Was muss tatsächlich erneuert, ausgebaut und ersetzt werden? Was hat noch eine Restnutzdauer und welche Dinge kann man erhalten? Eine Aufgabenstellung, welche derzeit aktueller den je ist und sich für unsere künftigen Planungsaufgaben im Bereich von der Sanierung historischer Bausubstanz noch verstärkt in den Focus rücken wird.
Projektdaten
Adresse
Am Sommerbad 26-28
07545 Gera
Planungsbüro
Architekturstudio Mitte Freier Architekt Thomas Laubert, Gera
Bauherr
WBG Glück Auf Gera e.G
Fertigstellung
September 2021
An dieser Stelle wird eine Google-Maps-Karte angezeigt, wenn Sie das Speichern der entsprechenden Cookies erlaubt haben. Dies können Sie über die Privatsphäre-Einstellungen jederzeit tun.
Zugeordnete Schlagworte und Sammlungen
Weitere Projekte des gleichen Büros (10)
-
Hofkammergebäude Schloss Osterstein Gera
Gera
Schloss Osterstein Nr. 5, 07546 Gera
Architekturstudio Mitte Freier Architekt Thomas Laubert, Gera
Tag der Architektur 2026
Samstag, 27.06.2026 – geöffnet 13:00-15:00, Führungen 13:00, 14:00, 15:00 (Treffpunkt: Innenhof unterer Schlosshof), Parken nicht im Schlossareal möglich - bitte öffentliche Parkplätze Hofwiesenparkplatz nutzen
-
Lavendelhof Pohlitz
Bad Köstritz
Dorfstraße 13, 07586 Bad Köstritz OT Pohlitz
Architekturstudio Mitte Freier Architekt Thomas Laubert, Gera
-
Mehrgenerationenwohnen
Gera
Eschenweg 2, 07545 Gera
Architekturstudio Mitte Freier Architekt Thomas Laubert, Gera
-
Einzeldenkmal Wohn- u. Geschäftshaus
Gera
Clara Zetkin Straße 20, 07545 Gera
Architekturstudio Mitte Freier Architekt Thomas Laubert, Gera
-
Gärtners Anbau
Gera
An der Wendeltreppe 6, 07546 Gera
Architekturstudio Mitte Freier Architekt Thomas Laubert, Gera
-
Kulturzentrum Häselburg
Gera
Florian-Geyer-Straße 17, 07545 Gera
Architekturstudio Mitte Freier Architekt Thomas Laubert, Gera
-
High Vision Gera, Markt 2
Gera
Markt 2, 07545 Gera
Architekturstudio Mitte Freier Architekt Thomas Laubert, Gera
-
Paitzdorf 63
Paitzdorf
Paitzdorf 63, 07580 Paitzdorf
Architekturstudio Mitte Freier Architekt Thomas Laubert, Gera
-
Sanierung Wohnhaus Gries 7
Gera
Gries 7, 07548 Gera OT Gera-Untermhaus
Architekturstudio Mitte Freier Architekt Thomas Laubert, Gera
-
Restaurant „Comma“
Gera
Heinrichstraße 47, 07545 Gera
Architekturstudio Mitte Freier Architekt Thomas Laubert, Gera
Letzte Aktualisierung dieser Seite am: 16.05.2022. Alle Angaben auf dieser Seite werden durch das Büro Architekturstudio Mitte Freier Architekt Thomas Laubert, Gera auf freiwilliger Basis verwaltet. Das Büro ist für den Inhalt dieser Seite selbst verantwortlich. Die Angaben werden von der Architektenkammer Thüringen nicht geprüft.