Innenraumgestaltung KosmetikZentrum · Erfurt
Architektur – Farbdesign Dipl.-Ing. (FH) Dana Stiborski, Erfurt
5 Projektbilder
Projektbeschreibung
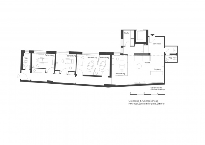
Das KosmetikZentrum befindet sich im ersten Obergeschoss eines Geschäftshauses in zentraler Innenstadtlage, neben dem Haus Dacheröden.
Ein barrierefreier Zugang ist gegeben.
Mit der bewussten Entscheidung der Nutzerin, ihren KundInnen eine nachhaltige kosmetische Behandlung unter Verwendung einer schadstofffreien und auf Inhaltsstoffen geprüften Medical Beauty Marke anzubieten, erfolgte ebenso eine Neugestaltung der Räumlichkeiten.
Ein auf alle Funktionsbereiche abgestimmtes Farb- und Materialkonzept sowie Lichtplanung schaffen eine Atmosphäre zum Wohlfühlen und Entspannen.
Diese wird durch den Einsatz von unbehandelten nachhaltigen Naturmaterialien mit ursprünglicher Haptik und Farbe sowie mit natürlichen Düften unterstützt.
Projektdaten
Adresse
Anger 36
99084 Erfurt
Planungsbüro
Architektur – Farbdesign Dipl.-Ing. (FH) Dana Stiborski, Erfurt
Bauherr
KosmetikZentrum Angela Zimmer
Fertigstellung
Dezember 2018
Nutzfläche
100 m2
An dieser Stelle wird eine Google-Maps-Karte angezeigt, wenn Sie das Speichern der entsprechenden Cookies erlaubt haben. Dies können Sie über die Privatsphäre-Einstellungen jederzeit tun.
Zugeordnete Schlagworte und Sammlungen
Weitere Projekte des gleichen Büros (2)
-
Herstellung/Optimierung der räumlichen und visuellen Barrierefreiheit in der KVHS Hermsdorf
Hermsdorf
Schulstraße 30, 07629 Hermsdorf
Architektur – Farbdesign Dipl.-Ing. (FH) Dana Stiborski, Erfurt
-
Johanniterhaus Wittenberg I Herberge und Tagungshaus
Wittenberg
Lutherstraße 35, 06886 Wittenberg
Architektur – Farbdesign Dipl.-Ing. (FH) Dana Stiborski, Erfurt
Architekturbüro für Industrie- und Hochbau CML, Weimar
Letzte Aktualisierung dieser Seite am: 24.06.2019. Alle Angaben auf dieser Seite werden durch das Büro Architektur – Farbdesign Dipl.-Ing. (FH) Dana Stiborski, Erfurt auf freiwilliger Basis verwaltet. Das Büro ist für den Inhalt dieser Seite selbst verantwortlich. Die Angaben werden von der Architektenkammer Thüringen nicht geprüft.