Neubau Kindertagesstätte Isseroda
8 Projektbilder
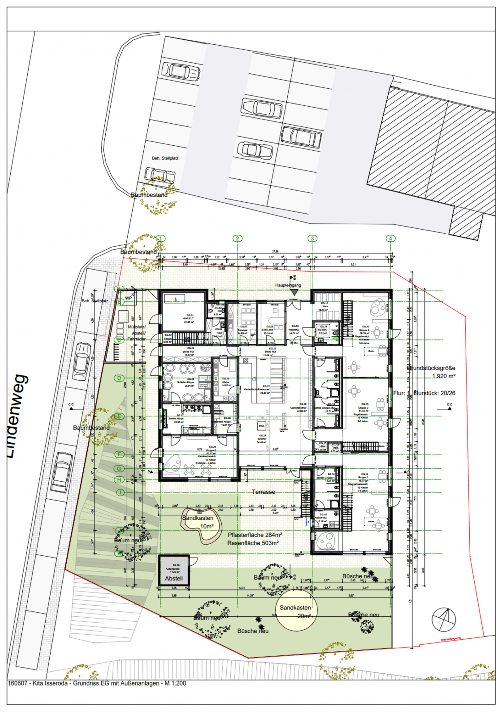
Projektbeschreibung
Auf einem Teil des unter Denkmalschutz stehenden ehem. Wirtschaftshofes des Rittergutes in Isseroda entstand der Ersatzneubau für die örtliche Kindertagesstätte, ein moderner Neubau, der auf 450 m2 Platz für insgesamt 55 Kinder bietet.
Im Inneren sind vier Gruppenräume um den „Marktplatz“ mit dem Kinderrestaurant angeordnet, der mit seiner sich in den Garten öffnenden Fassade viel Licht und Raum für das gemeinsame Spielen der Kinder, aber auch für die Kommunikation zwischen Eltern und Betreuern bietet.
Schlafgalerien trennen Ruhe vom Trubel. Waschräume für jede Gruppe sorgen für Struktur und Sicherheit der Kinder im täglichen Tagesablauf.
Die Außenanlagen beziehen den ehemaligen und trockengelegten „Burggraben“ mit ein, der in seiner Natürlichkeit ein idealer Abenteuerspielplatz ist.
Projektdaten
Adresse
Lindenweg 7
99428 Isseroda
Planungsbüro
Bauherr
Sozentriss Isseroda GmbH
Fertigstellung
November 2017
Nutzfläche
865 m2
An dieser Stelle wird eine Google-Maps-Karte angezeigt, wenn Sie das Speichern der entsprechenden Cookies erlaubt haben. Dies können Sie über die Privatsphäre-Einstellungen jederzeit tun.
Zugeordnete Schlagworte und Sammlungen
Weitere Projekte des gleichen Büros (6)
-
-
-
Quartiersentwicklung | Wohnen & Pflegen | Pößneck
Pößneck
Breite Straße 21-27; Brauhausgasse, 07381 Pößneck
Letzte Aktualisierung dieser Seite am: 07.03.2019. Alle Angaben auf dieser Seite werden durch das Büro igb AG, Weimar auf freiwilliger Basis verwaltet. Das Büro ist für den Inhalt dieser Seite selbst verantwortlich. Die Angaben werden von der Architektenkammer Thüringen nicht geprüft.