Neubau Sportfunktionsgebäude und Bürgerzentrum am Sportplatz Windischholzhausen · Erfurt
11 Projektbilder
-
SFG Windischholzhausen, Bild: Stephan Genge -
SFG Windischholzhausen, Bild: Stephan Genge -
SFG Windischholzhausen, Bild: Stephan Genge -
SFG Windischholzhausen, Bild: Stephan Genge -
SFG Windischholzhausen, Bild: Stephan Genge -
SFG Windischholzhausen, Bild: Stephan Genge -
SFG Windischholzhausen, Bild: Stephan Genge -
SFG Windischholzhausen, Bild: Stephan Genge -
WHH Ansicht West, Bild: Stephan Genge -
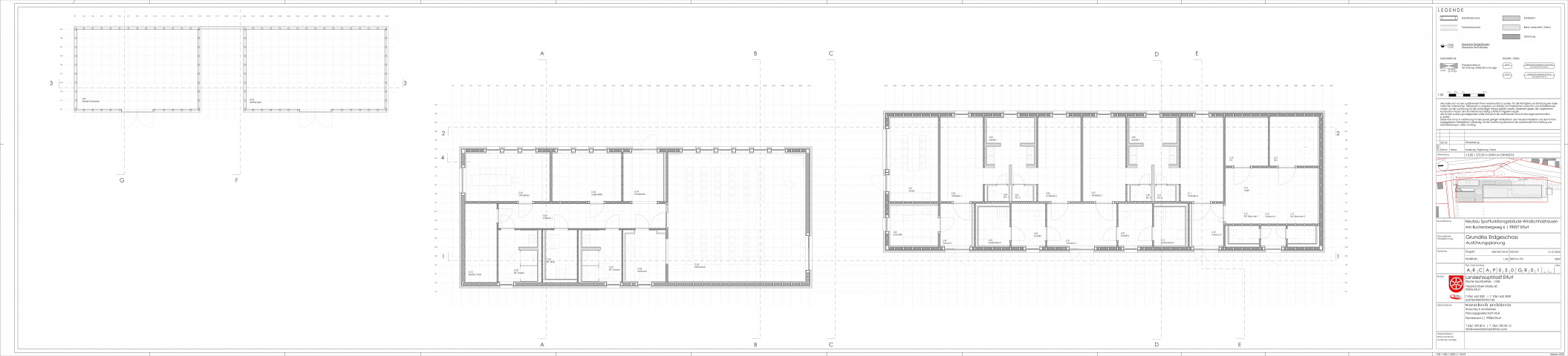
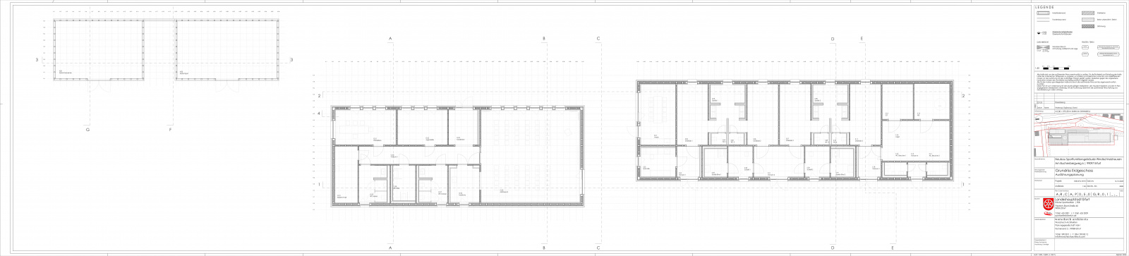
WHH Grundriss EG, Bild: Stephan Genge -
WHH Ansicht Ost, Bild: Stephan Genge
Tag der Architektur 2026
Samstag, 27.06.2026 – geöffnet 13:00-16:00, Führungen 14:00 (Treffpunkt: Hof vor dem Gebäude)
Projektbeschreibung
Der Neubau des Sport- und Funktionsgebäudes am Sportplatz Windischholzhausen wurde von der Stadt Erfurt geplant. Der lineare Holzbau am nordöstlichen Rand des Spielfeldes wertet das Areal städtebaulich auf und ergänzt die bestehenden Sport- und Grünflächen. Zwei funktional getrennte Baukörper werden unter einem gemeinsamen Dach verbunden: Im nördlichen Gebäudeteil befinden sich die Räume der Ortsverwaltung sowie ein Mehrzweck- und Jugendraum, im Süden die Umkleide- und Vereinsräume. Das durchgehende, zum Spielfeld frei auskragende Dach bildet in Verbindung mit der erhöhten Gebäudepositionierung tribünenartige Aufenthaltsbereiche mit direktem Sichtbezug zum Spielfeld. Die Konstruktion erfolgt in Holzrahmenbauweise mit Gründach und einer PV-Anlage.
Projektdaten
Adresse
Buchbergweg 6
99099 Erfurt OT Windischholzhausen
Planungsbüro
Bauherr
Erfurter Sportbetrieb
Fertigstellung
März 2026
Nutzfläche
495 m2
An dieser Stelle wird eine Google-Maps-Karte angezeigt, wenn Sie das Speichern der entsprechenden Cookies erlaubt haben. Dies können Sie über die Privatsphäre-Einstellungen jederzeit tun.
Zugeordnete Schlagworte und Sammlungen
Weitere Projekte des gleichen Büros (31)
-
HEX Erlebniswelt - Turm mit Funktionsbereichen und Aussichtsplattform
Ellrich
Alte Nordhäuser Straße 26, 99755 Ellrich OT Rothesütte
worschech architects, Erfurt
Architekturbüro Dr. Michael Flagmeyer, NordhausenTag der Architektur 2026
Samstag, 27.06.2026 – Führungen 14:00 (Treffpunkt: Eingangshalle Turm), Eintritt: 12,00 EUR
Sonntag, 28.06.2026 – Führungen 14:00 (Treffpunkt: Eingangshalle Turm), Eintritt: 12,00 EUR
-
-
-
-
-
-
-
-
-
-
-
Verbindungsachse Altstadt-Bahnhof Nordhausen
Nordhausen
Rautenstraße, Kornmarkt, Nordhausen
worschech architects, Erfurt
W&R Wittig & Rietig GmbH Landschaftsarchitektur, Weimar
-
-
-
Thüringer Landesamt für Lebensmittelsicherheit und Verbraucherschutz
Bad Langensalza
Tennstedter Straße 89, 99947 Bad Langensalza
-
Zentralklinikum Suhl
Suhl
Albert-Schweizer-Straße 2, 98527 Suhl
worschech architects, Erfurt
Dr. Schmidt Planungsgesellschaft mbH, Schleusingen
-
Forschungszentrum “Polymer Nanostructures” Universität Bayreuth
Bayreuth
Universitätsstraße, 95447 Bayreuth
-
-
Letzte Aktualisierung dieser Seite am: 07.05.2026. Alle Angaben auf dieser Seite werden durch das Büro worschech architects, Erfurt auf freiwilliger Basis verwaltet. Das Büro ist für den Inhalt dieser Seite selbst verantwortlich. Die Angaben werden von der Architektenkammer Thüringen nicht geprüft.