Stadt-Werkstatt Mühlhausen
8 Projektbilder
-
Stadt-Werkstatt Mühlhausen Vogelperspektive, Bild: Stefan Schmidt -
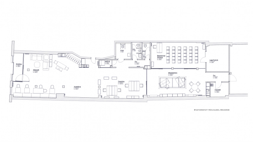
Stadt-Werkstatt Mühlhausen Grundriss, Bild: Stefan Schmidt -
Stadt-Werkstatt Mühlhausen Animation 1, Bild: Stefan Schmidt -
Stadt-Werkstatt Mühlhausen Animation 2, Bild: Stefan Schmidt -
Stadt-Werkstatt Mühlhausen Bild 1, Bild: Stefan Schmidt -
Stadt-Werkstatt Mühlhausen Bild 2, Bild: Stefan Schmidt -
Stadt-Werkstatt Mühlhausen Bild 3, Bild: Stefan Schmidt -
Stadt-Werkstatt Mühlhausen Bild 4, Bild: Stefan Schmidt
Projektbeschreibung
Im Rahmen des geförderten Smart City Modellprogramms hat sich die Stadt Mühlhausen für die Unterbringung einer “Stadt-Werkstatt“ in einem leerstehenden Ladenlokal in der gut erreichbaren Mühlhäuser Innenstadt entschieden.
Unser Auftrag war es, den ca. 250 m² großen Raum im Erdgeschoss zu einer Stadt-Werkstatt als barrierefreien Begegnungsort zum Austausch, Ausstellungs- und Präsentationsraum, Coworking-Space, Arbeitsstätte und Tagungsort umzubauen und einzurichten.
Um in dem langgestreckten Raum alle Funktionen unterbringen zu können, sind Lüftungs- und Beleuchtungstechnik, ein Oberlicht, Stahl-Glas-Trennwandelemente, welche die verschiedenen Nutzungsbereiche gliedern, sichtbar im Industrie-Stil eingebaut worden. Kombiniert mit Akustikelementen aus Holz und textilen Belägen und der passenden Möbelausstattung sind funktionale Wohlfühlräume für kreative Arbeit und Begegnung entstanden.
Projektdaten
Adresse
Steinweg 4
99974 Mühlhausen
Planungsbüro
INARTE Innenarchitektur Stefan Schmidt, Leinefelde-Worbis
Bauherr
Stadtverwaltung Mühlhausen
Fertigstellung
Juni 2023
Nutzfläche
252 m2
An dieser Stelle wird eine Google-Maps-Karte angezeigt, wenn Sie das Speichern der entsprechenden Cookies erlaubt haben. Dies können Sie über die Privatsphäre-Einstellungen jederzeit tun.
Zugeordnete Schlagworte und Sammlungen
Weitere Projekte des gleichen Büros (3)
-
Ökum. Kirchenpavillon Landesgartenschau 2026 Leinefelde-Worbis
Leinefelde-Worbis
Beethovenstraße 76, 37327 Leinefelde-Worbis
INARTE Innenarchitektur Stefan Schmidt, Leinefelde-Worbis
-
Sanierung und Umnutzung von Archiv zu Verwaltungsräumen im EG des Gebäudes „Oberer Hof des Deutschen Ordens, Thomas-Müntzer-Haus“
Mühlhausen
Bei der Marienkirche 9, 99974 Mühlhausen
INARTE Innenarchitektur Stefan Schmidt, Leinefelde-Worbis
Architektur- und Planungsbüro Dipl.-Ing. Angela Wust, Gebesee
Letzte Aktualisierung dieser Seite am: 23.05.2024. Alle Angaben auf dieser Seite werden durch das Büro INARTE Innenarchitektur Stefan Schmidt, Leinefelde-Worbis auf freiwilliger Basis verwaltet. Das Büro ist für den Inhalt dieser Seite selbst verantwortlich. Die Angaben werden von der Architektenkammer Thüringen nicht geprüft.