Sanierung und Umnutzung von Archiv zu Verwaltungsräumen im EG des Gebäudes „Oberer Hof des Deutschen Ordens, Thomas-Müntzer-Haus“ · Mühlhausen
5 Projektbilder
Projektbeschreibung
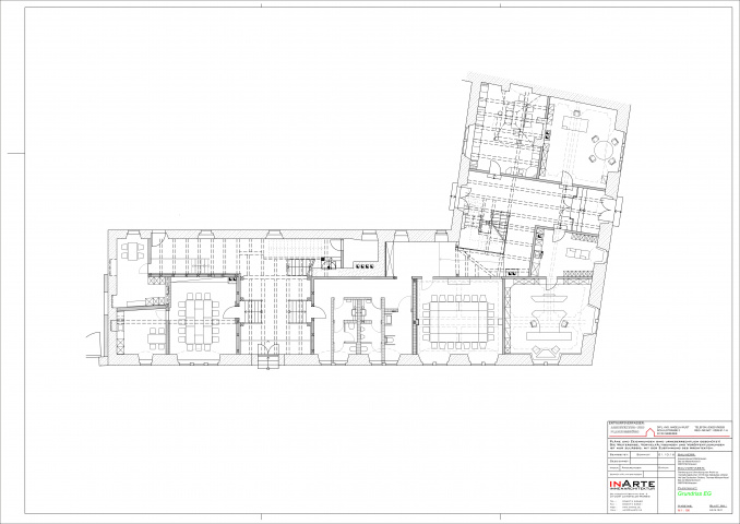
Der ehemalige „Obere Hof des Deutschen Ordens“ war vom 13. bis Mitte des 16. Jahrhunderts Sitz der Deutschordensherren in Mühlhausen. 1525 lebte hier Thomas Müntzer, der Zeitgenosse und zeitweiliger Mitstreiter Martin Luthers war. Im Jahr 1800 wurde in diesem Gebäude der preußische Baumeister und spätere Hofarchitekt Friedrich August Stüler geboren. Seit 1999 ist es der Verwaltungssitz des Kirchenkreises Mühlhausen. Bei der durchgeführten Sanierung wurde das Erdgeschoss des Hauses denkmalgerecht ertüchtigt und modernisiert. Ein lange Zeit weitestgehend ungenutzter Gebäudeteil wurde komplett ausgebaut. In den Räumlichkeiten, die den Sitz der Superintendentur sowie Sanitär-, Beratungs- und Versammlungsräume beherbergen, wurde ein innenarchitektonisches Gesamtkonzept umgesetzt.
Projektdaten
Adresse
Bei der Marienkirche 9
99974 Mühlhausen
Planungsbüros
INARTE Innenarchitektur Stefan Schmidt, Leinefelde-Worbis
Architektur- und Planungsbüro Dipl.-Ing. Angela Wust, Gebesee
Bauherr
Evangelischer Kirchenkreis Mühlhausen
Fertigstellung
Oktober 2016
An dieser Stelle wird eine Google-Maps-Karte angezeigt, wenn Sie das Speichern der entsprechenden Cookies erlaubt haben. Dies können Sie über die Privatsphäre-Einstellungen jederzeit tun.
Zugeordnete Schlagworte und Sammlungen
Weitere Projekte des gleichen Büros (3)
-
Ökum. Kirchenpavillon Landesgartenschau 2026 Leinefelde-Worbis
Leinefelde-Worbis
Beethovenstraße 76, 37327 Leinefelde-Worbis
INARTE Innenarchitektur Stefan Schmidt, Leinefelde-Worbis
-
Stadt-Werkstatt Mühlhausen
Mühlhausen
Steinweg 4, 99974 Mühlhausen
INARTE Innenarchitektur Stefan Schmidt, Leinefelde-Worbis
Letzte Aktualisierung dieser Seite am: 23.05.2017. Alle Angaben auf dieser Seite werden durch das Büro INARTE Innenarchitektur Stefan Schmidt, Leinefelde-Worbis auf freiwilliger Basis verwaltet. Das Büro ist für den Inhalt dieser Seite selbst verantwortlich. Die Angaben werden von der Architektenkammer Thüringen nicht geprüft.