Umbau der Tourist-Information Bad Sulza
OTTO Architektur + Landschaftsarchitektur Partnerschaft mbB, Jena
8 Projektbilder
Projektbeschreibung
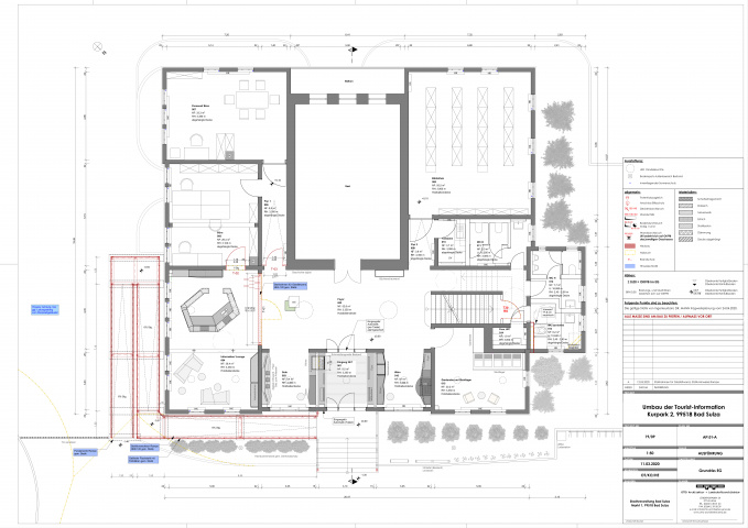
Das historische Gebäude "Inhalatorium" der Stadt Bad Sulza beherbergt die Tourist-Information.
Die in die Jahre gekommene Ausstattung ist modernisiert und die Tourist-Information digitalisiert worden.
Die gefordertre Barrirefreiheit wurde ebenso umgesetzt.
Der Bereich zwischen den beiden Eingangstüren (Windfang) ist durch den Umbau auch außerhalb der Geschäftszeiten der Tourist-Information künftig 24 Stunden an 7 Tagen erreichbar sein. Hier ist u.a. ein Souvenir-Automat aufgestellt worden, an dem etwa Wanderkarten, Sole-Bonbons oder auch eine Flasche regionaler Wein gekauft werden kann.
In der Tourist-Information selbst wurden die Themen "Sole" und "Wein" in zwei separaten Bereichen thematisiert und digital erfahrbar gemacht. Auch die Geschichte des unter Denkmalschutz stehenden Gebäudes kann über einen Touch-Screen erfahren werden.
Projektdaten
Adresse
Kurpark 2
99518 Bad Sulza
Planungsbüro
OTTO Architektur + Landschaftsarchitektur Partnerschaft mbB, Jena
Bauherr
Stadtverwaltung Bad Sulza, Bürgermeister Herr D. Schütze
Fertigstellung
März 2021
Nutzfläche
390 m2
An dieser Stelle wird eine Google-Maps-Karte angezeigt, wenn Sie das Speichern der entsprechenden Cookies erlaubt haben. Dies können Sie über die Privatsphäre-Einstellungen jederzeit tun.
Zugeordnete Schlagworte und Sammlungen
Weitere Projekte des gleichen Büros (22)
-
Stadtkirche Jena - Sanierung der Krypta
Jena
Kirchplatz 1, 07743 Jena
OTTO Architektur + Landschaftsarchitektur Partnerschaft mbB, Jena
Tag der Architektur 2026
Samstag, 27.06.2026 – geöffnet 10:00-11:00, Führungen 10:00 (Treffpunkt: Haupteingang Kirchplatz), max. 15 Personen je Führung
Sonntag, 28.06.2026 – geöffnet 10:00-11:00, Führungen 10:00 (Treffpunkt: Haupteingang Kirchplatz), max. 15 Personen je Führung
-
Wohnungsneubau "Am Oelste" - KfW40N - QNG
Jena
Elisabeth-von-Thüringen-Straße 1-3, 07743 Jena OT Zwätzen
OTTO Architektur + Landschaftsarchitektur Partnerschaft mbB, Jena
Tag der Architektur 2026
Samstag, 27.06.2026 – Führungen 14:00-15:00 (Treffpunkt: Elisabeth-von-Thüringen-Straße 1)
Sonntag, 28.06.2026 – Führungen 14:00-15:00 (Treffpunkt: Elisabeth-von-Thüringen-Straße 1)
-
Parkplatz und Freianlagen "Alte Schmiede" Bad Sulza
Bad Sulza
Leopold-Bing-Straße 5, 99518 Bad Sulza
OTTO Architektur + Landschaftsarchitektur Partnerschaft mbB, Jena
-
Neubau Servicegebäude
Bad Sulza
Am Gradierwerk, 99518 Bad Sulza
OTTO Architektur + Landschaftsarchitektur Partnerschaft mbB, Jena
-
Neubau Leonardoschule
Jena
Marie-Juchacz-Straße 1, 07749 Jena OT Jena-Ost
OTTO Architektur + Landschaftsarchitektur Partnerschaft mbB, Jena
-
Café Stilbruch
Jena
Wagnergasse 1 bis 3, 07743 Jena
OTTO Architektur + Landschaftsarchitektur Partnerschaft mbB, Jena
-
Neubau Hotel in Jena
Jena
Am Anger 32, 07743 Jena
OTTO Architektur + Landschaftsarchitektur Partnerschaft mbB, Jena
-
Einzeldenkmal "Villa Meyer"
Jena
Landgrafenstieg 5, 07743 Jena
OTTO Architektur + Landschaftsarchitektur Partnerschaft mbB, Jena
-
Neubau Wohnhaus im Westviertel
Jena
Fritz-Krieger-Straße 1a, 07743 Jena
OTTO Architektur + Landschaftsarchitektur Partnerschaft mbB, Jena
-
Technologie- und Innovationspark
Jena
Wildenbruchstraße 15 , 07745 Jena
OTTO Architektur + Landschaftsarchitektur Partnerschaft mbB, Jena
-
Sanierung der Westschule
Jena
August Bebel Straße 23, 07743 Jena
OTTO Architektur + Landschaftsarchitektur Partnerschaft mbB, Jena
-
Tourist-Information Jena
Jena
Markt 16, 07743 Jena
OTTO Architektur + Landschaftsarchitektur Partnerschaft mbB, Jena
-
Neubau Mehrfamilienhaus mit TG
Apolda
Erfurter Straße, 99510 Apolda
OTTO Architektur + Landschaftsarchitektur Partnerschaft mbB, Jena
-
Sanierung Wohnhaus
Dornburg
Karl-Marx-Str. 1, 07774 Dornburg
OTTO Architektur + Landschaftsarchitektur Partnerschaft mbB, Jena
-
Neubau eines Wohnhauses in Weimar
Weimar
Georg-Muche-Platz 12, 99425 Weimar
OTTO Architektur + Landschaftsarchitektur Partnerschaft mbB, Jena
-
Konzept zum Bernstein-Carré in Leipzig
Leipzig
Katharienenstraße, Leipzig
OTTO Architektur + Landschaftsarchitektur Partnerschaft mbB, Jena
-
Mehrfamilienwohnhaus in Jena
Jena
Magdelstieg, 07743 Jena
OTTO Architektur + Landschaftsarchitektur Partnerschaft mbB, Jena
-
Wettbewerb Hotel in Jena
Jena
Knebelstr. 10, 07743 Jena
OTTO Architektur + Landschaftsarchitektur Partnerschaft mbB, Jena
-
Umbau eines Holzhauses von 1936
Jena
Wilhelm-Stade-Str. 19, 07749 Jena OT Wenigenjena
OTTO Architektur + Landschaftsarchitektur Partnerschaft mbB, Jena
-
Lückenbebauung Mehrfamilienhaus KfW-70 in Jena
Jena
Beutnitzer Straße 9, 07749 Jena
OTTO Architektur + Landschaftsarchitektur Partnerschaft mbB, Jena
Letzte Aktualisierung dieser Seite am: 15.04.2021. Alle Angaben auf dieser Seite werden durch das Büro OTTO Architektur + Landschaftsarchitektur Partnerschaft mbB, Jena auf freiwilliger Basis verwaltet. Das Büro ist für den Inhalt dieser Seite selbst verantwortlich. Die Angaben werden von der Architektenkammer Thüringen nicht geprüft.