Vom Verwaltungsbau zur modernen Wohnanlage - die Poststraße 2 in Sömmerda
7 Projektbilder
-
Hauptfassade Poststraße 2, Bild: Gall Tadeusz Podlaszewski -
Hohes Foyer, Bild: Gall Tadeusz Podlaszewski -
Blick aus dem Stadtring, Bild: Gall Tadeusz Podlaszewski -
Haupteingang, Bild: Gall Tadeusz Podlaszewski -
Zugang zum Sicherheitstreppenhaus, Bild: Gall Tadeusz Podlaszewski -
Hohes Foyer, Bild: Gall Tadeusz Podlaszewski -
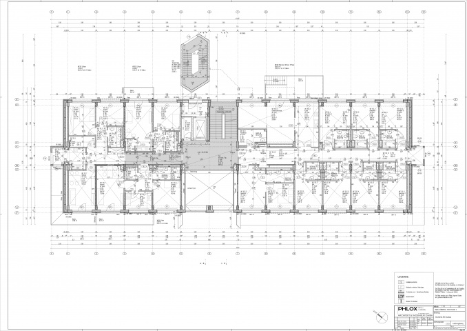
Grundriss Erdgeschoss, Bild: Gall Tadeusz Podlaszewski
Projektbeschreibung
Das Verwaltungsgebäude aus den 1960iger Jahren wurde zu Wohnzwecken umgebaut.
Der vorhandene Aufzug wurde erweitert, die barrierefreie Erreichbarkeit aller Geschosse sichergestellt und das Angebot von 40 Mikroappartments, einer Wohngruppe, sowie eines Pflegedienstes eingegliedert.
Die vorhandene Gebäudestruktur wurde durch Aufstockung und Vorstellen von Balkonstahlkonstruktionen und eines Sicherheitstreppenhauses verändert.
Alle Räume behielten die großen Fenster und haben die Möglichkeit über ein gleichzeitig Verschattung bietendes Balkonkraftwerk ihre Nebenkosten zu senken. Das gesamte Haus speist sich aus erneuerbaren Energien durch eine Luft-Wasser-Wärmepumpe und durch eine Sole-Wasser-Wärmepumpe. In den Sommermonaten trägt die Deckenkühlung zum Wiederaufladen des Erdsondenfeldes bei.
Projektdaten
Adresse
Poststraße 2
99610 Sömmerda
Planungsbüro
PHLOX Architekt & Ingenieur GmbH, Weimar
Bauherr
Wohnungsbaugenossenschaft Sömmerda/Thür. eG
Fertigstellung
Dezember 2024
Nutzfläche
3035 m2
An dieser Stelle wird eine Google-Maps-Karte angezeigt, wenn Sie das Speichern der entsprechenden Cookies erlaubt haben. Dies können Sie über die Privatsphäre-Einstellungen jederzeit tun.
Zugeordnete Schlagworte und Sammlungen
Weitere Projekte des gleichen Büros (2)
-
Umbau und Sanierung von Salvador-Allende-Platz 9-15
Jena
Salvador-Allende-Platz 15, 07747 Jena OT Lobeda
PHLOX Architekt & Ingenieur GmbH, Weimar
Tag der Architektur 2026
Samstag, 27.06.2026 – geöffnet 10:00-15:00, Führungen 10:30, 11:30, 13:30
-
Umbau MFH Paganinistraße 2
Rudolstadt
Paganinistraße 2, 07407 Rudolstadt OT Volkstedt-West
PHLOX Architekt & Ingenieur GmbH, Weimar
Letzte Aktualisierung dieser Seite am: 05.06.2025. Alle Angaben auf dieser Seite werden durch das Büro PHLOX Architekt & Ingenieur GmbH, Weimar auf freiwilliger Basis verwaltet. Das Büro ist für den Inhalt dieser Seite selbst verantwortlich. Die Angaben werden von der Architektenkammer Thüringen nicht geprüft.