Erweiterung, Umbau und Interior Messe-Restaurant Erfurt
VITAMINOFFICE ARCHITEKTEN Bastam Enenkel Partnerschaft mbB, Erfurt
9 Projektbilder
Projektbeschreibung
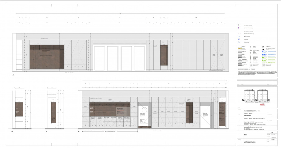
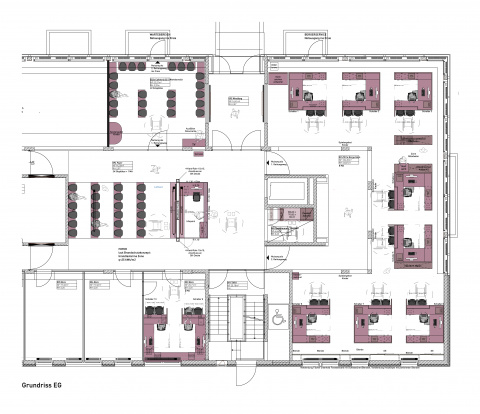
Die Aufgabe bestand darin, das ehemalige Messe-Bistro zu einem Restaurant mit neuer angenehmer Atmosphäre zu verwandeln und seine Gastro-Küche, sowie WC-Anlagen zu erweitern.
Eine schwarze Wandverkleidung als Einbaumöbel, mit Kupfer ausgekleidete Nischen und ein edler, dunkler Eicheboden treffen im neuen Messe-Restaurant auf eine weiße Lamellen-Akustikdecke, sowie einen weißen hinterleuchteten Tresen aus HiMacs und weiße Sitzmöbel.
Projektdaten
Adresse
Gothaer Staße 34
99094 Erfurt
Planungsbüro
VITAMINOFFICE ARCHITEKTEN Bastam Enenkel Partnerschaft mbB, Erfurt
Bauherr
Messe Erfurt GmbH
Fertigstellung
Februar 2013
Nutzfläche
360 m2
An dieser Stelle wird eine Google-Maps-Karte angezeigt, wenn Sie das Speichern der entsprechenden Cookies erlaubt haben. Dies können Sie über die Privatsphäre-Einstellungen jederzeit tun.
Zugeordnete Schlagworte und Sammlungen
Weitere Projekte des gleichen Büros (16)
-
Neugestaltung Bürgerservice Weimar
Weimar
Schwanseestrasse 17, 99423 Weimar
VITAMINOFFICE ARCHITEKTEN Bastam Enenkel Partnerschaft mbB, Erfurt
-
Haus am Hamburger Berg
Erfurt
Hamburger Berg 19a, 99094 Erfurt OT Bischleben
VITAMINOFFICE ARCHITEKTEN Bastam Enenkel Partnerschaft mbB, Erfurt
-
Sanierung und Erweiterung Gemeinschaftsschule ‚Joseph Meyer’ Neuhaus-Schierschnitz
Neuhaus-Schierschnitz
An der Schule 2-4, 96524 Neuhaus-Schierschnitz
VITAMINOFFICE ARCHITEKTEN Bastam Enenkel Partnerschaft mbB, Erfurt
-
Neubau Kindertagesstätte "Mittelhäuser Spatzen"
Erfurt
Friedrich-Neumeyer-Straße 1, 99195 Erfurt OT Mittelhausen
VITAMINOFFICE ARCHITEKTEN Bastam Enenkel Partnerschaft mbB, Erfurt
-
Einfamilienhaus Barbarossahof 7 Erfurt
Erfurt
Barbarossahof 7, 99092 Erfurt
VITAMINOFFICE ARCHITEKTEN Bastam Enenkel Partnerschaft mbB, Erfurt
-
Verwaltung Glastechnik Kirste
Rudolstadt
Remdaer Hauptstraße 35, 07407 Rudolstadt OT Remda-Teichel
VITAMINOFFICE ARCHITEKTEN Bastam Enenkel Partnerschaft mbB, Erfurt
-
COMCENTER Brühl
Erfurt
Mainzerhofstraße 10, 99084 Erfurt
VITAMINOFFICE ARCHITEKTEN Bastam Enenkel Partnerschaft mbB, Erfurt
-
1. Preis WB Grundschule Vieselbach
Vieselbach
Straße der Jugend, Vieselbach
VITAMINOFFICE ARCHITEKTEN Bastam Enenkel Partnerschaft mbB, Erfurt
-
Wohnen in der Pfaffengasse
Schmalkalden
Pfaffengasse 1, 98574 Schmalkalden
VITAMINOFFICE ARCHITEKTEN Bastam Enenkel Partnerschaft mbB, Erfurt
-
Neubau Riethsporthalle Erfurt
Erfurt
Essener Str. 16, Erfurt
VITAMINOFFICE ARCHITEKTEN Bastam Enenkel Partnerschaft mbB, Erfurt
-
Studie Neubau Kindergarten Erfurt
Erfurt
Am Fuchsgrund, Erfurt
VITAMINOFFICE ARCHITEKTEN Bastam Enenkel Partnerschaft mbB, Erfurt
-
Erweiterung der Staatlichen Studienakademie Thüringen, 1. Preis
Eisenach
Am Wartenberg, 99817 Eisenach
VITAMINOFFICE ARCHITEKTEN Bastam Enenkel Partnerschaft mbB, Erfurt
-
Konzeptstudie Technologieterminal Ilmenau
Ilmenau
Am Bahndamm 10, Ilmenau
VITAMINOFFICE ARCHITEKTEN Bastam Enenkel Partnerschaft mbB, Erfurt
-
Innenarchitektur Neubau Verbandsgebäude KVT Artern
Artern
Steile Hohle 6, 06556 Artern
VITAMINOFFICE ARCHITEKTEN Bastam Enenkel Partnerschaft mbB, Erfurt
-
Neubau Förderbereich Arnstadt
Arnstadt
Am Kesselbrunn 46 b, 99310 Arnstadt
VITAMINOFFICE ARCHITEKTEN Bastam Enenkel Partnerschaft mbB, Erfurt
Letzte Aktualisierung dieser Seite am: 11.05.2015. Alle Angaben auf dieser Seite werden durch das Büro VITAMINOFFICE ARCHITEKTEN Bastam Enenkel Partnerschaft mbB, Erfurt auf freiwilliger Basis verwaltet. Das Büro ist für den Inhalt dieser Seite selbst verantwortlich. Die Angaben werden von der Architektenkammer Thüringen nicht geprüft.