Neubau Förderbereich Arnstadt
VITAMINOFFICE ARCHITEKTEN Bastam Enenkel Partnerschaft mbB, Erfurt
7 Projektbilder
Projektbeschreibung
Im Jahre 1962 wurde als Einrichtung des Marienstiftes Arnstadt eine Werkstatt für behinderte Menschen gegründet. Seit 1990 betreibt die Werkstatt in zwei ehemaligen landwirtschaftlichen Wirtschaftsgebäuden den Förderbereich für schwerstbehinderte Menschen, welche nun durch einen Ersatzneubau ersetzt wurden.
Der Förderbereich konnte in unmittelbarer Nähe des vorhandenen Werkstattgebäudes auf einem freien Wiesengrundstück errichtet werden.
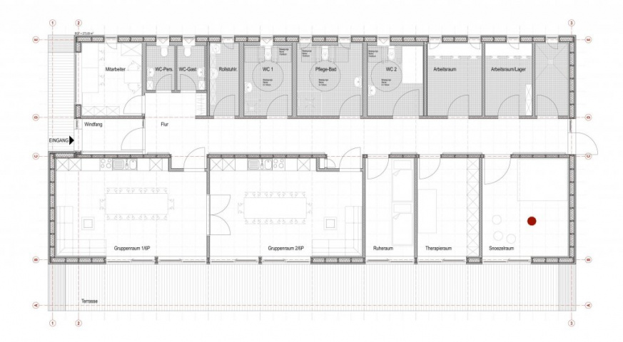
Es entstand ein Neubau für 2 Gruppen zu je 6 Personen mit Gruppenräumen, zusätzlichen Pflege- und Arbeitsräumen sowie einem Snoezelraum. Diese öffnen sich nach Süden über eine großzügige überdachte Terrasse zum Garten.
Ein enger Kostenrahmen im Zusammenhang mit der umfangreichen technischen Ausstattung des Förderbereiches stellte die größte Herausforderung beim Neubau.
Dieser wurde als Holzrahmenbau errichtet, um zum einen Bauzeit zu sparen und zum anderen den hohen Ansprüchen an den Energieverbrauch und die Betriebskosten gerecht zu werden.
Projektdaten
Adresse
Am Kesselbrunn 46 b
99310 Arnstadt
Planungsbüro
VITAMINOFFICE ARCHITEKTEN Bastam Enenkel Partnerschaft mbB, Erfurt
Bauherr
Marienstift Arnstadt
Fertigstellung
2009
An dieser Stelle wird eine Google-Maps-Karte angezeigt, wenn Sie das Speichern der entsprechenden Cookies erlaubt haben. Dies können Sie über die Privatsphäre-Einstellungen jederzeit tun.
Zugeordnete Schlagworte und Sammlungen
Weitere Projekte des gleichen Büros (16)
-
Neugestaltung Bürgerservice Weimar
Weimar
Schwanseestrasse 17, 99423 Weimar
VITAMINOFFICE ARCHITEKTEN Bastam Enenkel Partnerschaft mbB, Erfurt
Tag der Architektur 2026
Samstag, 27.06.2026 – geöffnet 10:00-13:00
-
Haus am Hamburger Berg
Erfurt
Hamburger Berg 19a, 99094 Erfurt OT Bischleben
VITAMINOFFICE ARCHITEKTEN Bastam Enenkel Partnerschaft mbB, Erfurt
Tag der Architektur 2026
Samstag, 27.06.2026 – geöffnet 12:00-14:00
-
Sanierung und Erweiterung Gemeinschaftsschule ‚Joseph Meyer’ Neuhaus-Schierschnitz
Neuhaus-Schierschnitz
An der Schule 2-4, 96524 Neuhaus-Schierschnitz
VITAMINOFFICE ARCHITEKTEN Bastam Enenkel Partnerschaft mbB, Erfurt
-
Neubau Kindertagesstätte "Mittelhäuser Spatzen"
Erfurt
Friedrich-Neumeyer-Straße 1, 99195 Erfurt OT Mittelhausen
VITAMINOFFICE ARCHITEKTEN Bastam Enenkel Partnerschaft mbB, Erfurt
-
Einfamilienhaus Barbarossahof 7 Erfurt
Erfurt
Barbarossahof 7, 99092 Erfurt
VITAMINOFFICE ARCHITEKTEN Bastam Enenkel Partnerschaft mbB, Erfurt
-
Verwaltung Glastechnik Kirste
Rudolstadt
Remdaer Hauptstraße 35, 07407 Rudolstadt OT Remda-Teichel
VITAMINOFFICE ARCHITEKTEN Bastam Enenkel Partnerschaft mbB, Erfurt
-
COMCENTER Brühl
Erfurt
Mainzerhofstraße 10, 99084 Erfurt
VITAMINOFFICE ARCHITEKTEN Bastam Enenkel Partnerschaft mbB, Erfurt
-
1. Preis WB Grundschule Vieselbach
Vieselbach
Straße der Jugend, Vieselbach
VITAMINOFFICE ARCHITEKTEN Bastam Enenkel Partnerschaft mbB, Erfurt
-
Wohnen in der Pfaffengasse
Schmalkalden
Pfaffengasse 1, 98574 Schmalkalden
VITAMINOFFICE ARCHITEKTEN Bastam Enenkel Partnerschaft mbB, Erfurt
-
Erweiterung, Umbau und Interior Messe-Restaurant Erfurt
Erfurt
Gothaer Staße 34, 99094 Erfurt
VITAMINOFFICE ARCHITEKTEN Bastam Enenkel Partnerschaft mbB, Erfurt
-
Neubau Riethsporthalle Erfurt
Erfurt
Essener Str. 16, Erfurt
VITAMINOFFICE ARCHITEKTEN Bastam Enenkel Partnerschaft mbB, Erfurt
-
Studie Neubau Kindergarten Erfurt
Erfurt
Am Fuchsgrund, Erfurt
VITAMINOFFICE ARCHITEKTEN Bastam Enenkel Partnerschaft mbB, Erfurt
-
Erweiterung der Staatlichen Studienakademie Thüringen, 1. Preis
Eisenach
Am Wartenberg, 99817 Eisenach
VITAMINOFFICE ARCHITEKTEN Bastam Enenkel Partnerschaft mbB, Erfurt
-
Konzeptstudie Technologieterminal Ilmenau
Ilmenau
Am Bahndamm 10, Ilmenau
VITAMINOFFICE ARCHITEKTEN Bastam Enenkel Partnerschaft mbB, Erfurt
-
Innenarchitektur Neubau Verbandsgebäude KVT Artern
Artern
Steile Hohle 6, 06556 Artern
VITAMINOFFICE ARCHITEKTEN Bastam Enenkel Partnerschaft mbB, Erfurt
Letzte Aktualisierung dieser Seite am: 08.10.2010. Alle Angaben auf dieser Seite werden durch das Büro VITAMINOFFICE ARCHITEKTEN Bastam Enenkel Partnerschaft mbB, Erfurt auf freiwilliger Basis verwaltet. Das Büro ist für den Inhalt dieser Seite selbst verantwortlich. Die Angaben werden von der Architektenkammer Thüringen nicht geprüft.