Neugestaltung Bürgerservice Weimar
VITAMINOFFICE ARCHITEKTEN Bastam Enenkel Partnerschaft mbB, Erfurt
9 Projektbilder
-
Wartebereich 1, Bild: Tino Sieland -
Service 1, Bild: Tino Sieland -
Service 3, Bild: Tino Sieland -
Empfang 2, Bild: Tino Sieland -
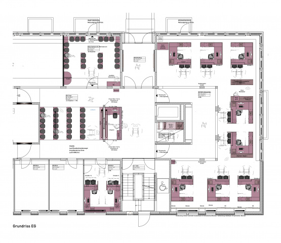
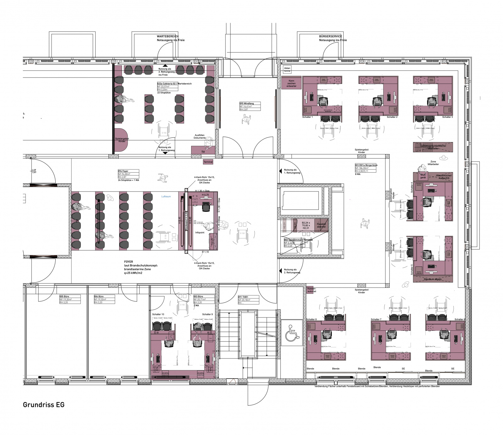
Grundriss Bürgerservice, Bild: Markus Bastam -
Visualisierung Bürgerservice, Bild: Markus Bastam -
Visualisierung Schalter Bürgerservice, Bild: Markus Bastam -
Service 2, Bild: Tino Sieland -
Wartebereich 3, Bild: Tino Sieland
Tag der Architektur 2026
Samstag, 27.06.2026 – geöffnet 10:00-13:00
Projektbeschreibung
Beim Ankommen im Bürgerservice Weimar leitet eine klare Wegeführung zum neu positionierten Infotresen, der als zentrale Anlaufstelle dient und eine schnelle Orientierung ermöglicht.
Der angrenzende Wartebereich ist übersichtlich zoniert, bietet unterschiedliche Aufenthaltsqualitäten und unterstützt durch seine ruhige Gestaltung einen angenehmen Aufenthalt.
Die Räumlichkeiten des Bürgerservices mit acht Beratungsplätzen schließen daran an und lassen diskrete Beratungssituationen entstehen. Pausen- und Organisationsbereiche für die Mitarbeitenden sind funktional eingebunden, sodass effiziente Abläufe im Hintergrund gewährleistet werden.
Hochwertige Holzoberflächen und abgestimmte warme Grautöne fügen sich zurückhaltend in den Bestand ein und verleihen dem Bürgerzentrum ein helles, freundliches und geordnetes Erscheinungsbild.
Projektdaten
Adresse
Schwanseestrasse 17
99423 Weimar
Planungsbüro
VITAMINOFFICE ARCHITEKTEN Bastam Enenkel Partnerschaft mbB, Erfurt
Bauherr
Stadtverwaltung Weimar
Fertigstellung
September 2025
Nutzfläche
340 m2
An dieser Stelle wird eine Google-Maps-Karte angezeigt, wenn Sie das Speichern der entsprechenden Cookies erlaubt haben. Dies können Sie über die Privatsphäre-Einstellungen jederzeit tun.
Zugeordnete Schlagworte und Sammlungen
Weitere Projekte des gleichen Büros (16)
-
Haus am Hamburger Berg
Erfurt
Hamburger Berg 19a, 99094 Erfurt OT Bischleben
VITAMINOFFICE ARCHITEKTEN Bastam Enenkel Partnerschaft mbB, Erfurt
Tag der Architektur 2026
Samstag, 27.06.2026 – geöffnet 12:00-14:00
-
Sanierung und Erweiterung Gemeinschaftsschule ‚Joseph Meyer’ Neuhaus-Schierschnitz
Neuhaus-Schierschnitz
An der Schule 2-4, 96524 Neuhaus-Schierschnitz
VITAMINOFFICE ARCHITEKTEN Bastam Enenkel Partnerschaft mbB, Erfurt
-
Neubau Kindertagesstätte "Mittelhäuser Spatzen"
Erfurt
Friedrich-Neumeyer-Straße 1, 99195 Erfurt OT Mittelhausen
VITAMINOFFICE ARCHITEKTEN Bastam Enenkel Partnerschaft mbB, Erfurt
-
Einfamilienhaus Barbarossahof 7 Erfurt
Erfurt
Barbarossahof 7, 99092 Erfurt
VITAMINOFFICE ARCHITEKTEN Bastam Enenkel Partnerschaft mbB, Erfurt
-
Verwaltung Glastechnik Kirste
Rudolstadt
Remdaer Hauptstraße 35, 07407 Rudolstadt OT Remda-Teichel
VITAMINOFFICE ARCHITEKTEN Bastam Enenkel Partnerschaft mbB, Erfurt
-
COMCENTER Brühl
Erfurt
Mainzerhofstraße 10, 99084 Erfurt
VITAMINOFFICE ARCHITEKTEN Bastam Enenkel Partnerschaft mbB, Erfurt
-
1. Preis WB Grundschule Vieselbach
Vieselbach
Straße der Jugend, Vieselbach
VITAMINOFFICE ARCHITEKTEN Bastam Enenkel Partnerschaft mbB, Erfurt
-
Wohnen in der Pfaffengasse
Schmalkalden
Pfaffengasse 1, 98574 Schmalkalden
VITAMINOFFICE ARCHITEKTEN Bastam Enenkel Partnerschaft mbB, Erfurt
-
Erweiterung, Umbau und Interior Messe-Restaurant Erfurt
Erfurt
Gothaer Staße 34, 99094 Erfurt
VITAMINOFFICE ARCHITEKTEN Bastam Enenkel Partnerschaft mbB, Erfurt
-
Neubau Riethsporthalle Erfurt
Erfurt
Essener Str. 16, Erfurt
VITAMINOFFICE ARCHITEKTEN Bastam Enenkel Partnerschaft mbB, Erfurt
-
Studie Neubau Kindergarten Erfurt
Erfurt
Am Fuchsgrund, Erfurt
VITAMINOFFICE ARCHITEKTEN Bastam Enenkel Partnerschaft mbB, Erfurt
-
Erweiterung der Staatlichen Studienakademie Thüringen, 1. Preis
Eisenach
Am Wartenberg, 99817 Eisenach
VITAMINOFFICE ARCHITEKTEN Bastam Enenkel Partnerschaft mbB, Erfurt
-
Konzeptstudie Technologieterminal Ilmenau
Ilmenau
Am Bahndamm 10, Ilmenau
VITAMINOFFICE ARCHITEKTEN Bastam Enenkel Partnerschaft mbB, Erfurt
-
Innenarchitektur Neubau Verbandsgebäude KVT Artern
Artern
Steile Hohle 6, 06556 Artern
VITAMINOFFICE ARCHITEKTEN Bastam Enenkel Partnerschaft mbB, Erfurt
-
Neubau Förderbereich Arnstadt
Arnstadt
Am Kesselbrunn 46 b, 99310 Arnstadt
VITAMINOFFICE ARCHITEKTEN Bastam Enenkel Partnerschaft mbB, Erfurt
Letzte Aktualisierung dieser Seite am: 23.04.2026. Alle Angaben auf dieser Seite werden durch das Büro VITAMINOFFICE ARCHITEKTEN Bastam Enenkel Partnerschaft mbB, Erfurt auf freiwilliger Basis verwaltet. Das Büro ist für den Inhalt dieser Seite selbst verantwortlich. Die Angaben werden von der Architektenkammer Thüringen nicht geprüft.