Logo der Architektenkammer Thüringen

Haus M. · Erfurt

Atelier S82 - RUS, Erfurt

Projektbeschreibung

Städtebauliches Konzept
Das Baugrundstück befindet sich in nördlicher Ortsrandlage der Gemarkung Erfurt-Linderbach und ist Bestandteil des Bebauungsplans LIA285 ?Am Steige?. Das Bauvorhaben fügt sich gem. den Anforderungen an Art und Maß der baulichen Nutzung in Körnungsgröße, Kubatur und Materialität in die umgebende Bebauung ein. Von den Festsetzungen zum Dachfarbton gem. § 9 BauGB in Verbindung mit § ff4,19,20 BauNVO wird aus städtebaulich vertretbaren Gründen Befreiung gem. § 31, Abs. 2 BauGB beantragt, da die Grundzüge der Planung des Bebauungsplanes unberührt bleiben, wenn der Neubau mit anthrazitfarbenen Dachziegeln ausgeführt werden wird. Das Energieeffizienzhaus sieht gem. EnEV2009 eine Optimierung der Gebäudehülle vor, um Transmissionswärmeverluste auf ein Minimum zu verringern. Dies wird mit einem Blower-Door-Test nach Fertigstellung der Gebäudehülle (Wind-Dichtigkeits-Ebene) nachgewiesen. Das Einfamilienwohnhaus fügt sich in das heterogene Gefüge der umgebenden Bebauung ein und stellt einen zeitgemäßen Beitrag zur architektonischen Gebäudevielfalt in Erfurt-Linderbach dar.

Entwurfskonzept
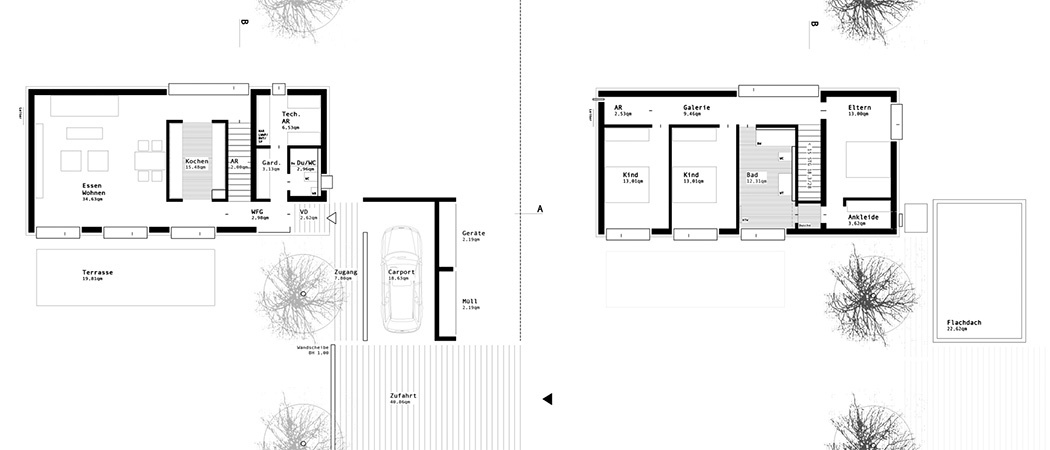
Das zweigeschossige Gebäude mit Lochfassade wird am nördlichen Rand des Baufensters platziert und orientiert sich in seiner Längsausrichtung nach Süden. Im Erdgeschoss ist der offene Wohngrundriss von Norden nach Süden durchgesteckt und stellt adäquate Innen- und Außenraumbezüge entsprechend seinen Nutzungsfunktionen her. Über eine in die Hauptraumzone liegende, einläufige Treppe gelangt man in das Obergeschoss. An der im Norden platzierten Horizontalerschließung mit Panoramafenster mit Blick in die Landschaft sind die Individualräume aufgefädelt, welche sich nach Westen, Süden und Osten orientieren.

Konstruktion
Das geplante Gebäude ist nicht unterkellert und wird in Massivbauweise errichtet. Die Gründung erfolgt gem. statischer Erfordernis auf tragfähigem Grund in frostsicherer Tiefe. Die Außenwände sind aus Porenbetonstein mit Wärmedämmverbundsystem, verputzt geplant. Die Innenwände werden aus Kalksandstein, Decken aus vorgespannten Stahlbeton-Fertigteil-Elementen hergestellt. Das Dach ist als asymetrisches Satteldach mit dunkler Ziegelsteindeckung vorgesehen.

Projektdaten

Adresse

Im Großen Garten 6
99098 Erfurt OT Vieselbach

Planungsbüro

Atelier S82 - RUS, Erfurt

Fertigstellung

Januar 2013

Nutzfläche

140 m2

An dieser Stelle wird eine Google-Maps-Karte angezeigt, wenn Sie das Speichern der entsprechenden Cookies erlaubt haben. Dies können Sie über die Privatsphäre-Einstellungen jederzeit tun.

Zugeordnete Schlagworte und Sammlungen

Weitere Projekte des gleichen Büros (8)

Letzte Aktualisierung dieser Seite am: 13.11.2014. Alle Angaben auf dieser Seite werden durch das Büro Atelier S82 - RUS, Erfurt auf freiwilliger Basis verwaltet. Das Büro ist für den Inhalt dieser Seite selbst verantwortlich. Die Angaben werden von der Architektenkammer Thüringen nicht geprüft.

Seite teilen: