LOFT E11 · Erfurt
9 Projektbilder
-
Stein. Stein. Stein. Detailaufnahme, Bild: Rainer Uwe Schultheiss -
Fünf Fenster, Bild: Rainer Uwe Schultheiss -
Zwei Türen, Bild: Rainer Uwe Schultheiss -
Himmel, Bild: Rainer Uwe Schultheiss -
Hölle, Bild: Rainer Uwe Schultheiss -
Ausblick, Bild: Rainer Uwe Schultheiss -
Nasszelle, Bild: Rainer Uwe Schultheiss -
Eingang, Bild: Rainer Uwe Schultheiss -
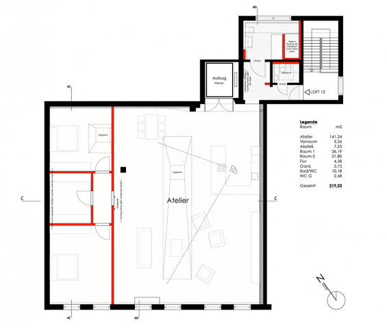
Grundriss, Bild: Rainer Uwe Schultheiss
Projektbeschreibung
Aufgabenstellung
Der Bauherr möchte eine bestehende Gewerbeeinheit in einem Industriegebäude zur Loftnutzung als Atelier umbauen und sanieren. Die wesentlichen Charaktereigenschaften des ehemaligen Bekleidungskombinats sollen herausgearbeitet, die natürliche Belüftung und Belichtung der Einheit verbessert und der industrielle Charme unterstrichen werden.
Situation im Bestand
Die Einheit weisst derzeit nur wenige erhaltenswerte Eigenschaften auf. Der Parkettfussboden kann für die zukünftige Nutzung als Atelier wieder aufgearbeitet werden, wie auch der stillgelegte Aufzugszugang als gestaltgebendes Element erhalten bleiben kann. Die besondere Lage der Einheit unter dem Dach bietet jedoch große Chancen, räumliche und funktionale Mehrwerte zu generieren.
Entwurfskonzept
Das Loft soll drei wesentliche Nutzungsteile aufweisen, die räumliche Großzügigkeit soll erhalten und aufgewertet werden: Atelier - Individualbereich - Nasszellen. Die Entwurfselemente "freiliegendes Mauerwerk", "Lichtkuppeln" und "Schnittmuster" sollen dem LOFT E-11 seine individuelle Note geben und den industriellen Charme unterstreichen. Die neu zu errichtende Wand soll sich mit Schattenfugen deutlich von bestehenden Wänden ablösen und durch die Haptik "alt" und "neu" im Raum ablesbar werden.
Projektdaten
Adresse
Schlachthofstr. 83
99085 Erfurt
Planungsbüro
Bauherr
privat
Fertigstellung
Juni 2015
Nutzfläche
220 m2
An dieser Stelle wird eine Google-Maps-Karte angezeigt, wenn Sie das Speichern der entsprechenden Cookies erlaubt haben. Dies können Sie über die Privatsphäre-Einstellungen jederzeit tun.
Zugeordnete Schlagworte und Sammlungen
Weitere Projekte des gleichen Büros (8)
Letzte Aktualisierung dieser Seite am: 01.03.2016. Alle Angaben auf dieser Seite werden durch das Büro Atelier S82 - RUS, Erfurt auf freiwilliger Basis verwaltet. Das Büro ist für den Inhalt dieser Seite selbst verantwortlich. Die Angaben werden von der Architektenkammer Thüringen nicht geprüft.