Z22 - Loftwohnen Bischlebener Mühle · Erfurt
13 Projektbilder
-
Gebäudeensemble, Bild: Rainer Uwe Schultheiss -
Eingang Produktionsgebäude, Bild: Rainer Uwe Schultheiss -
Produktionsgebäude, Bild: Rainer Uwe Schultheiss -
Balkone Produktionsgebäude, Bild: Rainer Uwe Schultheiss -
Treppenhaus Produktionsgebäude, Bild: Rainer Uwe Schultheiss -
Treppe Produktionsgebäude, Bild: Rainer Uwe Schultheiss -
Loft Produktionsgebäude, Bild: Rainer Uwe Schultheiss -
Gebäudeensemble Wasserseite, Bild: Rainer Uwe Schultheiss -
Wohnraumtreppe Umgebindehaus, Bild: Rainer Uwe Schultheiss -
Kinderzimmer Umgebindehaus, Bild: Rainer Uwe Schultheiss -
Lageplan Dachaufsicht, Bild: Rainer Uwe Schultheiss -
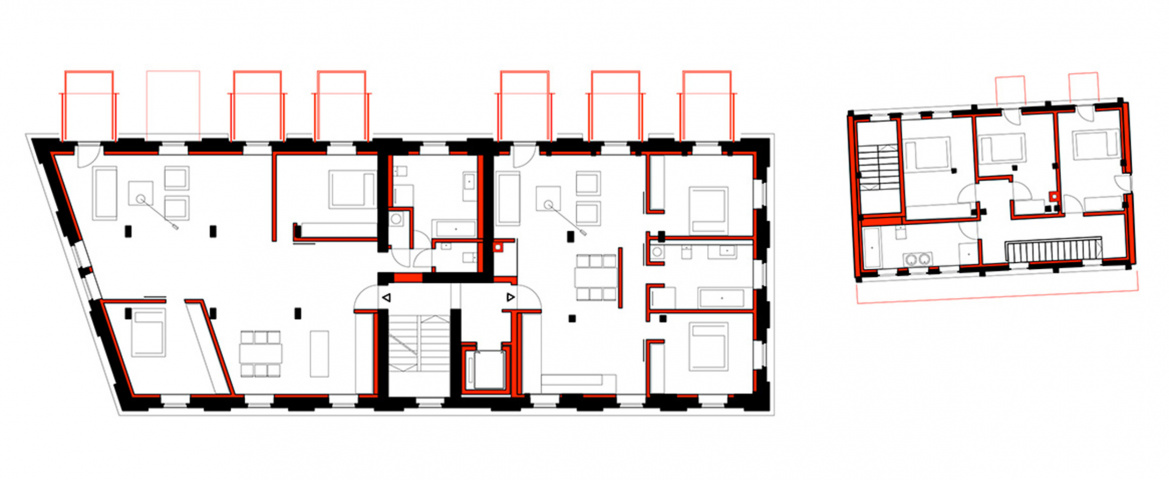
Regelgrundriss Gebäudeensemble, Bild: Rainer Uwe Schultheiss -
Schnittperspektive Produktionsgebäude, Bild: Rainer Uwe Schultheiss
Projektbeschreibung
Das Projekt „Loftwohnen im Kulturdenkmal Bischlebener Mühle“ zeigt Lösungen auf, wie das baukulturelle Erbe der Industriearchitektur Thüringens in Wert gesetzt und für die Zukunft entwickelt werden kann. Das seit Jahrzehnten brachliegende Ensemble der historischen Mühlengebäude am Rande des Ortskerns von Bischleben wird durch den Abbruch einzelner Gebäudeteile neu geordnet und einer zeitgemäßen Nutzung zugeführt. Dieser Entwurf reagiert auf die Qualitäten der unterschiedlichen Maßstabsebenen spezifisch im Umgang mit dem Bestand und dessen Umfeld.
So führt der Rückbau des Wohn- und Verwaltungsgebäudes zur Freistellung des prominenten, 5-geschossigen Produktionsgebäudes und schafft damit die Grundlage für die Entwicklung sehr gutbelichteter Wohnetagen. Der Fußabdruck des Mühlenkomplexes wird zudem auf ein dem Kontext angemessenes Maß verkleinert. Die Nahtstelle des abgebrochenen Gebäudeteils zeichnet sich gestaltprägend durch eine vorgehängte Fassade aus Cortenstahl ab und wird zum Identitätsgeber des Gebäudeensembles. Der bauliche Eingriff im Zuge der Revitalisierung wird auf diese Weise subtil sichtbar gemacht.
Im Inneren setzt sich diese angemessene Kenntlichmachung von Bestand und Eingriff liebevoll fort: alte Mauerwerksteile werden geschlämmt und zeigen sich in einer charakteristischen Rauigkeit, neue Öffnungen und Bauteile sind dagegen glatt verputzt. Die bestehende Stahl-Stein-Treppe wird saniert und mit Klar-Lack-Beschichtung konserviert. Das Tragwerk des innen liegenden, hölzernen Skelettbaus wird sichtbar belassen. Alte Rundbogen-Klinkerstürze werden Stein für Stein wiederhergestellt, neue angelegte Fensteröffnungen mit geraden, sichtbar in der Fassade liegenden Stahlbeton-Stürzen überspannt, die vor Ort mit der Hand gegossen wurden.
Auf fünf Etagen sind großzügige Wohnungen mit nutzungsoffenen Grundrissen, durchgängig barrierefrei erschlossen, entwickelt. Durch die Verzahnung der Baukörper mit dem Außenraum und individuellen Freiraumbezügen werden Mehrwerte für Bewohner und Anwohner an der Nahtstelle zwischen Stadt und Land generiert.
Projektdaten
Adresse
Zentralstraße 22/22a
99094 Erfurt OT Bischleben-Stedten
Planungsbüro
Bauherr
TG Immobilien & Bauträger GmbH
Fertigstellung
Mai 2014
Nutzfläche
1600 m2
Preise/Auszeichnungen
Thüringer Staatspreis für Architektur und Städtebau 2014
Weitere:
Ausgezeichnete Bauten in Thüringen 2015, BDA Thüringen - Anerkennung
An dieser Stelle wird eine Google-Maps-Karte angezeigt, wenn Sie das Speichern der entsprechenden Cookies erlaubt haben. Dies können Sie über die Privatsphäre-Einstellungen jederzeit tun.
Zugeordnete Schlagworte und Sammlungen
Weitere Projekte des gleichen Büros (8)
Letzte Aktualisierung dieser Seite am: 23.06.2016. Alle Angaben auf dieser Seite werden durch das Büro Atelier S82 - RUS, Erfurt auf freiwilliger Basis verwaltet. Das Büro ist für den Inhalt dieser Seite selbst verantwortlich. Die Angaben werden von der Architektenkammer Thüringen nicht geprüft.