Haus zur Sonne, Schloßvippach - Umbau, Anbau und Modernisierung zur Nutzung als Altenwohnungen und Seniorenzentrum · Schloßvippach
Smits + Tandler freie Architekten und Ingenieure Partnerschaft, Erfurt
7 Projektbilder
-
Hauptgebäude, Ansicht von Süden, Bild: Bernhard Smits -
Anbau Hauptgebäude, Ansicht von Westen, Bild: Bernhard Smits -
Laubengang am Seitengebäude, Bild: Bernhard Smits -
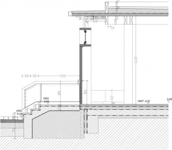
Detail Fenster im Anbau, Bild: Bernhard Smits -
Grundriss Erdgeschoss mit Freianlagen, Bild: Bernhard Smits -
Längsschnitt Hauptgebäude, Bild: Bernhard Smits -
Detail Erschließung Anbau, Bild: Bernhard Smits
Projektbeschreibung
Die dorfbildprägende, direkt am Markt erbaute zweiflügelige Hofanlage ist neben dem benachbarten historischen Rathaus und der Kirche ein baulicher Mittelpunkt der Gemeinde. Das repräsentative Hauptgebäude wurde um 1700 erbaut, das Seitengebäude stammt aus dem 19. Jahrhundert. Ursprünglich als Gasthof mit Veranstaltungssaal erbaut, wurde das Gebäude mehrfach umgenutzt und drohte nach mehrjährigem Leerstand zu verfallen. Seitens der Gemeinde galt es, den als Denkmal eingetragenen Gebäudekomplex zu erhalten und zu Wohnungen für ältere Bürger und einem Seniorenzentrum als Begegnungsstätte umzubauen.
Im Erdgeschoss des Hauptgebäudes ist das Seniorenzentrum (ca. 194m²) als öffentliche Begegnungsstätte mit Veranstaltungsraum, Lesezimmer und Ruheraum sowie Verwaltungs- und Personalbereich angeordnet. Die acht altersgerechten und teilweise rollstuhlgerechten Wohnungen (ca. 37 bis 71m²) befinden sich im Erd- und 1. Obergeschoss des Seitengebäudes, sowie im 1. Obergeschoss des Hauptgebäudes.
Projektdaten
Adresse
Erfurter Straße 17
99195 Schloßvippach
Planungsbüro
Smits + Tandler freie Architekten und Ingenieure Partnerschaft, Erfurt
Bauherr
Gemeinde Schloßvippach
Fertigstellung
2009
An dieser Stelle wird eine Google-Maps-Karte angezeigt, wenn Sie das Speichern der entsprechenden Cookies erlaubt haben. Dies können Sie über die Privatsphäre-Einstellungen jederzeit tun.
Zugeordnete Schlagworte und Sammlungen
Weitere Projekte des gleichen Büros (20)
-
Kulturort Schloss Krölpa
Krölpa
Raniserstr. 17, 07387 Krölpa
Smits + Tandler freie Architekten und Ingenieure Partnerschaft, Erfurt
-
St. Peter und Paul Kirche, Reinsdorf
Reinsdorf
Bretlebener Weg, 06556 Reinsdorf
Smits + Tandler freie Architekten und Ingenieure Partnerschaft, Erfurt
-
Tourismuszentrum St. Johannis, Ellrich
Ellrich
Am Markt 15, 99755 Ellrich
Smits + Tandler freie Architekten und Ingenieure Partnerschaft, Erfurt
-
Kaufmannskirche Erfurt
Erfurt
Anger 80, 99084 Erfurt
Smits + Tandler freie Architekten und Ingenieure Partnerschaft, Erfurt
Innenarchitektur + Design, Albrecht von Kirchbach Freier Innenarchitekt, Erfurt -
St. Crucis Kirche Schernberg
Sondershausen
Kittelstraße 44, 99706 Sondershausen OT Schernberg
Smits + Tandler freie Architekten und Ingenieure Partnerschaft, Erfurt
-
Klosterräume Kartäuserstraße 13 - Modernisierung Gewerberäume
Erfurt
Kartäuserstraße 13, 99084 Erfurt
Smits + Tandler freie Architekten und Ingenieure Partnerschaft, Erfurt
-
Stadtkirche St. Peter und Paul Weißensee - Winterkirche - Instandsetzung und Umbau Treppenraum und Funktionsräume
Weißensee
Kirchplatz 1, 99631 Weißensee OT Weißensee
Smits + Tandler freie Architekten und Ingenieure Partnerschaft, Erfurt
-
Studentenzentrum Engelsburg
Erfurt
Allerheiligenstraße 20/ 21, Erfurt
Smits + Tandler freie Architekten und Ingenieure Partnerschaft, Erfurt
-
ST.-MICHAEL-KIRCHE EGSTEDT - SUBSTANZERHALTUNG, INSTANDSETZUNG UND UMBAU
Egstedt am Steiger
Zum Rinnebach, 99097 Egstedt am Steiger
Smits + Tandler freie Architekten und Ingenieure Partnerschaft, Erfurt
-
„Sperlingslust“ Kirchheim - Wohnhaus, Torhaus und Remise
Kirchheim
Mönchsgasse 82, 99334 Kirchheim
Smits + Tandler freie Architekten und Ingenieure Partnerschaft, Erfurt
-
Altes Schloss Dornburg
Dornburg
Max-Krehan-Straße, 07778 Dornburg
Smits + Tandler freie Architekten und Ingenieure Partnerschaft, Erfurt
-
Predigerkloster Erfurt - Zentrum für Kirchenmusik
Erfurt
Meister-Eckhart-Straße 1, 99084 Erfurt
Smits + Tandler freie Architekten und Ingenieure Partnerschaft, Erfurt
-
Evangelisches Ratsgymnasium Erfurt "Casinoschule" - Umbau, Sanierung und Modernisierung Schulgebäude und Freianlagen
Erfurt
Meister-Eckehart-Straße 1, 99084 Erfurt OT Erfurt-Altstadt
Smits + Tandler freie Architekten und Ingenieure Partnerschaft, Erfurt
-
SANIERUNG/UMBAU PFARR- UND GEMEINDEHAUS ELLRICH
Ellrich
Markt 15, 99755 Ellrich OT -
Smits + Tandler freie Architekten und Ingenieure Partnerschaft, Erfurt
-
SANIERUNG/UMBAU PFARR- UND GEMEINDEHAUS PREDIGERGEMEINDE ERFURT
Erfurt
Predigerstraße 3 + 4, 99084 Erfurt OT Altstadt
Smits + Tandler freie Architekten und Ingenieure Partnerschaft, Erfurt
Letzte Aktualisierung dieser Seite am: 02.03.2016. Alle Angaben auf dieser Seite werden durch das Büro Smits + Tandler freie Architekten und Ingenieure Partnerschaft, Erfurt auf freiwilliger Basis verwaltet. Das Büro ist für den Inhalt dieser Seite selbst verantwortlich. Die Angaben werden von der Architektenkammer Thüringen nicht geprüft.