Neubau für das Sozialzentrum "Haus am alten See" · Eisenach
5 Projektbilder
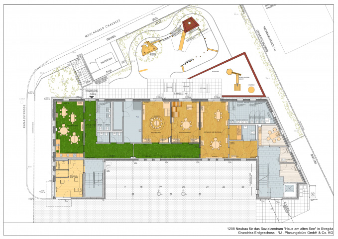
Projektbeschreibung
„NEUGIER TRIFFT ERFAHRUNG“ - unter diesem Motto des ASB Regionalverband Südwestthüringen e.V. wurde das Sozialzentrum um einen Neubau mit Kindertagesstätte, Hausgemeinschaft für 10 Bewohner in der stationären Altenpflege und 5 barrierefreien Mietwohnungen erweitert.
Der zweigeschossige Neubau schließt mit einem zurückgesetzten Dachgeschoss in Holzbauweise ab.
Über eine Verbindungsbrücke in Stahl-Glas-Konstruktion wird das neue mit dem alten Gebäude im Ober- und Dachgeschoss verbunden.
Ein frei gestalteter Spielplatz für die „Jungen“ und Carportstellplätze für die „Alten“ ergänzen die Außenanlagen. Zusammen mit den bestehenden und dem neuen Baukörper entsteht ein vielseitig nutzbarer Innenhof, der sich nach außen für alle öffnet.
Projektdaten
Adresse
Kanalstraße 19a
99817 Eisenach OT Stregda
Planungsbüro
RJ . Planungsbüro GmbH & Co. KG, Erfurt
Fertigstellung
November 2020
Nutzfläche
1.316 m2
An dieser Stelle wird eine Google-Maps-Karte angezeigt, wenn Sie das Speichern der entsprechenden Cookies erlaubt haben. Dies können Sie über die Privatsphäre-Einstellungen jederzeit tun.
Zugeordnete Schlagworte und Sammlungen
Weitere Projekte des gleichen Büros (21)
-
Erweiterung der Sophienklinik Bad Sulza, Anbau Rehabilitationsklinik
Bad Sulza
Sophienstraße 25, 99518 Bad Sulza
RJ . Planungsbüro GmbH & Co. KG, Erfurt
-
Medizinisches Versorgungszentrum Weimar-West
Weimar
Berliner Straße 2, 99427 Weimar OT Weimar-West
RJ . Planungsbüro GmbH & Co. KG, Erfurt
-
Medizinisches Versorgungszentrum Arnstadt
Arnstadt
Wachsenburgallee 12, 99310 Arnstadt
RJ . Planungsbüro GmbH & Co. KG, Erfurt
-
Neubau einer integrativen Kindertagesstätte "KinderSegen" in Arnstadt
Arnstadt
Floraweg 2, 99310 Arnstadt
RJ . Planungsbüro GmbH & Co. KG, Erfurt
-
Neubau integrative Kindertagesstätte "Senfkorn" in Gera
Gera
Joliot-Curie-Straße 22, 07548 Gera
RJ . Planungsbüro GmbH & Co. KG, Erfurt
-
Sanierung der Kindertagesstätte „Zwergenland“ in Erfurt
Erfurt
Max-Steenbeck-Straße 26, 99097 Erfurt
RJ . Planungsbüro GmbH & Co. KG, Erfurt
-
Ersatzneubau für das Altenpflegeheim „Waldhaus“ und die Kindertagesstätte „Pusteblume“
Eisenach
Kanalstraße 19/21, 99817 Eisenach
RJ . Planungsbüro GmbH & Co. KG, Erfurt
-
Neubau der Integrativen Kindertagesstätte „Himmelszelt“
Jena
Löbichauer Straße 71a, 07749 Jena
RJ . Planungsbüro GmbH & Co. KG, Erfurt
-
Diakonie-Werkstätten Allendorf
Bad Salzungen
Hermannstraße 5, Bad Salzungen
RJ . Planungsbüro GmbH & Co. KG, Erfurt
-
Altenhilfezentrum „Haus Werragarten“
Breitungen
Frauenbreitunger Weg 38, Breitungen
RJ . Planungsbüro GmbH & Co. KG, Erfurt
-
Umbau und Sanierung „Georgenhof“ Seniorenzentrum
Eisenach
Am Schleierborn 9, Eisenach
RJ . Planungsbüro GmbH & Co. KG, Erfurt
-
Werkstatt für psychisch Kranke/ seelisch Behinderte
Fambach
Neue Wiese 16, Fambach
RJ . Planungsbüro GmbH & Co. KG, Erfurt
-
Wohnheim für seelisch Behinderte und psychisch Kranke
Schweina
Johann-Christian-von-Weiß-Straße 9, 36448 Schweina
RJ . Planungsbüro GmbH & Co. KG, Erfurt
-
Ersatzneubau Kinder- und Jugendwohnheim Arnstadt
Arnstadt
Gerastraße 12, 99310 Arnstadt
RJ . Planungsbüro GmbH & Co. KG, Erfurt
-
Neu- und Umbau Orthopädische Klinik Arnstadt
Arnstadt
Wachsenburgallee 12, 99310 Arnstadt
RJ . Planungsbüro GmbH & Co. KG, Erfurt
-
Neubau Seniorenpflege „Glücksbrunn“
Schweina
Johann-Christian-von-Weiß-Straße 7, 36448 Schweina
RJ . Planungsbüro GmbH & Co. KG, Erfurt
-
Neu- und Umbau der Werkstatt Mühltal
Rastenberg
Mühltal 9, 99636 Rastenberg
RJ . Planungsbüro GmbH & Co. KG, Erfurt
-
Umbau und Erweiterung der Kindertagesstätte "Zum Bienenschwarm" in Ulrichshalben
Ilmtal-Weinstraße
Kupferstraße 23, 99510 Ilmtal-Weinstraße OT Ulrichshalben
RJ . Planungsbüro GmbH & Co. KG, Erfurt
-
Neubau Wohnheim für Menschen mit Behinderung
Buttstädt
Goethestraße2, 99628 Buttstädt
RJ . Planungsbüro GmbH & Co. KG, Erfurt
-
Erweiterungsneubau Bürogebäude Ibykus AG
Erfurt
Herman-Hollerith-Straße 1, 99099 Erfurt
RJ . Planungsbüro GmbH & Co. KG, Erfurt
Letzte Aktualisierung dieser Seite am: 15.04.2021. Alle Angaben auf dieser Seite werden durch das Büro RJ . Planungsbüro GmbH & Co. KG, Erfurt auf freiwilliger Basis verwaltet. Das Büro ist für den Inhalt dieser Seite selbst verantwortlich. Die Angaben werden von der Architektenkammer Thüringen nicht geprüft.