Neubau Produktions- und Verwaltungsgebäude Antriebstechnik Jena
6 Projektbilder
Projektbeschreibung
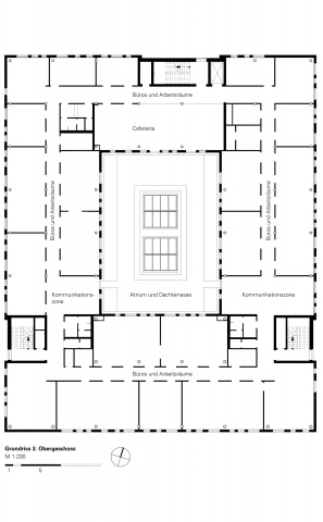
Das Werkgelände der Antriebstechnik Jena GmbH (JAT) wurde um ein neues Verwaltungs- und Produktionsgebäude erweitert. Der Technologiekomplex bietet der JAT beste Voraussetzungen, um zukünftig noch schneller auf die Nachfrage nach kundenspezifischen Antriebslösungen zu reagieren. Neben Produktions- und Lagerflächen zeichnet sich der Innenraum durch eine flexible Bürowelt aus. Diese bietet Flächen für die Einzel- und Teamarbeit sowie Loungebereiche und moderne Entwicklungslabore. Im zweiten und dritten Obergeschoss wurden die Außenwände in Holzrahmenbauweise errichtet, im Innenraum ist hier die Wandbekleidung aus OSB-Platten sichtbar. Im zweiten Obergeschoss befindet sich ein großzügiger Innenhof, der sowohl zum konzentrierten Arbeiten als auch zur Kontemplation genutzt werden kann. Helle Metallpaneele und anthrazitfarbene Putzfassaden prägen die äußere Erscheinung des Gebäudes. Rücksprünge im Erdgeschoss und ersten Obergeschoss erzeugen in Teilen eine schwebende Wirkung des zweiten und dritten Obergeschosses. Fenster in unterschiedlichen Größen und unregelmäßiger Anordnung erhöhen überdies die Spannung in der Fassade.
Projektdaten
Adresse
Buchaer Straße 1
07745 Jena
Planungsbüro
pbr Planungsbüro Rohling AG Architekten Ingenieure, Jena
Bauherr
Jenaer Antriebstechnik GmbH
Fertigstellung
Februar 2020
Nutzfläche
4.275 m2
An dieser Stelle wird eine Google-Maps-Karte angezeigt, wenn Sie das Speichern der entsprechenden Cookies erlaubt haben. Dies können Sie über die Privatsphäre-Einstellungen jederzeit tun.
Zugeordnete Schlagworte und Sammlungen
Weitere Projekte des gleichen Büros (10)
-
Neubau Ernst-Abbe-Bücherei und Bürgerdienste der Stadt Jena
Jena
Engelplatz 1, 07743 Jena
pbr Planungsbüro Rohling AG Architekten Ingenieure, Jena
stock landschaftsarchitekten bdla, Jena | FND Quadrat, Zwickau -
Neubau Feuerwache Arnstadt
Arnstadt
Sankt-Florian-Straße 1, 99310 Arnstadt
pbr Planungsbüro Rohling AG Architekten Ingenieure, Jena
-
Neubau Probensaal der Staatskapelle Weimar
Weimar
Ettersburger Straße 61, 99427 Weimar
pbr Planungsbüro Rohling AG Architekten Ingenieure, Jena
-
Regelschule „Friedrich Hölderlin“
Jena
Oßmaritzer Straße 12, Jena
pbr Planungsbüro Rohling AG Architekten Ingenieure, Jena
-
Schulstandort Karl-Marx-Allee 7, 07747 Jena
Jena
Karl-Marx-Allee 7, 07747 Jena
pbr Planungsbüro Rohling AG Architekten Ingenieure, Jena
RoosGrün, Weimar -
denkmalkonforme Sanierung, Modernisierung, Umbau und Erweiterung IGS "Grete Unrein" Jena
Jena
August-Bebel-Straße 1, 07743 Jena OT Westviertel
pbr Planungsbüro Rohling AG Architekten Ingenieure, Jena
Ehrensberger Holgar Freier Landschaftsarchitekt BDLA, Jena -
Neubau Institut für Anorganische und Analytische Chemie FSU Jena
Jena
Humboldtstr.8, 07745 Jena
pbr Planungsbüro Rohling AG Architekten Ingenieure, Jena
-
Sport-und Mehrzweckhalle Kastanienschule Jena- Lobeda
Jena
Rudolf-Breitscheid-Str. 4, 07747 Jena
pbr Planungsbüro Rohling AG Architekten Ingenieure, Jena
-
Ersatzneubau Sporthalle Talschule Jena
Jena
Ziegenhainer Straße 52, 07745 Jena
pbr Planungsbüro Rohling AG Architekten Ingenieure, Jena
-
Sporthalle 6. Regelschule Jena-Winzerla
Jena
Oßmaritzer Straße 12, 07745 Jena
pbr Planungsbüro Rohling AG Architekten Ingenieure, Jena
Letzte Aktualisierung dieser Seite am: 23.03.2022. Alle Angaben auf dieser Seite werden durch das Büro pbr Planungsbüro Rohling AG Architekten Ingenieure, Jena auf freiwilliger Basis verwaltet. Das Büro ist für den Inhalt dieser Seite selbst verantwortlich. Die Angaben werden von der Architektenkammer Thüringen nicht geprüft.