Psychologische Tagesklinik · Erfurt
6 Projektbilder
Tag der Architektur 2026
Samstag, 27.06.2026 – geöffnet 14:00-16:00, Führungen 14:00, 15:00 (Treffpunkt: Eingang Anger 21)
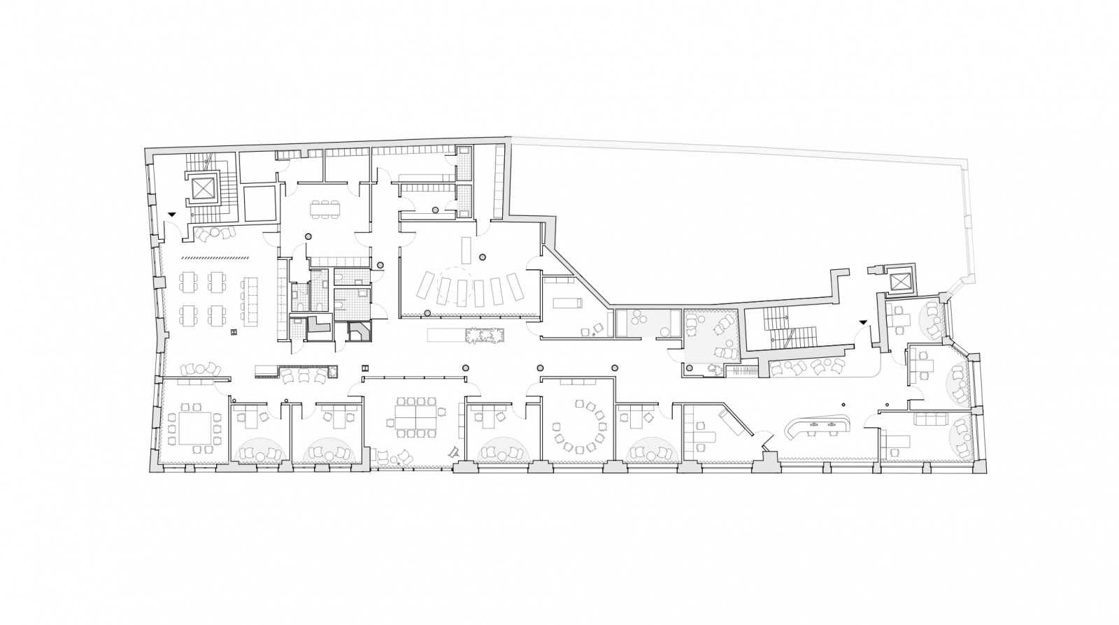
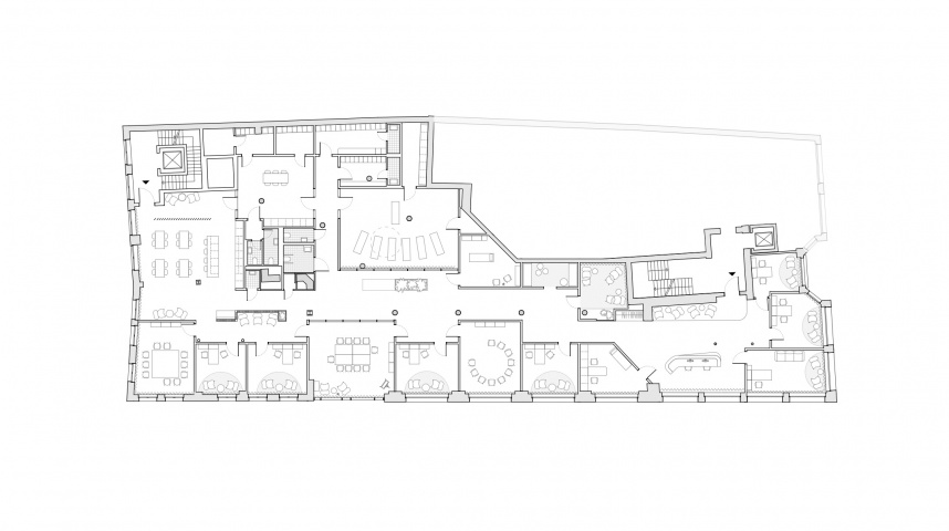
Projektbeschreibung
Bewusst in das urbane Leben integriert entsteht in einer ehemaligen Ladenfläche ein Ort für mentale Gesundheit. Natürliche Materialien, sanfte Farbtöne, begrünte Wandgärten, komfortable Einbauten und eine präzise Raumabfolge stützen die vielfältigen therapeutischen Ebenen: Gestaltung fördert mentalen Ausdruck, Bewegung unterstützt körperliche Regulation, Rückzugsräume ermöglichen Stressreduktion, gemeinsames Kochen stärkt soziale Heilungsprozesse.
Klinische Strenge weicht räumlicher Empathie, sodass die Innenarchitektur zum integralen Teil des Genesungsprozesses wird.
Projektdaten
Adresse
Anger 21
99084 Erfurt
Planungsbüro
herrschmidt architekten PartGmbB, Erfurt
Bauherr
Asklepios Fachklinikum Stadtroda GmbH
Fertigstellung
März 2026
Nutzfläche
787 m2
An dieser Stelle wird eine Google-Maps-Karte angezeigt, wenn Sie das Speichern der entsprechenden Cookies erlaubt haben. Dies können Sie über die Privatsphäre-Einstellungen jederzeit tun.
Zugeordnete Schlagworte und Sammlungen
Weitere Projekte des gleichen Büros (12)
-
Praxis für Kardiologie Dr. Löser
Weimar
Ludwig-Feuerbach-Straße 7a, 99425 Weimar
herrschmidt architekten PartGmbB, Erfurt
-
Revitalisierung des KONTOR-Gebäudes zu einem Zentrum der Kreativwirtschaft
Erfurt
Hugo-John-Straße 8, 99086 Erfurt OT Ilversgehofen
herrschmidt architekten PartGmbB, Erfurt
-
Sanierung und Anbau Atelierhaus Prof. Peter Keler
Bad Berka
99438 Bad Berka
herrschmidt architekten PartGmbB, Erfurt
-
Praxis Dr. Göttinger
Erfurt
Tschaikowskistraße 24, 99094 Erfurt
herrschmidt architekten PartGmbB, Erfurt
-
Auf der Mauer - Wohnhauserweiterung in Erfurt
Erfurt
Am Holzberg, 99094 Erfurt OT Hochheim
herrschmidt architekten PartGmbB, Erfurt
-
Praxis für Orthopädie und Sportmedizin Erfurt
Erfurt
Tschaikowskistraße 24, 99096 Erfurt
herrschmidt architekten PartGmbB, Erfurt
-
Turmhaus am Wenigemarkt in Erfurt
Erfurt
Wenigemarkt 21, 99084 Erfurt
herrschmidt architekten PartGmbB, Erfurt
ADOBE Architekten + Ingenieure GmbH, Erfurt
-
Sanierung und Umbau Friseur Rundhairum
Erfurt
Barfüsserstraße 3, 99084 Erfurt OT Altstadt
herrschmidt architekten PartGmbB, Erfurt
-
openbook-der öffentliche Bücherschrank
Erfurt
Magdeburger Allee 116, 99089 Erfurt
herrschmidt architekten PartGmbB, Erfurt
Letzte Aktualisierung dieser Seite am: 27.05.2026. Alle Angaben auf dieser Seite werden durch das Büro herrschmidt architekten PartGmbB, Erfurt auf freiwilliger Basis verwaltet. Das Büro ist für den Inhalt dieser Seite selbst verantwortlich. Die Angaben werden von der Architektenkammer Thüringen nicht geprüft.