Horterweiterungsbau Staatliche Grundschule Kromsdorf/Oßmannstedt · Kromsdorf
12 Projektbilder
-
Nordfassade Neubau, Bild: Stefan Martin -
Südfassade Neubau, Bild: Stefan Martin -
Innentreppe, Bild: Stefan Martin -
Spielempore, Bild: Stefan Martin -
Eingangsbereich, Bild: Stefan Martin -
Hortraum I, Bild: Stefan Martin -
Südfassade Bestandsgebäude, Bild: Stefan Martin -
Giebel Bestandsgebäude, Bild: Stefan Martin -
Hortraum I & Ausgabetresen, Bild: Stefan Martin -
Hofseite & Eingangspodest, Bild: Stefan Martin -
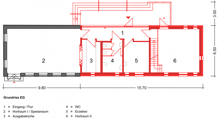
Grundriss EG, Bild: Detlef Fischer -
Lageplan, Bild: Detlef Fischer
Projektbeschreibung
Die zeitgemäßen Ansprüchen nicht mehr genügenden Hortgebäude wurden teilweise saniert, teilweise rückgebaut und durch einen sich am Bestand orientierenden Neubau ersetzt. Bei der Fassadengestaltung kamen natürliche, ortstypische Materialien zum Einsatz. Eine zum Schulhof hin orientierte, breite, farblich markant inszenierte Treppenanlage lädt zum Betreten des Horts ein.
Der Ansatz ein kinderfreundliches Gebäude zu schaffen, spiegelt sich im Gebäudeinneren wider: einfache, klare Grundrisse – helle, große Aufenthaltsräume. Das an den Fassaden begonnene Farb- und Materialkonzept findet in der Raumgestaltung mit Holzoberflächen und stimmungsvoller Farbgebung eine Fortsetzung.
Mit dem neu geschaffenen Hortraum ist über eine skulptural ausgeformte Treppe eine großflächige Spielempore verbunden.
Projektdaten
Adresse
Bei der Kirche 5
99441 Kromsdorf
Planungsbüro
Fischer Planungsgesellschaft Weimar mbH, Weimar
Bauherr
Landkreis Weimarer Land, vertreten durch das Landratsamt
Fertigstellung
Dezember 2015
Nutzfläche
207 m2
An dieser Stelle wird eine Google-Maps-Karte angezeigt, wenn Sie das Speichern der entsprechenden Cookies erlaubt haben. Dies können Sie über die Privatsphäre-Einstellungen jederzeit tun.
Zugeordnete Schlagworte und Sammlungen
Weitere Projekte des gleichen Büros (9)
-
Erweiterungsanbau Staatliche Grundschule Heinrich-Heine | Uhlstädt-Kirchhasel
Uhlstädt-Kirchhasel
Jenaische Straße 46, 07407 Uhlstädt-Kirchhasel OT Uhlstädt
Fischer Planungsgesellschaft Weimar mbH, Weimar
-
Genial zentral - unser Haus in der Stadt -
Bad Langensalza
Quartier Salzstraße, Steinweg, Poststraße, Turmstraße und Lindenbühl, 99947 Bad Langensalza
Fischer Planungsgesellschaft Weimar mbH, Weimar
-
CleanCar Tankstelle Freiburg
Freiburg im Breisgau
Lembergallee 1, 79108 Freiburg im Breisgau
Fischer Planungsgesellschaft Weimar mbH, Weimar
-
Schulzentrum Leutenberg, Komplexsanierung Kindertagesstätte
Leutenberg
Am Löhmberg 23a, 07338 Leutenberg
Fischer Planungsgesellschaft Weimar mbH, Weimar
-
Wohnungsneubau Amselweg 2-8 in Weimar
Weimar
Amselweg 2-8, 99423 Weimar
Fischer Planungsgesellschaft Weimar mbH, Weimar
-
Neubau Einfamilienhaus Ue
Weimar
Am Pappelgraben 2, 99425 Weimar OT Taubach
Fischer Planungsgesellschaft Weimar mbH, Weimar
-
Sanierung Regelschule Königsee und Neubau Schulmensa
Königsee
Wasserluft 5, 07426 Königsee
Fischer Planungsgesellschaft Weimar mbH, Weimar
-
Überbetriebliche Ausbildungsstätte für Landwirtschaft und Hauswirtschaft
Schwerstedt
Parkweg 90, 99439 Schwerstedt
Fischer Planungsgesellschaft Weimar mbH, Weimar
Letzte Aktualisierung dieser Seite am: 05.04.2016. Alle Angaben auf dieser Seite werden durch das Büro Fischer Planungsgesellschaft Weimar mbH, Weimar auf freiwilliger Basis verwaltet. Das Büro ist für den Inhalt dieser Seite selbst verantwortlich. Die Angaben werden von der Architektenkammer Thüringen nicht geprüft.