Überbetriebliche Ausbildungsstätte für Landwirtschaft und Hauswirtschaft · Schwerstedt
5 Projektbilder
Projektbeschreibung
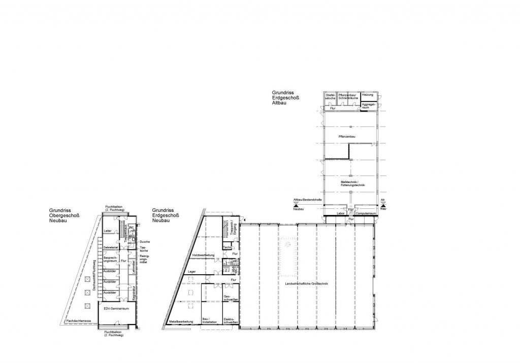
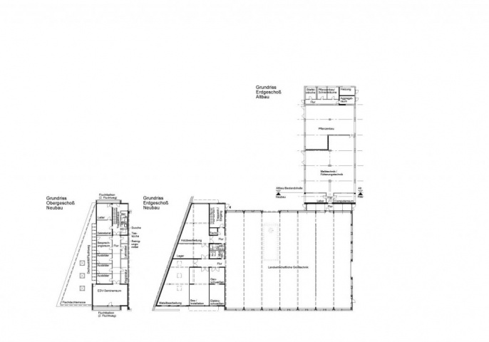
In der Überbetrieblichen Ausbildungsstätte für Landwirtschaft und Hauswirtschaft wird eine ergänzende Ausbildung zur betrieblichen Lehre in den Berufen Landwirt, Tierwirt und Hauswirtschafter durchgeführt.
Die nutzungsspezifischen Anforderungen erfahren eine konsequente Umsetzung in der Baukörperbildung, der Erschließung, der Konstruktion und Gestaltung.
Den Schwerpunkt bildet die große Ausbildungshalle mit ihrer klaren Holz-Tragstruktur.
Die Architektur orientiert sich an der umgebenden ländlichen Bebauungsstruktur und fügt sich harmonisch ein. Es wurden bewusst überwiegend natürliche Materialien gewählt, um das Gebäude hinsichtlich der Materialwahl in den Kontext des gewachsenen Ortes einzubinden. Ohne ein Fremdkörper zu sein, trägt es zur Bewahrung der Identität des gewachsenen Dorfes bei.
Für die Tragkonstruktion wurde auch im internationalen Maßstab erstmalig eine leistungsfähige Holz-Stahl-Klebeverbindung mittels HSK-Schubverbinder für dieses weit gespannte Hallentragwerk angewandt.
Projektdaten
Adresse
Parkweg 90
99439 Schwerstedt
Planungsbüro
Fischer Planungsgesellschaft Weimar mbH, Weimar
Bauherr
Freistaat Thüringen, vertreten durch das Thüringer Ministerium für Bau und Verkehr und das Landesamt für Bau und Verkehr, Abteilung Hochbau
Fertigstellung
2007
An dieser Stelle wird eine Google-Maps-Karte angezeigt, wenn Sie das Speichern der entsprechenden Cookies erlaubt haben. Dies können Sie über die Privatsphäre-Einstellungen jederzeit tun.
Zugeordnete Schlagworte und Sammlungen
Weitere Projekte des gleichen Büros (9)
-
Erweiterungsanbau Staatliche Grundschule Heinrich-Heine | Uhlstädt-Kirchhasel
Uhlstädt-Kirchhasel
Jenaische Straße 46, 07407 Uhlstädt-Kirchhasel OT Uhlstädt
Fischer Planungsgesellschaft Weimar mbH, Weimar
-
Genial zentral - unser Haus in der Stadt -
Bad Langensalza
Quartier Salzstraße, Steinweg, Poststraße, Turmstraße und Lindenbühl, 99947 Bad Langensalza
Fischer Planungsgesellschaft Weimar mbH, Weimar
-
CleanCar Tankstelle Freiburg
Freiburg im Breisgau
Lembergallee 1, 79108 Freiburg im Breisgau
Fischer Planungsgesellschaft Weimar mbH, Weimar
-
Schulzentrum Leutenberg, Komplexsanierung Kindertagesstätte
Leutenberg
Am Löhmberg 23a, 07338 Leutenberg
Fischer Planungsgesellschaft Weimar mbH, Weimar
-
Wohnungsneubau Amselweg 2-8 in Weimar
Weimar
Amselweg 2-8, 99423 Weimar
Fischer Planungsgesellschaft Weimar mbH, Weimar
-
Horterweiterungsbau Staatliche Grundschule Kromsdorf/Oßmannstedt
Kromsdorf
Bei der Kirche 5, 99441 Kromsdorf
Fischer Planungsgesellschaft Weimar mbH, Weimar
-
Neubau Einfamilienhaus Ue
Weimar
Am Pappelgraben 2, 99425 Weimar OT Taubach
Fischer Planungsgesellschaft Weimar mbH, Weimar
-
Sanierung Regelschule Königsee und Neubau Schulmensa
Königsee
Wasserluft 5, 07426 Königsee
Fischer Planungsgesellschaft Weimar mbH, Weimar
Letzte Aktualisierung dieser Seite am: 25.09.2010. Alle Angaben auf dieser Seite werden durch das Büro Fischer Planungsgesellschaft Weimar mbH, Weimar auf freiwilliger Basis verwaltet. Das Büro ist für den Inhalt dieser Seite selbst verantwortlich. Die Angaben werden von der Architektenkammer Thüringen nicht geprüft.