Wohnungsneubau Amselweg 2-8 in Weimar
8 Projektbilder
Projektbeschreibung
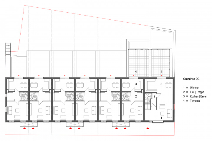
Lange prägte ein längst leergezogenes, baufälliges Wohngebäude aus dem Jahr 1918 das Bild des Amselwegs. Nach seinem Abriss steht an gleicher Stelle ein neuer, moderner Gebäudekomplex mit sieben Wohnungen in Reihenhausstruktur.
Die sechs dreigeschossigen Regelwohnungen mit ca. 120 m² Wohnfläche verfügen über je vier Zimmer, eine großzügige Küche mit Essbereich, zwei Bäder und einen Abstellraum. Eine mit ca. 117 m² Wohnfläche etwas kompakter geschnittene Wohnung auf der östlichen Gebäudeseite umfasst einen großen, offen gestalteten Koch-, Ess- und Wohnbereich, auf der Ebene darüber zwei weitere Zimmer und ein Bad sowie einen Abstellraum.
Durch kleine Vorgärten gelangt man zu den Hauszugängen auf der Südseite des Gebäudes. Die auf der Nordseite entstehenden Terrassen bieten den Mietern eine ansprechende, gartenähnliche Atmosphäre.
Im Gebäude können, der Anzahl der Wohneinheiten entsprechend, sieben Pkw abgestellt werden. Die Zufahrt dazu führt über die Otto-Braun-Straße.
Projektdaten
Adresse
Amselweg 2-8
99423 Weimar
Planungsbüro
Fischer Planungsgesellschaft Weimar mbH, Weimar
Bauherr
Weimarer Wohnstätte GmbH
Fertigstellung
September 2014
Nutzfläche
850 m2
An dieser Stelle wird eine Google-Maps-Karte angezeigt, wenn Sie das Speichern der entsprechenden Cookies erlaubt haben. Dies können Sie über die Privatsphäre-Einstellungen jederzeit tun.
Zugeordnete Schlagworte und Sammlungen
Weitere Projekte des gleichen Büros (9)
-
Erweiterungsanbau Staatliche Grundschule Heinrich-Heine | Uhlstädt-Kirchhasel
Uhlstädt-Kirchhasel
Jenaische Straße 46, 07407 Uhlstädt-Kirchhasel OT Uhlstädt
Fischer Planungsgesellschaft Weimar mbH, Weimar
-
Genial zentral - unser Haus in der Stadt -
Bad Langensalza
Quartier Salzstraße, Steinweg, Poststraße, Turmstraße und Lindenbühl, 99947 Bad Langensalza
Fischer Planungsgesellschaft Weimar mbH, Weimar
-
CleanCar Tankstelle Freiburg
Freiburg im Breisgau
Lembergallee 1, 79108 Freiburg im Breisgau
Fischer Planungsgesellschaft Weimar mbH, Weimar
-
Schulzentrum Leutenberg, Komplexsanierung Kindertagesstätte
Leutenberg
Am Löhmberg 23a, 07338 Leutenberg
Fischer Planungsgesellschaft Weimar mbH, Weimar
-
Horterweiterungsbau Staatliche Grundschule Kromsdorf/Oßmannstedt
Kromsdorf
Bei der Kirche 5, 99441 Kromsdorf
Fischer Planungsgesellschaft Weimar mbH, Weimar
-
Neubau Einfamilienhaus Ue
Weimar
Am Pappelgraben 2, 99425 Weimar OT Taubach
Fischer Planungsgesellschaft Weimar mbH, Weimar
-
Sanierung Regelschule Königsee und Neubau Schulmensa
Königsee
Wasserluft 5, 07426 Königsee
Fischer Planungsgesellschaft Weimar mbH, Weimar
-
Überbetriebliche Ausbildungsstätte für Landwirtschaft und Hauswirtschaft
Schwerstedt
Parkweg 90, 99439 Schwerstedt
Fischer Planungsgesellschaft Weimar mbH, Weimar
Letzte Aktualisierung dieser Seite am: 24.06.2016. Alle Angaben auf dieser Seite werden durch das Büro Fischer Planungsgesellschaft Weimar mbH, Weimar auf freiwilliger Basis verwaltet. Das Büro ist für den Inhalt dieser Seite selbst verantwortlich. Die Angaben werden von der Architektenkammer Thüringen nicht geprüft.