Quartiershaus am Ringelberg · Erfurt
14 Projektbilder
-
Haupteingang, Bild: Elisabeth Koch -
Gartenanlage im Frühjahr, Bild: Elisabeth Koch -
Sitzen und Klönen, Bild: Elisabeth Koch -
Straßenansicht, Bild: Elisabeth Koch -
Gartenanlage im Herbst, Bild: Elisabeth Koch -
Wohngruppenküche, Bild: Elisabeth Koch -
WG-Wohnzimmer, Bild: Elisabeth Koch -
Wohngruppenflur, Bild: Elisabeth Koch -
Begegnungsstätte, Bild: Elisabeth Koch -
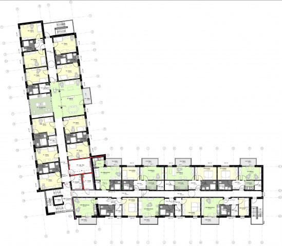
Erdgeschoss, Bild: Elisabeth Koch -
Obergeschoss, Bild: Elisabeth Koch -
Beispielgrundriss - Wohnung, Bild: Elisabeth Koch -
Straßenansicht, Bild: Elisabeth Koch -
Gartenansicht, Bild: Elisabeth Koch
Projektbeschreibung
Auf dem Ringelberg ist ein Dienstleistungszentrum für pflege- und assistenzbedürftige Menschen in einem Wohn- und Begegnungszentrum der fünften Generation entstanden. Es umfasst drei Pflegebereiche als Wohngruppen mit je zehn Plätzen, eine Tagespflege und 14 seniorengerechte Wohnungen. Im Erdgeschoss befinden sich die öffentlichen Einrichtungen, Umkleiden, Tagespflege und eine Demenz-WG mit zehn Plätzen. Über einen Aufzug gelangt man zu den Wohnungen und den anderen zwei Wohngruppen. Jede WG hat unterschiedlich große Einzelzimmer – alle mit einem seniorengerechten Bad, eines mit einem rollstuhlgerechten Bad. Pro Geschoss sind zwei Zimmer als ein Zwei-Raum-Appartement für Ehepaare und Freunde ausgebaut. Zu den Wohnungen und WG-Gemeinschaftsräumen gehören barrierefreie Balkone bzw. Terrassen.
Projektdaten
Adresse
Walter-Gropius-Straße 45
99085 Erfurt OT Ringelberg
Planungsbüro
WOLFF + KOCH Architekten PartG mbB, Erfurt
Bauherr
Diakoniestiftung Weimar Bad Lobenstein gGmbH
Fertigstellung
September 2015
Nutzfläche
2550 m2
An dieser Stelle wird eine Google-Maps-Karte angezeigt, wenn Sie das Speichern der entsprechenden Cookies erlaubt haben. Dies können Sie über die Privatsphäre-Einstellungen jederzeit tun.
Zugeordnete Schlagworte und Sammlungen
Weitere Projekte des gleichen Büros (7)
-
Sanierung der Sporthalle in der Henne-Kaserne, Erfurt
Erfurt
Nissaer Weg 10, 99099 Erfurt
WOLFF + KOCH Architekten PartG mbB, Erfurt
-
Sanierung der Sporthalle Urbich
Erfurt
Büßlebener Straße 9, 99098 Erfurt OT Urbich
WOLFF + KOCH Architekten PartG mbB, Erfurt
-
Anbau Kindertagesstätte "Zum lustigen Bienenkorb" in Bienstädt
Bienstädt
Obertor 5, 99100 Bienstädt
WOLFF + KOCH Architekten PartG mbB, Erfurt
-
Ausweichquartier für das Landgericht Erfurt
Erfurt
Juri-Gagarin-Ring 105 - 107, 99084 Erfurt
WOLFF + KOCH Architekten PartG mbB, Erfurt
-
Neubau Pflegecentrum Sonnenschein "Haus Anna"
Gerstungen
Bahnhofstraße 1, 99834 Gerstungen
WOLFF + KOCH Architekten PartG mbB, Erfurt
-
Conciergewohnen
Eschwege
Bahnhofstraße 22, 37269 Eschwege
WOLFF + KOCH Architekten PartG mbB, Erfurt
-
Neubau der Grundschule 38
Erfurt
Gartenstraße 19, 99098 Erfurt OT Kerspleben
WOLFF + KOCH Architekten PartG mbB, Erfurt
Schley + Partner Landschaftsarchitektur Urbanistik, Erfurt
Letzte Aktualisierung dieser Seite am: 13.05.2026. Alle Angaben auf dieser Seite werden durch das Büro WOLFF + KOCH Architekten PartG mbB, Erfurt auf freiwilliger Basis verwaltet. Das Büro ist für den Inhalt dieser Seite selbst verantwortlich. Die Angaben werden von der Architektenkammer Thüringen nicht geprüft.