Conciergewohnen · Eschwege
11 Projektbilder
-
Straßenansicht, Bild: Elisabeth Koch -
Hofansicht, Bild: Elisabeth Koch -
Eingangsbereich, Bild: Elisabeth Koch -
Wohnzimmer, Bild: Elisabeth Koch -
barrierefreie Dusche, Bild: Elisabeth Koch -
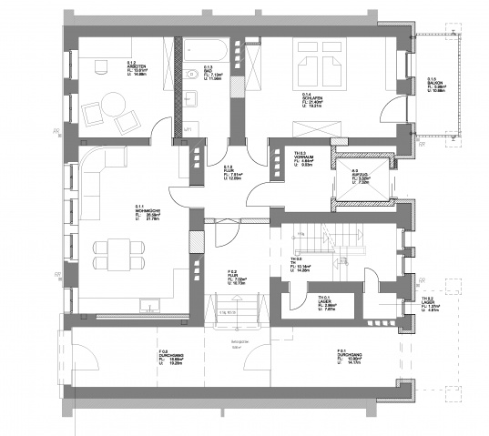
Erdgeschoss, Bild: Elisabeth Koch -
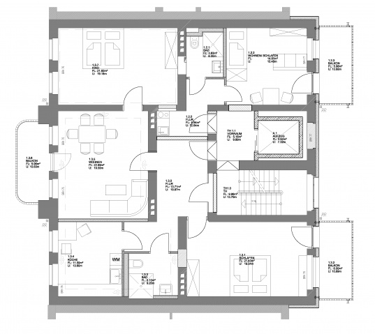
Obergeschoss, Bild: Elisabeth Koch -
Dachgeschoss, Bild: Elisabeth Koch -
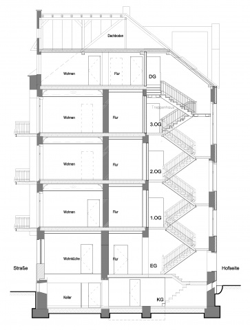
Schnitt, Bild: Elisabeth Koch -
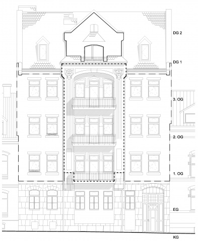
Straßenansicht, Bild: Elisabeth Koch -
Hofansicht, Bild: Elisabeth Koch
Projektbeschreibung
Projektdaten
Adresse
Bahnhofstraße 22
37269 Eschwege
Planungsbüro
WOLFF + KOCH Architekten PartG mbB, Erfurt
Bauherr
nicht zugeordnet
Fertigstellung
Juli 2016
Nutzfläche
582 m2
An dieser Stelle wird eine Google-Maps-Karte angezeigt, wenn Sie das Speichern der entsprechenden Cookies erlaubt haben. Dies können Sie über die Privatsphäre-Einstellungen jederzeit tun.
Zugeordnete Schlagworte und Sammlungen
Weitere Projekte des gleichen Büros (7)
-
Quartiershaus am Ringelberg
Erfurt
Walter-Gropius-Straße 45, 99085 Erfurt OT Ringelberg
WOLFF + KOCH Architekten PartG mbB, Erfurt
-
Sanierung der Sporthalle in der Henne-Kaserne, Erfurt
Erfurt
Nissaer Weg 10, 99099 Erfurt
WOLFF + KOCH Architekten PartG mbB, Erfurt
-
Sanierung der Sporthalle Urbich
Erfurt
Büßlebener Straße 9, 99098 Erfurt OT Urbich
WOLFF + KOCH Architekten PartG mbB, Erfurt
-
Anbau Kindertagesstätte "Zum lustigen Bienenkorb" in Bienstädt
Bienstädt
Obertor 5, 99100 Bienstädt
WOLFF + KOCH Architekten PartG mbB, Erfurt
-
Ausweichquartier für das Landgericht Erfurt
Erfurt
Juri-Gagarin-Ring 105 - 107, 99084 Erfurt
WOLFF + KOCH Architekten PartG mbB, Erfurt
-
Neubau Pflegecentrum Sonnenschein "Haus Anna"
Gerstungen
Bahnhofstraße 1, 99834 Gerstungen
WOLFF + KOCH Architekten PartG mbB, Erfurt
-
Neubau der Grundschule 38
Erfurt
Gartenstraße 19, 99098 Erfurt OT Kerspleben
WOLFF + KOCH Architekten PartG mbB, Erfurt
Schley + Partner Landschaftsarchitektur Urbanistik, Erfurt
Letzte Aktualisierung dieser Seite am: 03.03.2017. Alle Angaben auf dieser Seite werden durch das Büro WOLFF + KOCH Architekten PartG mbB, Erfurt auf freiwilliger Basis verwaltet. Das Büro ist für den Inhalt dieser Seite selbst verantwortlich. Die Angaben werden von der Architektenkammer Thüringen nicht geprüft.