Ausweichquartier für das Landgericht Erfurt
11 Projektbilder
-
Schwurgerichtssaal im Erdgeschoss, Flügel A, Bild: Thomas Müller, Weimar -
Blick vom 1.OG ins Erdgeschoss während der Baumaßnahme, Flügel A, Bild: Elisabeth Koch -
Richterpodest im Schwurgerichtssaal, Flügel A, Bild: Thomas Müller -
Verkleidete Stahlkonstruktion im Verhandlungssaal 3.OG, Flügel A, Bild: Thomas Müller -
Richterpodest im Verhandlungssaal 3.OG, Flügel A, Bild: Thomas Müller -
Historisches Treppenhaus Nord, Bild: Thomas Müller -
Historisches Treppenhaus Nord mit Einlasskontrolle, Bild: Thomas Müller -
Flurbereich an der Einlasskontrolle, Bild: Thomas Müller -
Neues Treppenhaus, Flügel B, Bild: Thomas Müller -
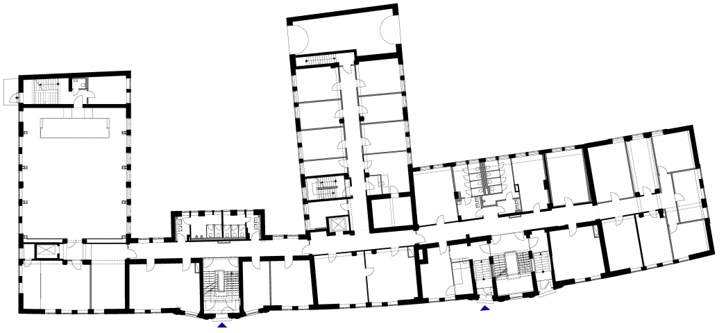
Grundriss Erdgeschoss, Bild: Elisabeth Koch -
3D-Gebäudeschnitt mit neuer Stahlkonstruktion, Bild: Elisabeth Koch
Projektbeschreibung
Das Gebäude wurde 1923/24 als Postscheckamt errichtet. Es gliedert sich in ein Souterraingeschoss mit Teilunterkellerung, ein Erdgeschoss, 3 Obergeschosse sowie ein nicht ausgebautes Dachgeschoss.
Der Hauptriegel verläuft entlang des Juri-Gagarin-Rings. Von diesem gehen drei Flügel ab, Flügel A, B und C. Das Gebäude befindet sich im Bereich der „Denkmalgeschützen baulichen Gesamtanlage Altstadt Erfurt“. Eingriffe an der Fassade sowie den Treppenhäusern waren mit der Denkmalpflege abzustimmen.
Das ehemalige Postscheckamt wurde bis 2019 als Bürogebäude genutzt und wird ab 2022 als Ausweichquartier für das Landgericht Erfurt dienen. Neben der brandschutztechnischen Ertüchtigung wurden im Kellergeschoss Zellen für die Gefangenen errichtet, Büroräume saniert und andere zu Zivil- und Strafgerichtssälen umgebaut.
Das Gebäude wurde in massiver Bauweise aus Ziegelmauerwerk errichtet. Bei den Decken handelt es sich um eine Stahlbetondecke (Decke über Kellergeschoss) und um Stahlbetonrippendecken mit Ziegelhohlkörpern und Druckbeton (Decken über Erdgeschoss und Obergeschossen).
Mit immensem baulichem und statischem Aufwand wurde im Flügel A die vorhandene Tragstruktur bestehend aus Stahlbetonstützen, -Unterzügen und -Decken abgetragen und eine neue Tragkonstruktion aus Stahl eingebaut, um stützenfreie Räume zu erhalten. Dafür wurden im Kellergeschoss Mikropfähle und Fundamentbalken gesetzt, auf denen die Stahlstützen montiert wurden. Anschließend wurden in jedem Geschoss Stahlträger in eine Zwischenposition eingebaut und dann sukzessiv von Oben nach Unten geschossweise die Decke und die Stützen abgetragen, der Stahlträger in die Endposition gebracht und eine neue Decke eingebaut.
Diese Notwendigkeit der Stützenfreiheit erfolgt aus den Anforderungen an Verhandlungssäle, nach denen der Richter jeden im Raum sehen muss und umgekehrt. Vorangegangene Untersuchungen im Hinblick auf Blickbeziehungen, holografische Überlagerungen oder bauliche Maßnahmen führten zur Notwendigkeit des baulichen Eingriffs.
Projektdaten
Adresse
Juri-Gagarin-Ring 105 - 107
99084 Erfurt
Planungsbüro
WOLFF + KOCH Architekten PartG mbB, Erfurt
Bauherr
privat
Fertigstellung
Dezember 2021
Nutzfläche
4998 m2
An dieser Stelle wird eine Google-Maps-Karte angezeigt, wenn Sie das Speichern der entsprechenden Cookies erlaubt haben. Dies können Sie über die Privatsphäre-Einstellungen jederzeit tun.
Zugeordnete Schlagworte und Sammlungen
Weitere Projekte des gleichen Büros (7)
-
Quartiershaus am Ringelberg
Erfurt
Walter-Gropius-Straße 45, 99085 Erfurt OT Ringelberg
WOLFF + KOCH Architekten PartG mbB, Erfurt
-
Sanierung der Sporthalle in der Henne-Kaserne, Erfurt
Erfurt
Nissaer Weg 10, 99099 Erfurt
WOLFF + KOCH Architekten PartG mbB, Erfurt
-
Sanierung der Sporthalle Urbich
Erfurt
Büßlebener Straße 9, 99098 Erfurt OT Urbich
WOLFF + KOCH Architekten PartG mbB, Erfurt
-
Anbau Kindertagesstätte "Zum lustigen Bienenkorb" in Bienstädt
Bienstädt
Obertor 5, 99100 Bienstädt
WOLFF + KOCH Architekten PartG mbB, Erfurt
-
Neubau Pflegecentrum Sonnenschein "Haus Anna"
Gerstungen
Bahnhofstraße 1, 99834 Gerstungen
WOLFF + KOCH Architekten PartG mbB, Erfurt
-
Conciergewohnen
Eschwege
Bahnhofstraße 22, 37269 Eschwege
WOLFF + KOCH Architekten PartG mbB, Erfurt
-
Neubau der Grundschule 38
Erfurt
Gartenstraße 19, 99098 Erfurt OT Kerspleben
WOLFF + KOCH Architekten PartG mbB, Erfurt
Schley + Partner Landschaftsarchitektur Urbanistik, Erfurt
Letzte Aktualisierung dieser Seite am: 05.05.2022. Alle Angaben auf dieser Seite werden durch das Büro WOLFF + KOCH Architekten PartG mbB, Erfurt auf freiwilliger Basis verwaltet. Das Büro ist für den Inhalt dieser Seite selbst verantwortlich. Die Angaben werden von der Architektenkammer Thüringen nicht geprüft.