Neubau der Grundschule 38 · Erfurt
6 Projektbilder
Projektbeschreibung
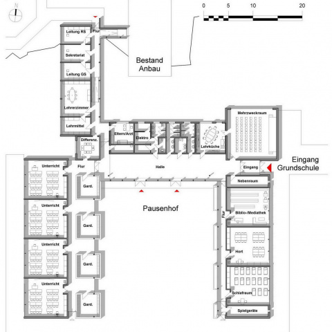
Die einzügige Grundschule mit Hort besteht aus 4 Unterrichtsräumen mit zugeordneten Garderobe-Räumen, einer großzügigen Pausenhalle, einer Bibliothek/ Mediathek sowie einem Mehrzweckraum. Die Sonderräume sind so ausgebildet, dass sie in Jahren mit großen Schülerzahlen ebenfalls als Unterrichtsräume genutzt werden können.
Der Baukörper besteht aus 4 Flügeln. 3 Flügel bilden den Schulhof und der vierte dient als Verbinder zur Regelschule - mit Lehrerzimmer der Grundschule, Direktorat der Regel- bzw. Grundschule und einem gemeinsam genutzten Sekretariat.
Die ausgeprägten Steil- und Flachdächer tragen zur natürlichen Quer-Lüftung bei und verbessern die natürliche Belichtung der Unterrichtsräume. Das Dach über Pausenhalle, Lehrküche und Mehrzweckraum bietet optimale Bedingungen für die installierte Photovoltaikanlage.
Nicht nur das Farbkonzept, sondern auch die barrierefreie Ausführung sowie die gute Raumakustik werden mit Begeisterung aufgenommen.
Projektdaten
Adresse
Gartenstraße 19
99098 Erfurt OT Kerspleben
Planungsbüros
WOLFF + KOCH Architekten PartG mbB, Erfurt
Schley + Partner Landschaftsarchitektur Urbanistik, Erfurt
Bauherr
Stadt Erfurt, vertreten durch das Amt für Grundstücks- und Gebäudeverwaltung
Fertigstellung
Juli 2010
Nutzfläche
1.332 m2
An dieser Stelle wird eine Google-Maps-Karte angezeigt, wenn Sie das Speichern der entsprechenden Cookies erlaubt haben. Dies können Sie über die Privatsphäre-Einstellungen jederzeit tun.
Zugeordnete Schlagworte und Sammlungen
Weitere Projekte des gleichen Büros (7)
-
Sanierung der Sporthalle in der Henne-Kaserne, Erfurt
Erfurt
Nissaer Weg 10, 99099 Erfurt
WOLFF + KOCH Architekten PartG mbB, Erfurt
-
Sanierung der Sporthalle Urbich
Erfurt
Büßlebener Straße 9, 99098 Erfurt OT Urbich
WOLFF + KOCH Architekten PartG mbB, Erfurt
-
Anbau Kindertagesstätte "Zum lustigen Bienenkorb" in Bienstädt
Bienstädt
Obertor 5, 99100 Bienstädt
WOLFF + KOCH Architekten PartG mbB, Erfurt
-
Ausweichquartier für das Landgericht Erfurt
Erfurt
Juri-Gagarin-Ring 105 - 107, 99084 Erfurt
WOLFF + KOCH Architekten PartG mbB, Erfurt
-
Neubau Pflegecentrum Sonnenschein "Haus Anna"
Gerstungen
Bahnhofstraße 1, 99834 Gerstungen
WOLFF + KOCH Architekten PartG mbB, Erfurt
-
Quartiershaus
Erfurt
Walter-Gropius-Straße 45, 99085 Erfurt OT Ringelberg
WOLFF + KOCH Architekten PartG mbB, Erfurt
-
Conciergewohnen
Eschwege
Bahnhofstraße 22, 37269 Eschwege
WOLFF + KOCH Architekten PartG mbB, Erfurt
Letzte Aktualisierung dieser Seite am: 02.09.2014. Alle Angaben auf dieser Seite werden durch das Büro WOLFF + KOCH Architekten PartG mbB, Erfurt auf freiwilliger Basis verwaltet. Das Büro ist für den Inhalt dieser Seite selbst verantwortlich. Die Angaben werden von der Architektenkammer Thüringen nicht geprüft.