Sanierung Gewerbefläche Holzmarkt 9 · Jena
7 Projektbilder
Tag der Architektur 2026
Samstag, 27.06.2026 – geöffnet 10:00-16:00, Führungen nach Bedarf (Treffpunkt: Eingangsbereich)
Sonntag, 28.06.2026 – geöffnet 10:00-16:00, Führungen nach Bedarf (Treffpunkt: Eingangsbereich)
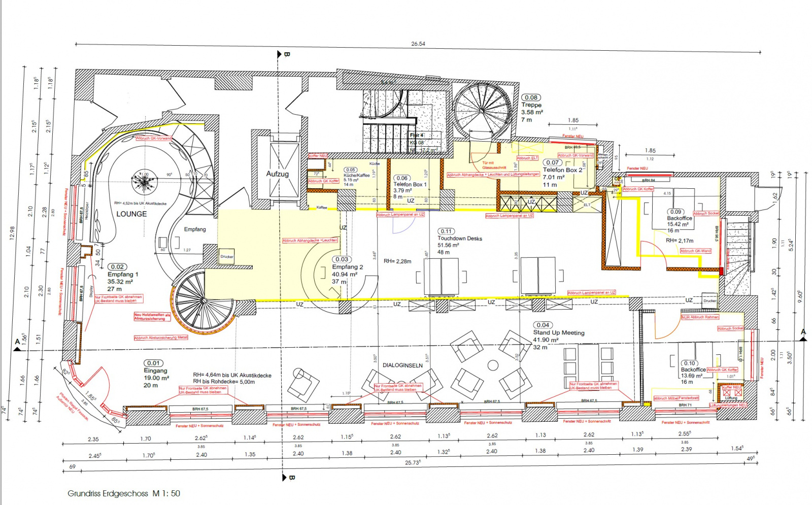
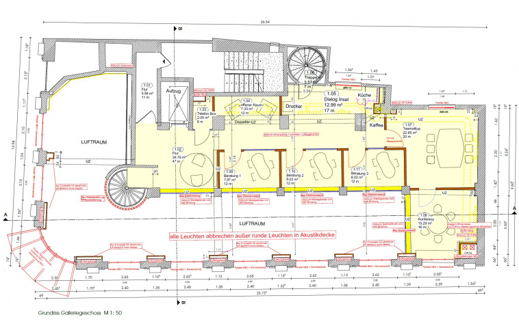
Projektbeschreibung
Das Geschäftsgebäude Holzmarkt 9 in Jena wurde 1912 errichtet und blickt auf eine wechselhafte Nutzungsgeschichte zurück. Ursprünglich als "Café Prag" eröffnet, diente es später als Bank und zuletzt als Sanitätshaus.
Im Zuge der aktuellen Umnutzung entstand eine Filiale der Sparkassen-Immobilien. Ziel des Projekts war es eine behutsame, denkmalgerechte Sanierung, die dem Bestand respektiert und gleichzeitig eine zeitgemäße Nutzung ermöglicht.
Erhaltene Stuckelemente wurden restauriert, ergänzt und wieder sichtbar gemacht. Die Fenster wurden in Abstimmung mit dem Denkmalschutz erneuert. Neue Korbmarkisen greifen das frühere Café-Ambiente auf und prägen das Erscheinungsbild zur Straße.
Im Innenraum entstand eine ruhige und moderne Sparkassen-Filiale, die zugleich den Anforderungen an eine Arbeitsumgebung gerecht wird. Natürliche Materialien, insbesondere Holz, sowie eine klare, nordisch inspirierte Gestaltung bestimmen das Konzept. Ergänzt wird dies durch funktionale und moderne Besprechungs- und Beratungsräume. Das Einrichtungskonzept wurde dabei maßgeblich von Stefan Weiland von Holz & Hygge Studio aus Jena entworfen.
Projektdaten
Adresse
Holzmarkt 9
07743 Jena
Planungsbüro
Bauherr
Sparkasse Jena-Saale-Holzland
Fertigstellung
Januar 2026
Nutzfläche
970 m2
An dieser Stelle wird eine Google-Maps-Karte angezeigt, wenn Sie das Speichern der entsprechenden Cookies erlaubt haben. Dies können Sie über die Privatsphäre-Einstellungen jederzeit tun.
Zugeordnete Schlagworte und Sammlungen
Weitere Projekte des gleichen Büros (13)
-
-
Umbau Zentraler Omnibusbahnhof Dingelstädt
Dingelstädt
Busbahnhof, 37351 Dingelstädt
Waldhelm GmbH, Jena
Christian Brüstel Freier Architekt, Jena
-
-
-
Letzte Aktualisierung dieser Seite am: 27.04.2026. Alle Angaben auf dieser Seite werden durch das Büro Waldhelm GmbH, Jena auf freiwilliger Basis verwaltet. Das Büro ist für den Inhalt dieser Seite selbst verantwortlich. Die Angaben werden von der Architektenkammer Thüringen nicht geprüft.